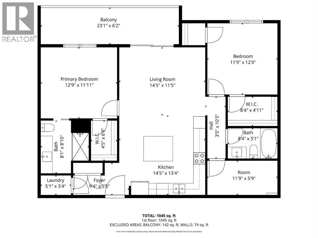
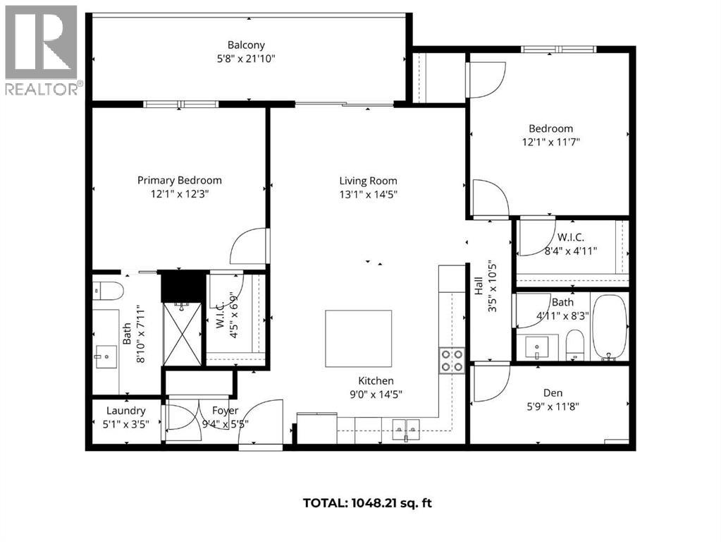
*****Open House on Saturday from 1-4pm and Sunday from 1-4pm Designed for both comfort and style, this C1 floor plan delivers a well-balanced 2-bedroom, 2-bath plus den layout with an inviting open-concept design. Quartz countertops, luxury vinyl plank flooring, and modern recessed lighting create a clean, contemporary aesthetic, while west-facing windows flood the home with warm natural light. The primary retreat features a walk-in closet and private ensuite, and wall-mounted air conditioning ensures year-round comfort.Life at The Monarch is elevated by an outstanding amenity offering, including a full-service fitness center, yoga studio, boardroom, residents’ lounge, entertaining space with deck and BBQ, two rooftop patios, guest suite, and a convenient dog wash station. Underground parkade parking provides secure and effortless access.Located in the heart of Cooper’s Crossing, just steps from Coopers Promenade, this address places you close to schools, parks, and daily conveniences, with quick connections to 8th Avenue, 40th Avenue, and Highway 2 making the commute to Calgary seamless. A smart opportunity for those seeking low-maintenance, upscale condo living in one of Airdrie’s most established communities. (id:47421)
Interested in obtaining the full price history for this property? Contact us!Contact us! Our real estate professionals would be happy to provide a complete listing history with historical sold prices and dates.
Detailed Information
Bedrooms
2
Bathrooms
2
Amenities Nearby
Park, Playground, Schools, Shopping
Community Features
Pets Allowed With Restrictions
Features
PVC window, Guest Suite, Parking
Listing Contract Date
2026-01-22
Maintenance Fee Payment Frequency
Monthly
Maintenance Fee Type
Common Area Maintenance, Heat, Insurance, Ground Maintenance, Property Management, Reserve Fund Contributions, Sewer, Waste Removal, Water
Management Company
Astoria Asset Management
Municipal ID
0040467466
Ownership Type
Condominium/Strata
# of Parking Spaces
1
Plan
2511666
Property Type
Single Family
Transaction Type
For sale
Zoning Description
R3
Building
Amenities
Exercise Centre, Guest Suite, Party Room
Appliances
Refrigerator, Window/Sleeve Air Conditioner, Range - Electric, Dishwasher, Microwave, Hood Fan, Window Coverings
Constructed Date
2025
Construction Material
Wood frame
Construction Style (Attachment)
Attached
Cooling Type
Wall unit
Exterior Finish
Brick, Composite Siding
Flooring Type
Carpeted, Vinyl Plank
Foundation Type
Poured Concrete
Heating Type
Baseboard heaters
Stories Total
4
Total Finished Area
1048.21 sqft
Type
Apartment
Rooms
Room
Level
Dimensions
Notes
Kitchen
Main level
9.00 Ft x 14.42 Ft
Dining room
Main level
12.33 Ft x 6.58 Ft
Living room
Main level
13.08 Ft x 14.42 Ft
Laundry room
Main level
5.08 Ft x 3.42 Ft
Den
Main level
5.75 Ft x 11.67 Ft
Primary Bedroom
Main level
12.08 Ft x 12.25 Ft
Bedroom
Main level
12.08 Ft x 11.58 Ft
3pc Bathroom
Main level
8.83 Ft x 7.92 Ft
4pc Bathroom
Main level
4.92 Ft x 8.25 Ft
Other
Main level
5.67 Ft x 22.83 Ft
Land
Total Size
Unknown
Amenities
Park, Playground, Schools, Shopping
Open Houses
Date & Time
Comments
29/05/2026 12:00 PM - 4:00 PM
30/05/2026 1:00 PM - 4:00 PM
31/05/2026 12:00 PM - 4:00 PM
Terms of Use
Please review and agree to the following terms of use to access the listing content:
REALTOR®, REALTORS®, and the REALTOR® logo are certification marks that are owned by REALTOR® Canada Inc. and licensed exclusively to The Canadian Real Estate Association (CREA). These certification marks identify real estate professionals who are members of CREA and who must abide by CREA's By-Laws, Rules, and the REALTOR® Code. The MLS® trademark and the MLS® logo are owned by CREA and identify the quality of services provided by real estate professionals who are members of CREA;
The information contained on this site is based in whole or in part on information that is provided by members of CREA, who are responsible for its accuracy. CREA reproduces and distributes this information as a service for its members and assumes no responsibility for its accuracy;
This website is operated by a brokerage or salesperson who is a member of CREA;
The listing content on this website is protected by copyright and other laws, and is intended solely for the private, non-commercial use by individuals. Any other reproduction, distribution or use of the content, in whole or in part, is specifically forbidden. The prohibited uses include commercial use, "screen scraping", "database scraping", and any other activity intended to collect, store, reorganize or manipulate data on the pages produced by or displayed on this website.
The information contained on this site is based in whole or in part on information that is provided under copyright by the Toronto Regional Real Estate Board (TRREB) or by members of The Canadian Real Estate Association (CREA), who are responsible for its accuracy. TRREB and CREA reproduce and distribute this information as a service for their members and assume no responsibility for its accuracy. All information displayed is believed to be accurate but is not guaranteed and should be independently verified. No warranties or representations of any kind are made with respect to the accuracy of such information. The information provided herein must only be used by consumers that have a bona fide interest in the purchase, sale, or lease of real estate and may not be used for any commercial purpose or any other purpose.