Office
9 Havelock Street
Amherst, NS
B4H 3J6
| Listed By | Keller Williams Select Realty (Branch), Keller Williams Select Realty |
|---|---|
| Data Provided By | Nova Scotia Association of REALTORS® |
| MLS® Listing Number | 202527949 |
| Last Updated | May 19, 2026 |
| Property Type |
Office
More like this: |
|---|---|
| Use | Office |
| Community | Amherst |
Interested in obtaining the full price history for this property?
Contact us!Contact us! Our real estate professionals would be happy to provide a complete listing history with historical sold prices and dates.
| Lease Time | Monthly |
|---|---|
| Listing Contract Date | 2025-11-13 |
| Location Description | Turn onto Havelock Street off of Victoria St W and the destination will be on your right. |
| Municipal ID | 25383720 |
| Ownership Type | Freehold |
| Property Type | Office |
| Transaction Type | For rent |
| Business Type | Other |
|---|---|
| Business Subtype | Offices |
| Constructed Date | 1985 |
|---|---|
| Construction Material | Masonry |
| Cooling Type | Heat Pump |
| Flooring Type | Other |
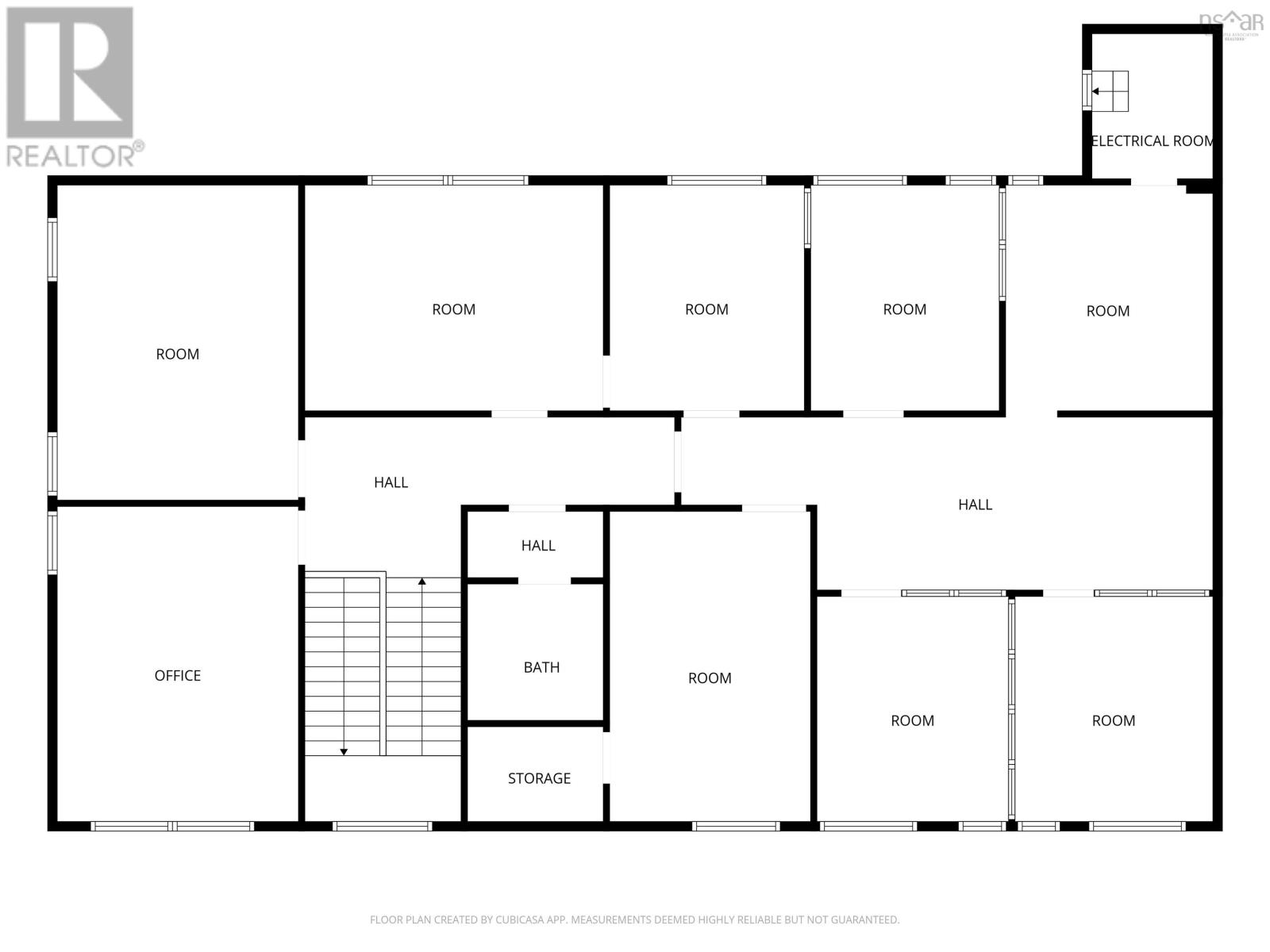
| Total Finished Area | 2211 sqft |
| Utility Water | Municipal water |
| Name | Spaces |
|---|---|
| Paved Yard |
| Total Size | 0.2979 acres |
|---|---|
| Size of Irregular Land | 0.2979 |
The information contained on this site is based in whole or in part on information that is provided under copyright by the Toronto Regional Real Estate Board (TRREB) or by members of The Canadian Real Estate Association (CREA), who are responsible for its accuracy. TRREB and CREA reproduce and distribute this information as a service for their members and assume no responsibility for its accuracy. All information displayed is believed to be accurate but is not guaranteed and should be independently verified. No warranties or representations of any kind are made with respect to the accuracy of such information.
The information provided herein must only be used by consumers that have a bona fide interest in the purchase, sale, or lease of real estate and may not be used for any commercial purpose or any other purpose.
FREE ESTIMATES ARE COMING
Reserve Your Spot To Be Notified
Coming soon to select cities
in North America
(We'll never share your details)











