PRIVATE LENDING AVAILABLE BY THE BUILDER. 1.5% INTEREST, 7% DOWN. 3 YEARS FULLY OPEN - Option of Interest Paying Only! Option to further extend for two additional years at 2% Brand New 2STOREY homes on Executive lots in the Heart of Ancaster, tucked away on a safe & quiet cul de sac road. This particular 2storey holds 2535 sf. with 4 beds, open living space and 2.5 baths with main floor laundry for easy living Loaded with pot lights, granite/quartz counter tops, and hardwood flooring of your choice. Take this opportunity to be the first owner of this home and make it your own! Seconds to Hwy Access, all amenities & restaurants. All Room sizes are approx, Changes have been made to floor plan layout. Built and can be shown. (id:47421)
Interested in obtaining the full price history for this property? Contact us!Contact us! Our real estate professionals would be happy to provide a complete listing history with historical sold prices and dates.
Detailed Information
Bedrooms
4
Bathrooms
2
Lot
43 x 0 ft
Amenities Nearby
Playground, Public Transit, Schools, Shopping
Equipment
Water Heater
Features
Cul-de-sac, Balcony, Crushed stone driveway, No Pet Home
Listing Contract Date
2025-09-11
Location Description
Wilson to Shaver to Cesar
Ownership Type
Freehold
# of Parking Spaces
4
Property Type
Single Family
Rental Equipment
Water Heater
Storage
Locker
Transaction Type
For sale
Zoning Description
R4
Building
Age
New building
Appliances
Central Vacuum - Roughed In
Architectural Style
2 Level
Basement Development
Unfinished
Basement Type
Full (Unfinished)
Construction Style (Attachment)
Detached
Cooling Type
Central air conditioning
Exterior Finish
Brick, Stone, Stucco
Fireplace Present
Yes
# of Fireplaces
1
# of Half Bathrooms
1
Heating Type
Forced air
Stories Total
2
Type
House
Utility Water
Municipal water
Rooms
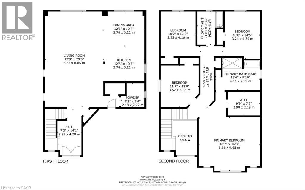
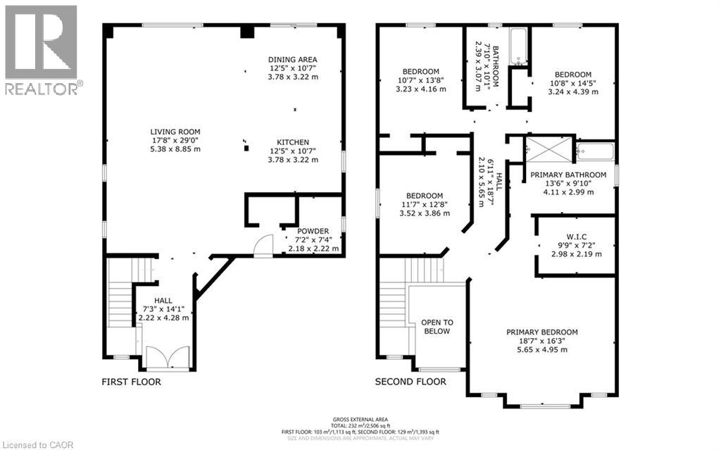
Room
Level
Dimensions
Notes
Bedroom
Second level
13'5'' x 11'11''
Primary Bedroom
Second level
18'5'' x 15'4''
Bedroom
Second level
13'3'' x 11'10''
Bedroom
Second level
13'5'' x 11'10''
5pc Bathroom
Second level
Measurements not available
Laundry room
Main level
Measurements not available
Family room
Main level
16'8'' x 15'0''
Kitchen
Main level
21'3'' x 12'9''
Dining room
Main level
13'0'' x 12'3''
2pc Bathroom
Main level
Measurements not available
Parking Spaces
Name
Spaces
Attached Garage
Land
Total Size
under 1/2 acre
Access Type
Road access, Highway Nearby
Amenities
Playground, Public Transit, Schools, Shopping
Sewer
Municipal sewage system
Terms of Use
Please review and agree to the following terms of use to access the listing content:
REALTOR®, REALTORS®, and the REALTOR® logo are certification marks that are owned by REALTOR® Canada Inc. and licensed exclusively to The Canadian Real Estate Association (CREA). These certification marks identify real estate professionals who are members of CREA and who must abide by CREA's By-Laws, Rules, and the REALTOR® Code. The MLS® trademark and the MLS® logo are owned by CREA and identify the quality of services provided by real estate professionals who are members of CREA;
The information contained on this site is based in whole or in part on information that is provided by members of CREA, who are responsible for its accuracy. CREA reproduces and distributes this information as a service for its members and assumes no responsibility for its accuracy;
This website is operated by a brokerage or salesperson who is a member of CREA;
The listing content on this website is protected by copyright and other laws, and is intended solely for the private, non-commercial use by individuals. Any other reproduction, distribution or use of the content, in whole or in part, is specifically forbidden. The prohibited uses include commercial use, "screen scraping", "database scraping", and any other activity intended to collect, store, reorganize or manipulate data on the pages produced by or displayed on this website.
The information contained on this site is based in whole or in part on information that is provided under copyright by the Toronto Regional Real Estate Board (TRREB) or by members of The Canadian Real Estate Association (CREA), who are responsible for its accuracy. TRREB and CREA reproduce and distribute this information as a service for their members and assume no responsibility for its accuracy. All information displayed is believed to be accurate but is not guaranteed and should be independently verified. No warranties or representations of any kind are made with respect to the accuracy of such information. The information provided herein must only be used by consumers that have a bona fide interest in the purchase, sale, or lease of real estate and may not be used for any commercial purpose or any other purpose.