New semi detached home in Chesley built by Candue Homes! This 2-storey home with finished basement is located in an established neighbourhood in Chesley. Featuring an open-concept main floor, the layout is bright and functional. The kitchen offers quartz countertops with overhang barstool seating and includes all appliances. Upstairs you'll find 3 bedrooms and 2 full bathrooms, including a large primary suite with a walk-in closet and 3 piece ensuite. Quartz counters also in the main and ensuite baths. Outside, enjoy a paved driveway, and sodded & partially fenced yard, great for pets or kids. Tarion warranty included. *The listed price reflects the HST New Housing Rebate. If the property is not being purchased as a primary residence or long term rental, the buyer will be required to pay the full 13% HST.* (id:47421)
Interested in obtaining the full price history for this property? Contact us!Contact us! Our real estate professionals would be happy to provide a complete listing history with historical sold prices and dates.
Detailed Information
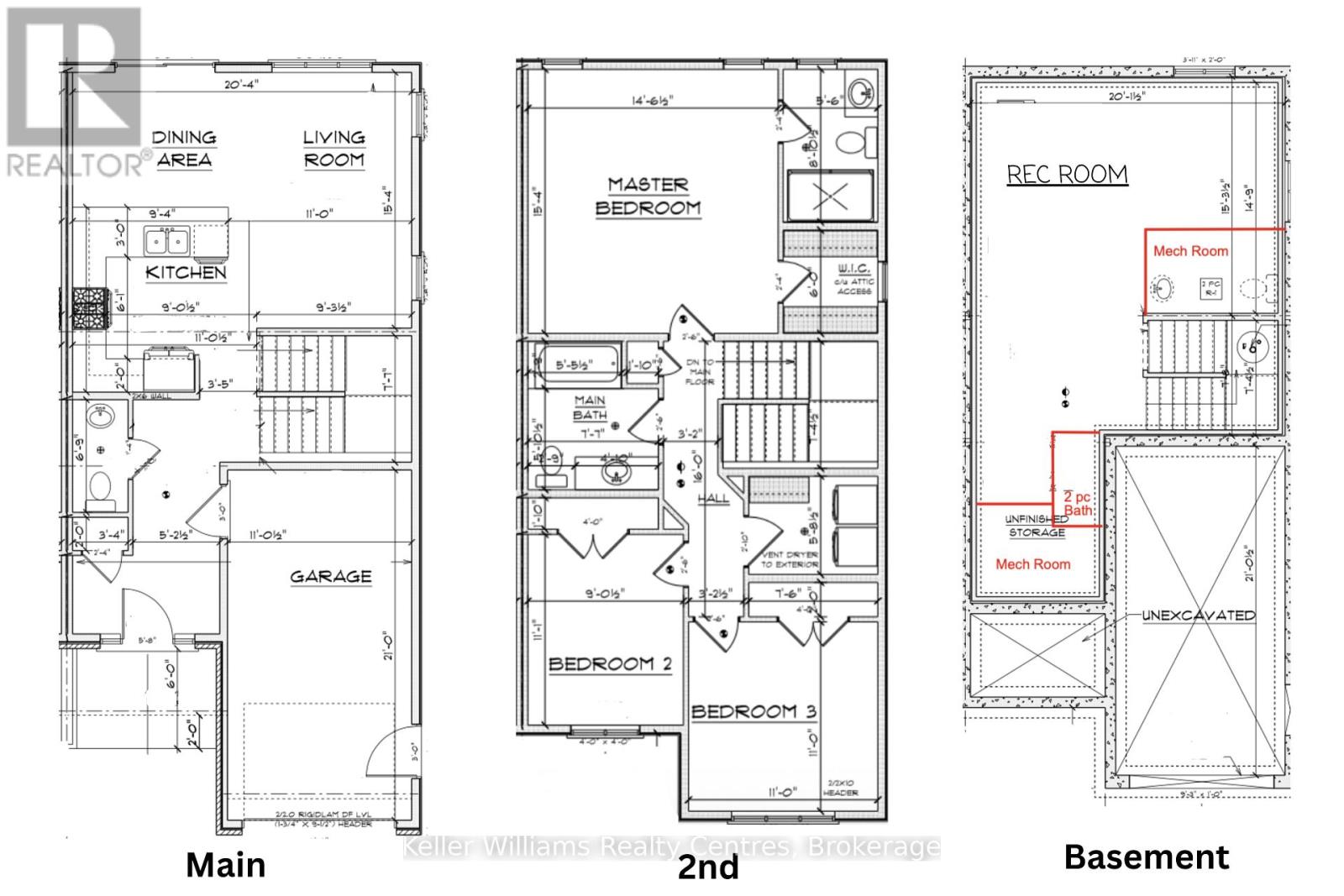
Bedrooms
3
Bathrooms
4
Lot
30.17 x 99.08 ft
Amenities Nearby
Hospital, Park, Place of Worship, Schools
Community Features
Community Centre
Listing Contract Date
2025-12-08
Location Description
Cross Streets: 7th Street SW. ** Directions: From Main St (1st Ave) head onto 7th St W, then right onto 2nd Ave SW.
Ownership Type
Freehold
# of Parking Spaces
3
Property Type
Single Family
Transaction Type
For sale
Zoning Description
R2
Building
Age
New building
Appliances
Water Heater, Water softener, Dishwasher, Dryer, Garage door opener, Microwave, Stove, Washer, Refrigerator
Basement Development
Finished
Basement Type
Full (Finished)
Construction Style (Attachment)
Semi-detached
Cooling Type
Central air conditioning, Air exchanger
Exterior Finish
Stone, Vinyl siding
Fire Protection
Smoke Detectors
Foundation Type
Poured Concrete
# of Half Bathrooms
2
Heating Fuel
Natural gas
Heating Type
Forced air
Stories Total
2
Type
House
Utility Water
Municipal water
Rooms
Room
Level
Dimensions
Notes
Bedroom
Second level
4.6736 m x 4.4196 m
Bedroom 2
Second level
3.3782 m x 2.7432 m
Bedroom 3
Second level
3.3528 m x 3.3528 m
Laundry room
Second level
1.7272 m x 2.286 m
Utility room
Basement
2.23 m x 1.64 m
Recreational, Games room
Basement
6.639 m x 5.727 m
Utility room
Basement
1.495 m x 2.735 m
Living room
Main level
3.3528 m x 4.6736 m
Kitchen
Main level
2.8448 m x 3.3782 m
Dining room
Main level
2.8448 m x 2.4638 m
Foyer
Main level
4.2672 m x 2.5908 m
Parking Spaces
Name
Spaces
Attached Garage
Garage
Utilities
Type
Description
Cable
Available
Electricity
Installed
Wireless
Available
Telephone
Nearby
Sewer
Installed
Land
Total Size
30.2 x 99.1 FT
Amenities
Hospital, Park, Place of Worship, Schools
Sewer
Sanitary sewer
Size of Irregular Land
30.2 x 99.1 FT
Terms of Use
Please review and agree to the following terms of use to access the listing content:
REALTOR®, REALTORS®, and the REALTOR® logo are certification marks that are owned by REALTOR® Canada Inc. and licensed exclusively to The Canadian Real Estate Association (CREA). These certification marks identify real estate professionals who are members of CREA and who must abide by CREA's By-Laws, Rules, and the REALTOR® Code. The MLS® trademark and the MLS® logo are owned by CREA and identify the quality of services provided by real estate professionals who are members of CREA;
The information contained on this site is based in whole or in part on information that is provided by members of CREA, who are responsible for its accuracy. CREA reproduces and distributes this information as a service for its members and assumes no responsibility for its accuracy;
This website is operated by a brokerage or salesperson who is a member of CREA;
The listing content on this website is protected by copyright and other laws, and is intended solely for the private, non-commercial use by individuals. Any other reproduction, distribution or use of the content, in whole or in part, is specifically forbidden. The prohibited uses include commercial use, "screen scraping", "database scraping", and any other activity intended to collect, store, reorganize or manipulate data on the pages produced by or displayed on this website.
The information contained on this site is based in whole or in part on information that is provided under copyright by the Toronto Regional Real Estate Board (TRREB) or by members of The Canadian Real Estate Association (CREA), who are responsible for its accuracy. TRREB and CREA reproduce and distribute this information as a service for their members and assume no responsibility for its accuracy. All information displayed is believed to be accurate but is not guaranteed and should be independently verified. No warranties or representations of any kind are made with respect to the accuracy of such information. The information provided herein must only be used by consumers that have a bona fide interest in the purchase, sale, or lease of real estate and may not be used for any commercial purpose or any other purpose.