Retirement living along the shores of Lake Huron! Welcome to 11 Windward Way, The Bluffs at Huron. Built in 2018, this gorgeous Cliffside B model offers over 1,400 sqft of open concept living space. Beautiful upgrades include a stunning tray ceiling, crown molding over cabinets, a quartz-topped island, high-end appliances, window coverings, lighting fixtures, and extra tall baseboards. The luxurious primary suite features a walk-in closet and gorgeous ensuite bath. Hosting family and friends is easy in this home, with the large second bedroom, a full bath, and a spacious dining room with patio door access to your private deck. Incredible storage is available throughout, with additional space in the crawlspace and the two-car garage. Enjoy summer mornings on your east-facing covered front porch while watching the sunrise, or spend summer days on your private deck under the gazebo. Just a short walk to the top of the lake bank, where you can enjoy the famous Lake Huron sunsets year-round. Minutes north of Goderich for shopping and dining, this retirement community offers incredible amenities and Lake access, including state-of-the-art recreation centre with an indoor pool, sauna, entertainment spaces, library, and the newly added outdoor pickleball courts and dog run. Simply turn the key and enjoy!! (id:47421)
Interested in obtaining the full price history for this property? Contact us!Contact us! Our real estate professionals would be happy to provide a complete listing history with historical sold prices and dates.
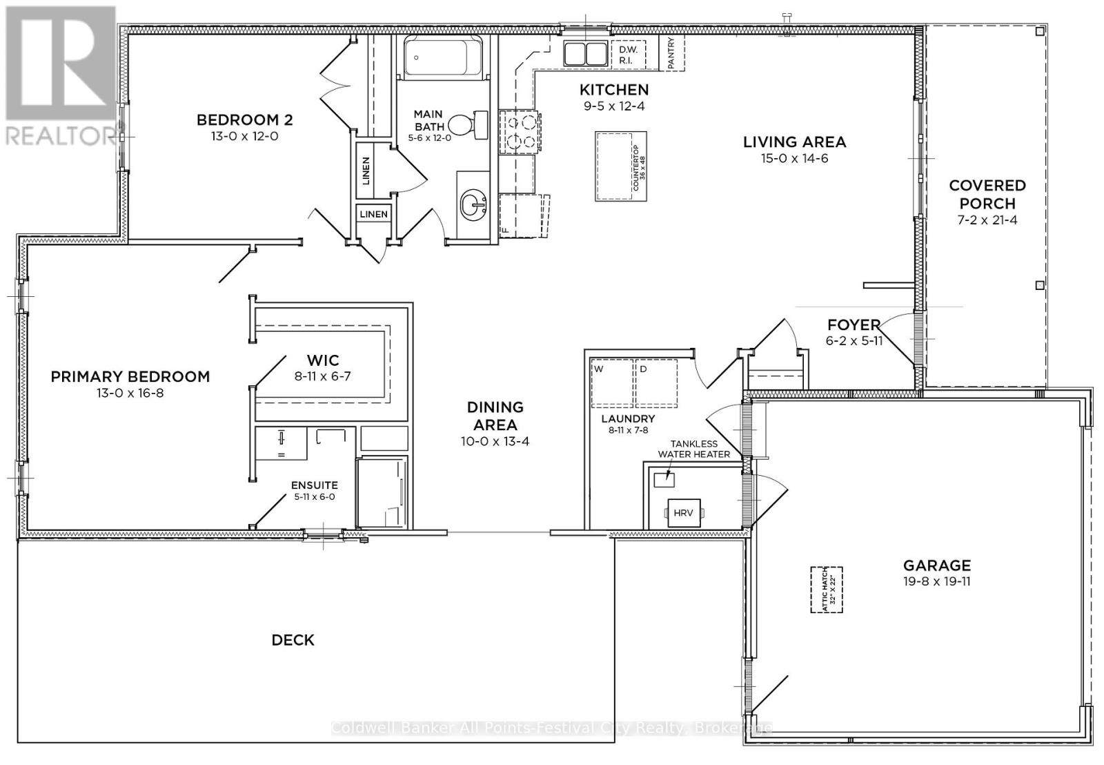
Detailed Information
Bedrooms
2
Bathrooms
2
Amenities Nearby
Beach, Golf Nearby, Hospital
Community Features
Community Centre
Equipment
Water Heater - Tankless, Water Heater, Water Softener
Features
Gazebo, Sump Pump
Listing Contract Date
2026-01-19
Location Description
Cross Streets: West Coast Way. ** Directions: North of Goderich on Hwy 21, turn west into the Bluffs at Huron. Westcoast Way to Windward Way N.
Ownership Type
Leasehold/Leased Land
# of Parking Spaces
4
Property Type
Single Family
Rental Equipment
Water Heater - Tankless, Water Heater, Water Softener
Structures
Deck, Porch, Shed
Transaction Type
For sale
Zoning Description
LR3-2
Building
Age
6 to 15 years
Appliances
Garage door opener remote(s), Water Heater - Tankless, Water softener, Blinds, Dishwasher, Dryer, Garage door opener, Microwave, Stove, Washer, Refrigerator
Architectural Style
Bungalow
Basement Development
Unfinished
Basement Type
Crawl space (Unfinished)
Construction Style (Attachment)
Detached
Cooling Type
Central air conditioning, Air exchanger
Exterior Finish
Vinyl siding
Foundation Type
Poured Concrete
Heating Fuel
Natural gas
Heating Type
Forced air
Stories Total
1
Type
House
Utility Water
Community Water System
Rooms
Room
Level
Dimensions
Notes
Foyer
Main level
1.89 m x 1.55 m
Living room
Main level
4.57 m x 4.45 m
Laundry room
Main level
2.47 m x 2.34 m
Kitchen
Main level
2.9 m x 3.78 m
Dining room
Main level
3.04 m x 4.08 m
Bedroom 2
Main level
3.96 m x 3.65 m
Primary Bedroom
Main level
3.96 m x 5.12 m
Parking Spaces
Name
Spaces
Attached Garage
Garage
Utilities
Type
Description
Natural Gas Available
Available
Wireless
Available
Land
Amenities
Beach, Golf Nearby, Hospital
Landscape Features
Landscaped
Sewer
Septic System
Terms of Use
Please review and agree to the following terms of use to access the listing content:
REALTOR®, REALTORS®, and the REALTOR® logo are certification marks that are owned by REALTOR® Canada Inc. and licensed exclusively to The Canadian Real Estate Association (CREA). These certification marks identify real estate professionals who are members of CREA and who must abide by CREA's By-Laws, Rules, and the REALTOR® Code. The MLS® trademark and the MLS® logo are owned by CREA and identify the quality of services provided by real estate professionals who are members of CREA;
The information contained on this site is based in whole or in part on information that is provided by members of CREA, who are responsible for its accuracy. CREA reproduces and distributes this information as a service for its members and assumes no responsibility for its accuracy;
This website is operated by a brokerage or salesperson who is a member of CREA;
The listing content on this website is protected by copyright and other laws, and is intended solely for the private, non-commercial use by individuals. Any other reproduction, distribution or use of the content, in whole or in part, is specifically forbidden. The prohibited uses include commercial use, "screen scraping", "database scraping", and any other activity intended to collect, store, reorganize or manipulate data on the pages produced by or displayed on this website.
The information contained on this site is based in whole or in part on information that is provided under copyright by the Toronto Regional Real Estate Board (TRREB) or by members of The Canadian Real Estate Association (CREA), who are responsible for its accuracy. TRREB and CREA reproduce and distribute this information as a service for their members and assume no responsibility for its accuracy. All information displayed is believed to be accurate but is not guaranteed and should be independently verified. No warranties or representations of any kind are made with respect to the accuracy of such information. The information provided herein must only be used by consumers that have a bona fide interest in the purchase, sale, or lease of real estate and may not be used for any commercial purpose or any other purpose.