Are you are looking for the perfect family home? Then look no further than 24 Bernard Crescent. Built by the current owners in 1986 and meticulously maintained, this well thought out, spacious home has much to offer. The double lot boasts year round river views. The handsome and low maintenance brick exterior pairs nicely with the architectural shingle roof re-done in 2020. The attached, oversized double garage is insulated and heated. Mechanically, there is a high efficiency, natural gas furnace installed in 2020, central air, a stand-by generator and a new septic tank from 2021. Off the kitchen and garage there is a mudroom that leads to the rear deck which is perfect for barbecuing on those lazy summer evenings. Entertain in the spacious living room with a cozy wood fire burning, gazing at the river, or relax with the family in the lower level family room, with a gas burning fireplace, appreciating the abundance of natural light from the oversized windows. Great location being mere minutes from Brockville in the popular Maitland area, where you have easy access to Highway 401. Don't miss out on this beautiful home that ticks off all of the boxes. ** This is a linked property.** (id:47421)
Interested in obtaining the full price history for this property? Contact us!Contact us! Our real estate professionals would be happy to provide a complete listing history with historical sold prices and dates.
Detailed Information
Bedrooms
3+1
Bathrooms
2
Lot
220.75 x 135.17 ft
Equipment
None
Features
Irregular lot size, Sump Pump
Listing Contract Date
2026-01-26
Location Description
Cross Streets: Bernard and Wood. ** Directions: From Brockville, head east on County Road 2. As you approach Maitland, head north on Wood Street. The home is at the top of Wood Street facing Bernard Crescent.
Ownership Type
Freehold
# of Parking Spaces
8
Property Type
Single Family
Rental Equipment
None
Structures
Deck
Transaction Type
For sale
Views
River view
Building
Age
31 to 50 years
Amenities
Fireplace(s)
Appliances
Garage door opener remote(s), Water Heater, Central Vacuum, Dishwasher, Dryer, Freezer, Hood Fan, Stove, Washer, Water softener, Window Coverings, Refrigerator
Architectural Style
Raised bungalow
Basement Development
Finished
Basement Type
N/A (Finished)
Construction Style (Attachment)
Detached
Cooling Type
Central air conditioning
Exterior Finish
Brick
Fireplace Present
Yes
# of Fireplaces
2
Foundation Type
Block
Heating Fuel
Natural gas
Heating Type
Forced air
Stories Total
1
Type
House
Utility Power
Generator
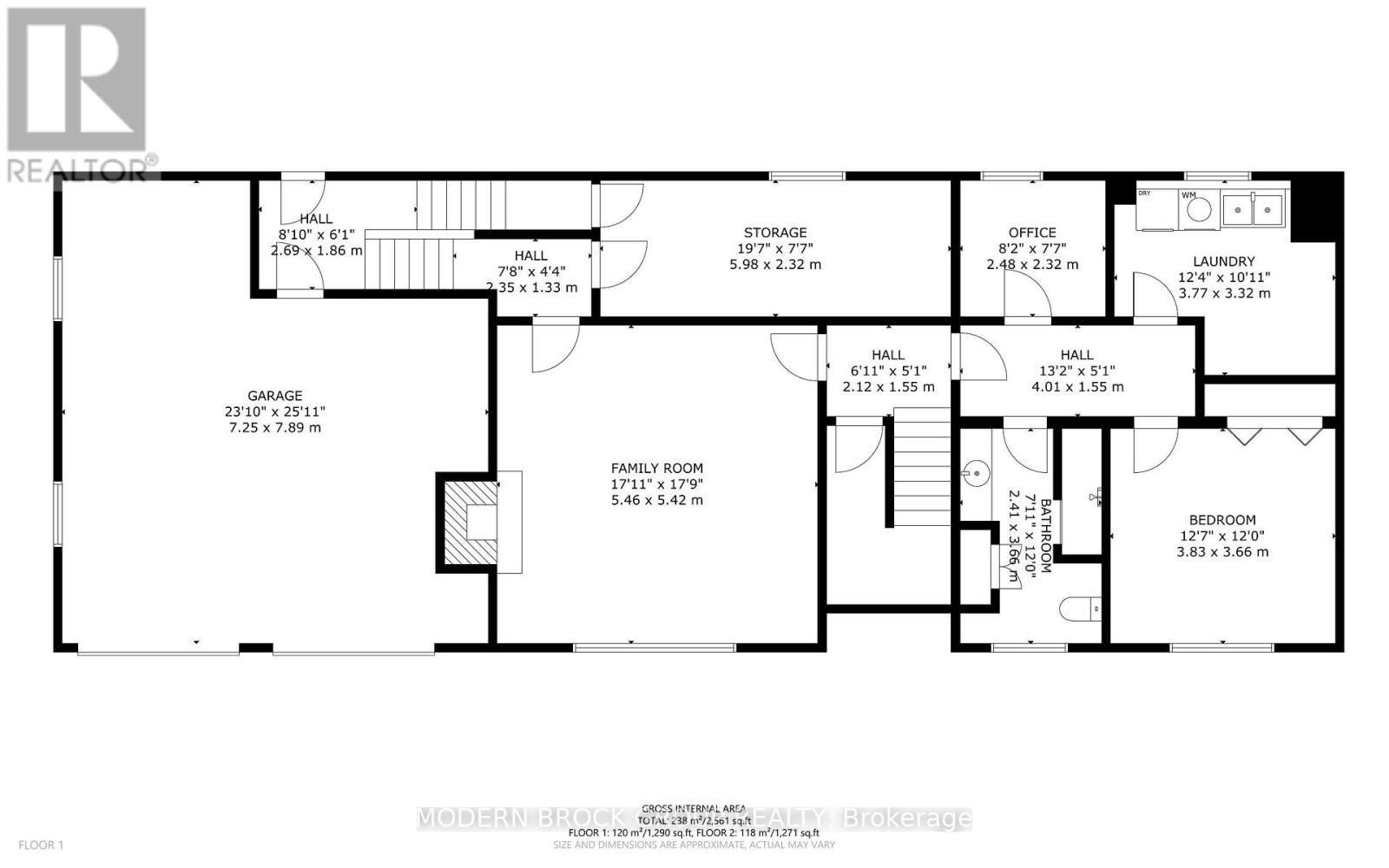
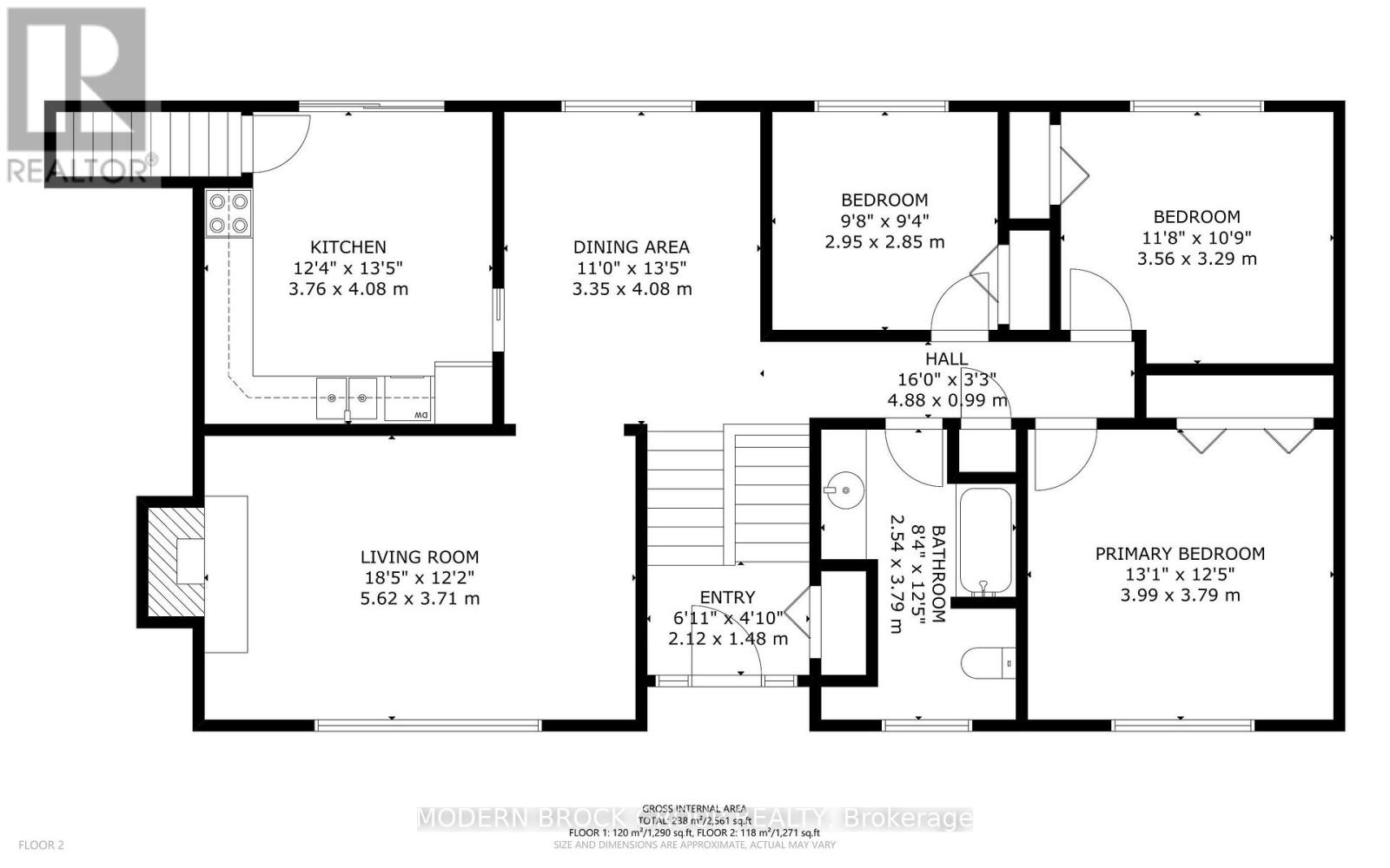
Rooms
Room
Level
Dimensions
Notes
Office
Lower level
2.48 m x 2.32 m
Furnace
Lower level
5.98 m x 2.32 m
Laundry room
Lower level
3.77 m x 3.32 m
Family room
Lower level
5.46 m x 5.42 m
Bedroom 4
Lower level
3.83 m x 3.66 m
Bathroom
Lower level
3.66 m x 2.41 m
Living room
Main level
5.62 m x 3.71 m
Dining room
Main level
4.08 m x 3.35 m
Kitchen
Main level
4.08 m x 3.76 m
Primary Bedroom
Main level
3.99 m x 3.79 m
Bedroom 2
Main level
3.56 m x 3.29 m
Bedroom 3
Main level
2.95 m x 2.85 m
Bathroom
Main level
3.79 m x 2.54 m
Parking Spaces
Name
Spaces
Attached Garage
Garage
Utilities
Type
Description
Cable
Installed
Electricity
Installed
Land
Total Size
220.8 x 135.2 FT
Sewer
Septic System
Size of Irregular Land
220.8 x 135.2 FT
Terms of Use
Please review and agree to the following terms of use to access the listing content:
REALTOR®, REALTORS®, and the REALTOR® logo are certification marks that are owned by REALTOR® Canada Inc. and licensed exclusively to The Canadian Real Estate Association (CREA). These certification marks identify real estate professionals who are members of CREA and who must abide by CREA's By-Laws, Rules, and the REALTOR® Code. The MLS® trademark and the MLS® logo are owned by CREA and identify the quality of services provided by real estate professionals who are members of CREA;
The information contained on this site is based in whole or in part on information that is provided by members of CREA, who are responsible for its accuracy. CREA reproduces and distributes this information as a service for its members and assumes no responsibility for its accuracy;
This website is operated by a brokerage or salesperson who is a member of CREA;
The listing content on this website is protected by copyright and other laws, and is intended solely for the private, non-commercial use by individuals. Any other reproduction, distribution or use of the content, in whole or in part, is specifically forbidden. The prohibited uses include commercial use, "screen scraping", "database scraping", and any other activity intended to collect, store, reorganize or manipulate data on the pages produced by or displayed on this website.
The information contained on this site is based in whole or in part on information that is provided under copyright by the Toronto Regional Real Estate Board (TRREB) or by members of The Canadian Real Estate Association (CREA), who are responsible for its accuracy. TRREB and CREA reproduce and distribute this information as a service for their members and assume no responsibility for its accuracy. All information displayed is believed to be accurate but is not guaranteed and should be independently verified. No warranties or representations of any kind are made with respect to the accuracy of such information. The information provided herein must only be used by consumers that have a bona fide interest in the purchase, sale, or lease of real estate and may not be used for any commercial purpose or any other purpose.