L'Amable - This versatile property offers a 5-bedroom, 3-bathroom home surrounded by mature trees and gardens, providing privacy and space for family living. The home features a maple kitchen, main floor laundry, two wood stoves, and a finished lower level with additional bedrooms. It's a good choice for extended family or multi-generational living with several options to spread out. A gated entrance leads to a double garage/pole barn, large storage shed, and plenty of parking. An additional commercially zoned, heated building with hot and cold water is perfect for those with a plan - convert it into an in-law suite, rental apartment, or workshop to suit your needs. A fully automated 20 KW generator powers both buildings, while a spring-fed water supply with UV treatment and a propane furnace and owned hot water tank ensure peace of mind. With high-speed internet, garbage/recycling pickup, school bus route, and short drive to the beach and recreational trails, this property combines comfort, practicality, and opportunity. (id:47421)
Interested in obtaining the full price history for this property? Contact us!Contact us! Our real estate professionals would be happy to provide a complete listing history with historical sold prices and dates.
Detailed Information
Bedrooms
6
Bathrooms
3
Lot
72.8 x 60 m
Equipment
Propane Tank
Features
Irregular lot size, Level
Listing Contract Date
2025-09-06
Location Description
Cross Streets: Hwy 62 South. ** Directions: Highway 62 South of Bancroft.
Ownership Type
Freehold
# of Parking Spaces
10
Property Type
Single Family
Rental Equipment
Propane Tank
Transaction Type
For sale
Zoning Description
Rurral
Building
Age
31 to 50 years
Amenities
Fireplace(s)
Appliances
Water Treatment, Dishwasher, Dryer, Stove, Washer, Refrigerator
Basement Type
Full
Construction Status
Insulation upgraded
Construction Style (Attachment)
Detached
Cooling Type
None
Exterior Finish
Wood
Fireplace Present
Yes
Foundation Type
Block
Heating Fuel
Propane
Heating Type
Forced air
Stories Total
1.5
Type
House
Rooms
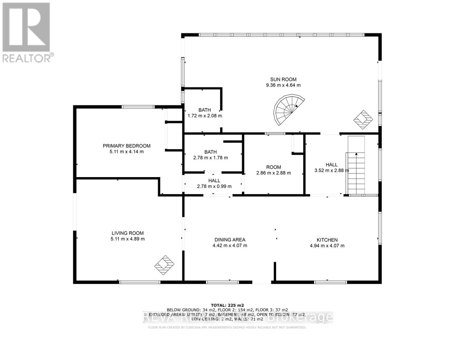
Room
Level
Dimensions
Notes
Bedroom 5
Basement
4.9 m x 3.09 m
Bedroom
Basement
4.6 m x 3.35 m
Utility room
Basement
3.18 m x 2.02 m
Bedroom 4
Lower level
4.06 m x 3.38 m
Bathroom
Lower level
1.72 m x 2.08 m
Bedroom 3
Lower level
3.93 m x 2.47 m
Sunroom
Main level
9.36 m x 4.64 m
Bathroom
Main level
1.72 m x 2.08 m
Primary Bedroom
Main level
5.11 m x 4.14 m
Bedroom 2
Main level
2.86 m x 2.88 m
Bathroom
Main level
2.78 m x 1.78 m
Living room
Main level
5.11 m x 4.89 m
Dining room
Main level
4.42 m x 4.07 m
Kitchen
Main level
4.94 m x 4.07 m
Parking Spaces
Name
Spaces
No Garage
Utilities
Type
Description
Electricity
Installed
Land
Total Size
72.8 x 60 M
Sewer
Septic System
Size of Irregular Land
72.8 x 60 M
Terms of Use
Please review and agree to the following terms of use to access the listing content:
REALTOR®, REALTORS®, and the REALTOR® logo are certification marks that are owned by REALTOR® Canada Inc. and licensed exclusively to The Canadian Real Estate Association (CREA). These certification marks identify real estate professionals who are members of CREA and who must abide by CREA's By-Laws, Rules, and the REALTOR® Code. The MLS® trademark and the MLS® logo are owned by CREA and identify the quality of services provided by real estate professionals who are members of CREA;
The information contained on this site is based in whole or in part on information that is provided by members of CREA, who are responsible for its accuracy. CREA reproduces and distributes this information as a service for its members and assumes no responsibility for its accuracy;
This website is operated by a brokerage or salesperson who is a member of CREA;
The listing content on this website is protected by copyright and other laws, and is intended solely for the private, non-commercial use by individuals. Any other reproduction, distribution or use of the content, in whole or in part, is specifically forbidden. The prohibited uses include commercial use, "screen scraping", "database scraping", and any other activity intended to collect, store, reorganize or manipulate data on the pages produced by or displayed on this website.
The information contained on this site is based in whole or in part on information that is provided under copyright by the Toronto Regional Real Estate Board (TRREB) or by members of The Canadian Real Estate Association (CREA), who are responsible for its accuracy. TRREB and CREA reproduce and distribute this information as a service for their members and assume no responsibility for its accuracy. All information displayed is believed to be accurate but is not guaranteed and should be independently verified. No warranties or representations of any kind are made with respect to the accuracy of such information. The information provided herein must only be used by consumers that have a bona fide interest in the purchase, sale, or lease of real estate and may not be used for any commercial purpose or any other purpose.