Welcome to 7 MacNeil Court! Discover your dream home in the heart of Port Burwell! This stunning white, hardy board & batten board, showcases a beautiful stone facade with elegant black and blonde oak accents. 3+2 Spacious Bedrooms, including a luxurious primary suite with ensuite and walk-in closet. 2+1 Full Bathrooms, designed for both comfort and style. An **Open Concept Living Space** that flows seamlessly into a chef's kitchen, perfect for entertaining! Take in the beauty of **vaulted ceilings** and a custom iron shiplap fireplace that adds warmth and character. Stainless steel appliances and matte black finishes create a sleek and modern vibe. This home is offering all contents, as a complete package, move in ready, that features, Two TV's with Wall mount brackets, Sofa couch and matching recliner chair, Kitchen table with chairs, two island stools, both bedroom sets, Stereo and speakers, BBQ and Two patio chairs, the Garage workbench, the Snowblower, the lawnmower, the gas weedtrimmer, and leafblower, the garage shelving, the table saw and the mitre saw, all furniture and contents purchased brand new within a year ago. Recently purchased backup hydro system that connects to the Hydro meter for those unexpected power outages, Briggs & Straton Generator in Negoaitable with all offers. Just minutes from Port Burwell's summer hub, a short stroll to breathtaking views, and an easy commute to Tillsonburg. This oasis of a home is not just a house; it's a peaceful retreat waiting for a family to create lasting memories. Perfect for Airbnb setup. Move-in ready and waiting for YOU! (id:47421)
Interested in obtaining the full price history for this property? Contact us!Contact us! Our real estate professionals would be happy to provide a complete listing history with historical sold prices and dates.
Detailed Information
Bedrooms
5+2
Bathrooms
3
Lot
40 x 120 ft
Amenities Nearby
Beach, Marina
Community Features
School Bus
Features
Irregular lot size, Sump Pump
Listing Contract Date
2026-01-06
Location Description
Cross Streets: Elizabeth. ** Directions: Victoria St to William St - Left onto MacNeil.
Ownership Type
Freehold
# of Parking Spaces
3
Property Type
Single Family
Transaction Type
For sale
Waterfront Name
Lake Erie
Zoning Description
R2
Building
Age
0 to 5 years
Amenities
Fireplace(s)
Appliances
Garage door opener remote(s), Oven - Built-In, Water Heater, Water meter, Dishwasher, Dryer, Furniture, Garage door opener, Microwave, Hood Fan, Stove, Washer, Window Coverings, Refrigerator
Architectural Style
Bungalow
Basement Development
Finished
Basement Type
N/A (Finished)
Construction Style (Attachment)
Detached
Cooling Type
Central air conditioning, Air exchanger
Exterior Finish
Wood, Brick Facing
Fireplace Present
Yes
# of Fireplaces
1
Foundation Type
Poured Concrete
Heating Fuel
Natural gas
Heating Type
Forced air
Stories Total
1
Type
House
Utility Power
Generator
Utility Water
Municipal water
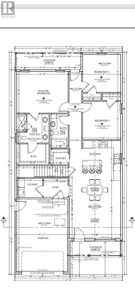
Rooms
Room
Level
Dimensions
Notes
Games room
Basement
8.94 m x 4.47 m
Bedroom 4
Basement
3.61 m x 4.47 m
Bedroom 5
Basement
3.66 m x 4.47 m
Bathroom
Basement
4.72 m x 1.68 m
Living room
Main level
4.5 m x 5.08 m
Dining room
Main level
4.5 m x 3.51 m
Primary Bedroom
Main level
3.66 m x 4.52 m
Bedroom 2
Main level
3.35 m x 3.35 m
Bedroom 3
Main level
3.35 m x 3.35 m
Laundry room
Main level
1.68 m x 2.29 m
Kitchen
Main level
3.51 m x 4.5 m
Parking Spaces
Name
Spaces
Attached Garage
Garage
Utilities
Type
Description
Cable
Installed
Electricity
Installed
Sewer
Installed
Land
Total Size
40 x 120 FT ; front corner curves with culdsec | under 1/2 acre
Access Type
Public Road, Private Docking, Public Docking
Amenities
Beach, Marina
Sewer
Sanitary sewer
Size of Irregular Land
40 x 120 FT ; front corner curves with culdsec
Terms of Use
Please review and agree to the following terms of use to access the listing content:
REALTOR®, REALTORS®, and the REALTOR® logo are certification marks that are owned by REALTOR® Canada Inc. and licensed exclusively to The Canadian Real Estate Association (CREA). These certification marks identify real estate professionals who are members of CREA and who must abide by CREA's By-Laws, Rules, and the REALTOR® Code. The MLS® trademark and the MLS® logo are owned by CREA and identify the quality of services provided by real estate professionals who are members of CREA;
The information contained on this site is based in whole or in part on information that is provided by members of CREA, who are responsible for its accuracy. CREA reproduces and distributes this information as a service for its members and assumes no responsibility for its accuracy;
This website is operated by a brokerage or salesperson who is a member of CREA;
The listing content on this website is protected by copyright and other laws, and is intended solely for the private, non-commercial use by individuals. Any other reproduction, distribution or use of the content, in whole or in part, is specifically forbidden. The prohibited uses include commercial use, "screen scraping", "database scraping", and any other activity intended to collect, store, reorganize or manipulate data on the pages produced by or displayed on this website.
The information contained on this site is based in whole or in part on information that is provided under copyright by the Toronto Regional Real Estate Board (TRREB) or by members of The Canadian Real Estate Association (CREA), who are responsible for its accuracy. TRREB and CREA reproduce and distribute this information as a service for their members and assume no responsibility for its accuracy. All information displayed is believed to be accurate but is not guaranteed and should be independently verified. No warranties or representations of any kind are made with respect to the accuracy of such information. The information provided herein must only be used by consumers that have a bona fide interest in the purchase, sale, or lease of real estate and may not be used for any commercial purpose or any other purpose.