**Ready to move in by February 28, 2026** Introducing The Bellmore, a beautifully crafted 4-bedroom, 3.5-bath detached home by Shaughnessy Homes in Belle Rose Park, West Bedford. Spanning 2,537 sq. ft. across three finished levels on a 34 lot, this home blends modern style with everyday functionality. The main floor features an open-concept layout with a designer kitchen boasting a walk-in pantry, premium quartz countertops, and soft-close cabinetry. A stylish dining room bump-out adds a touch of elegance, perfect for gatherings. Engineered hardwood flows through the main and upper levels, complemented by an electric fireplace in the living area. Step outside to a beautifully finished composite deck, providing long-lasting durability with low maintenance. The finished WALKOUT basement is equipped with a wet bar, large bedroom, full bathroom and a spacious rec room perfect for extended family members. This home includes a fully ducted heat pump with natural gas backup, plus rough-ins for a gas range, dryer, BBQ, water heater, and a 50 AMP EV charger. Nestled off Larry Uteck Blvd in the serene Belle Rose Park, this home is steps from schools, parks, and amenities. Built with Shaughnessy Homes signature quality, The Bellmore is a rare find in one of Bedfords most desirable communities. (id:47421)
Interested in obtaining the full price history for this property? Contact us!Contact us! Our real estate professionals would be happy to provide a complete listing history with historical sold prices and dates.
Detailed Information
Bedrooms
3+1
Bathrooms
4
Amenities Nearby
Park, Playground, Shopping
Community Features
Recreational Facilities, School Bus
Listing Contract Date
2025-12-09
Location Description
Hammonds Plains to Lewis Drive
Municipal ID
41547464
Ownership Type
Freehold
Property Type
Single Family
Transaction Type
For sale
Building
Appliances
None
Construction Style (Attachment)
Detached
Cooling Type
Heat Pump
Exterior Finish
Stone, Vinyl
Fireplace Present
Yes
Flooring Type
Engineered hardwood, Laminate, Tile
Foundation Type
Poured Concrete
# of Half Bathrooms
1
Stories Total
2
Total Finished Area
2537 sqft
Type
House
Utility Water
Municipal water
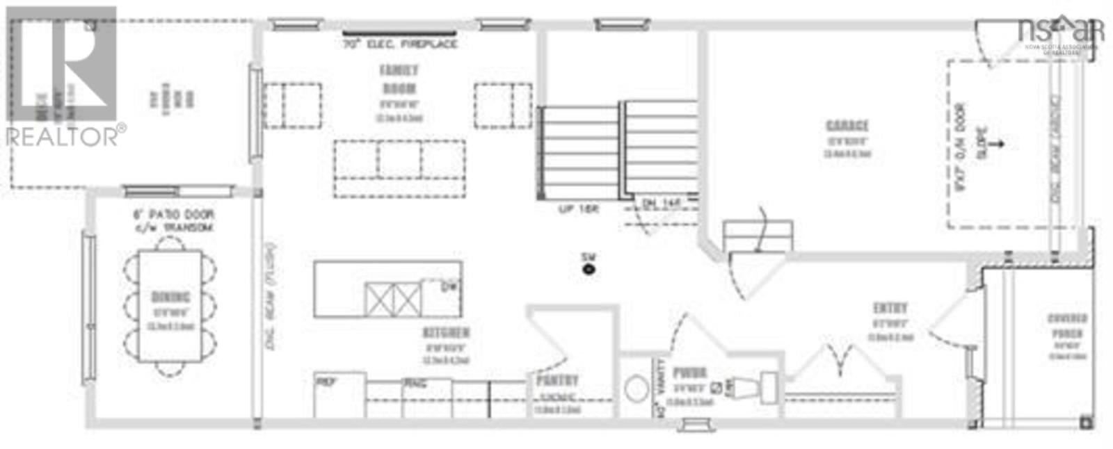
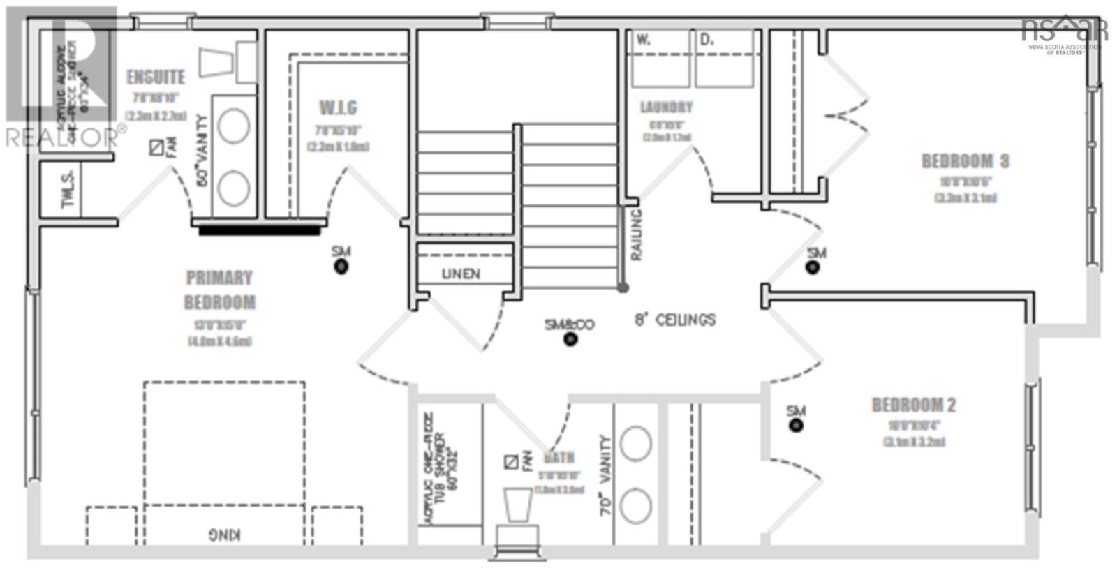
Rooms
Room
Level
Dimensions
Notes
Primary Bedroom
Second level
13x15
Ensuite (# pieces 2-6)
Second level
5 pc
Bedroom
Second level
10.8 x 10.6
Bedroom
Second level
10x10.4
Bath (# pieces 1-6)
Second level
4 pc
Laundry room
Second level
6.8x 5.6
Kitchen
Lower level
8.1x13.9
Recreational, Games room
Lower level
14.4X14.8
Bedroom
Lower level
11.4X11.5
Bath (# pieces 1-6)
Lower level
4 pc
Foyer
Main level
6.2 x 10.2
Bath (# pieces 1-6)
Main level
2 pc
Living room
Main level
9x14
Dining room
Main level
12x8.6
Parking Spaces
Name
Spaces
Garage
Paved Yard
Land
Total Size
0.1046 acres
Amenities
Park, Playground, Shopping
Landscape Features
Landscaped
Sewer
Municipal sewage system
Size of Irregular Land
0.1046
Terms of Use
Please review and agree to the following terms of use to access the listing content:
REALTOR®, REALTORS®, and the REALTOR® logo are certification marks that are owned by REALTOR® Canada Inc. and licensed exclusively to The Canadian Real Estate Association (CREA). These certification marks identify real estate professionals who are members of CREA and who must abide by CREA's By-Laws, Rules, and the REALTOR® Code. The MLS® trademark and the MLS® logo are owned by CREA and identify the quality of services provided by real estate professionals who are members of CREA;
The information contained on this site is based in whole or in part on information that is provided by members of CREA, who are responsible for its accuracy. CREA reproduces and distributes this information as a service for its members and assumes no responsibility for its accuracy;
This website is operated by a brokerage or salesperson who is a member of CREA;
The listing content on this website is protected by copyright and other laws, and is intended solely for the private, non-commercial use by individuals. Any other reproduction, distribution or use of the content, in whole or in part, is specifically forbidden. The prohibited uses include commercial use, "screen scraping", "database scraping", and any other activity intended to collect, store, reorganize or manipulate data on the pages produced by or displayed on this website.
The information contained on this site is based in whole or in part on information that is provided under copyright by the Toronto Regional Real Estate Board (TRREB) or by members of The Canadian Real Estate Association (CREA), who are responsible for its accuracy. TRREB and CREA reproduce and distribute this information as a service for their members and assume no responsibility for its accuracy. All information displayed is believed to be accurate but is not guaranteed and should be independently verified. No warranties or representations of any kind are made with respect to the accuracy of such information. The information provided herein must only be used by consumers that have a bona fide interest in the purchase, sale, or lease of real estate and may not be used for any commercial purpose or any other purpose.