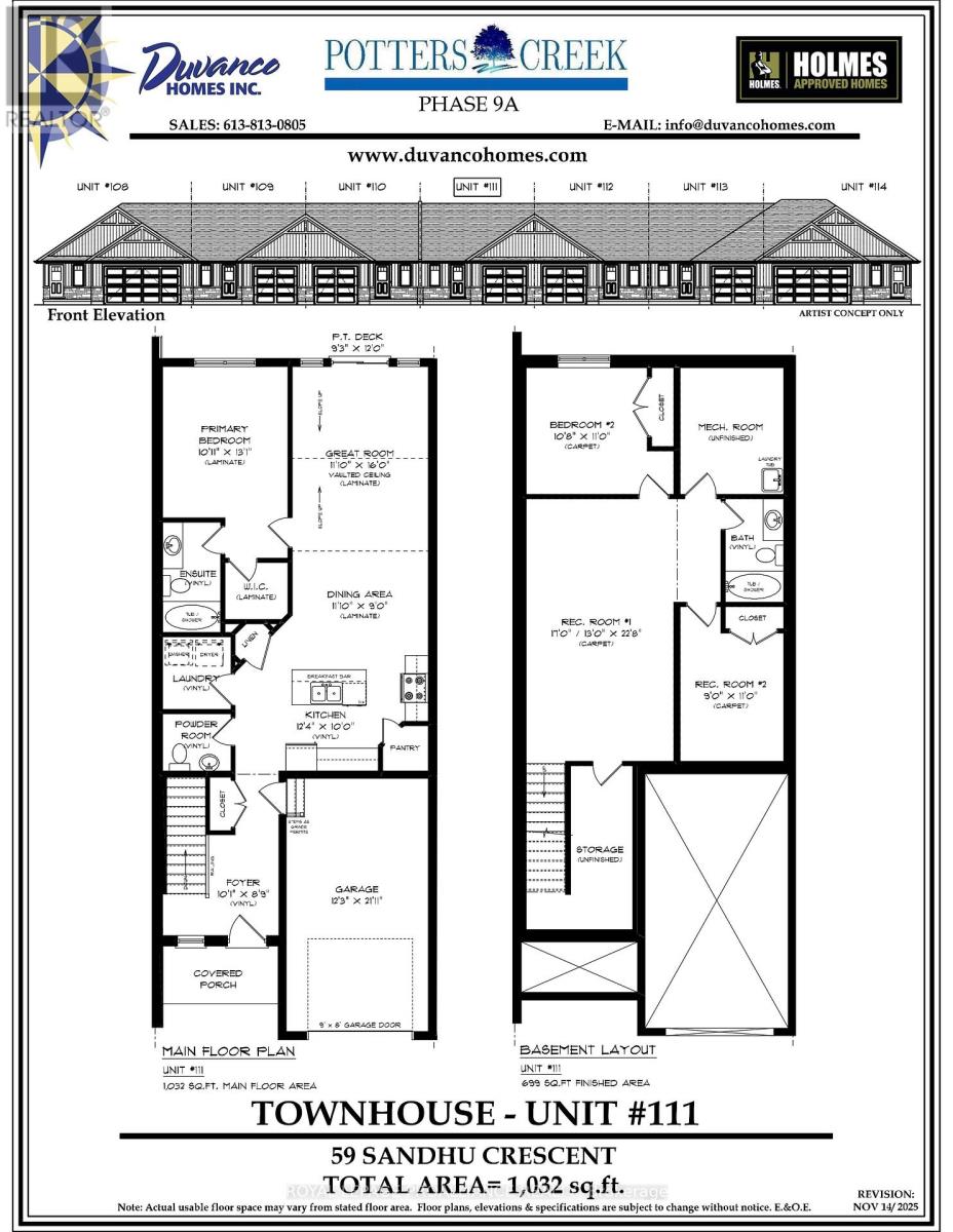
-The list price includes the current HST New Housing Rebate of $24,000. Proposed Federal and Provincial rebate programs when implemented could result in an additional rebate of $34,723 for eligible buyers, lowering the estimated purchase price to $490,177- Welcome home to this Duvanco interior townhome, where quality craftsmanship meets thoughtful design in one of Belleville's most loved neighbourhoods. This 1+1 bedroom home offers the perfect blend of space and simplicity for those seeking a maintenance-reduced lifestyle without sacrificing style. Step inside to discover premium laminate flooring flowing throughout an open-concept living area with dramatic vaulted ceilings that create an airy, expansive atmosphere. The eight-foot main floor ceilings add to the sense of spaciousness. The well-appointed kitchen showcases soft-close cabinetry, crown moulding and features a coveted corner walk-in pantry for exceptional storage. Premium vinyl flooring in the bathrooms and laundry areas combines durability with a modern vibe. Your primary bedroom retreat includes a generous four-piece ensuite and walk in closet, while the finished basement delivers additional living space with a second bedroom, den or office area, roomy recreation room, and full bathroom - all warmly carpeted for comfort. The attached single-car garage comes fully insulated, drywalled, and primed with a paved driveway. Outside, enjoy your private deck overlooking a fully sodded yard. This Holmes Approved home underwent rigorous three-stage inspections during construction, providing peace of mind with certification documentation. Potters Creek features wide asphalt paths, pickleball courts, and green spaces featuring play structures. Nearby attractions include Mary Anne Sills Park, Loyalist College, and the scenic North Potter's Creek Conservation Area. (id:47421)
Interested in obtaining the full price history for this property? Contact us!Contact us! Our real estate professionals would be happy to provide a complete listing history with historical sold prices and dates.
Detailed Information
Bedrooms
1+1
Bathrooms
3
Lot
7.3 x 32 m
Amenities Nearby
Park, Place of Worship
Equipment
Water Heater, Water Heater - Tankless
Features
Sump Pump
Listing Contract Date
2026-01-20
Location Description
Cross Streets: Hastings Park Drive/Sienna Avenue. ** Directions: West on Dundas St, right on Sienna Avenue, right on Hastings Park Drive, right on Sandhu Crescent.
Ownership Type
Freehold
# of Parking Spaces
2
Property Type
Single Family
Rental Equipment
Water Heater, Water Heater - Tankless
Structures
Deck
Transaction Type
For sale
Zoning Description
R2-8
Building
Age
New building
Appliances
Garage door opener remote(s), Water Heater - Tankless, Water Heater
Architectural Style
Bungalow
Basement Development
Finished
Basement Type
N/A (Finished)
Construction Style (Attachment)
Attached
Cooling Type
Central air conditioning, Air exchanger
Exterior Finish
Vinyl siding, Stone
Foundation Type
Poured Concrete
# of Half Bathrooms
1
Heating Fuel
Natural gas
Heating Type
Forced air
Stories Total
1
Type
Row / Townhouse
Utility Water
Municipal water
Rooms
Room
Level
Dimensions
Notes
Recreational, Games room
Basement
3.96 m x 6.91 m
Bedroom
Basement
3.25 m x 3.35 m
Den
Basement
2.74 m x 3.35 m
Foyer
Main level
3.07 m x 2.67 m
Kitchen
Main level
3.76 m x 3.05 m
Dining room
Main level
3.61 m x 2.74 m
Great room
Main level
3.61 m x 4.88 m
Primary Bedroom
Main level
3.33 m x 3.99 m
Parking Spaces
Name
Spaces
Attached Garage
Garage
Utilities
Type
Description
Cable
Available
Electricity
Installed
Sewer
Installed
Land
Total Size
7.3 x 32 M | under 1/2 acre
Amenities
Park, Place of Worship
Landscape Features
Landscaped
Sewer
Sanitary sewer
Size of Irregular Land
7.3 x 32 M
Terms of Use
Please review and agree to the following terms of use to access the listing content:
REALTOR®, REALTORS®, and the REALTOR® logo are certification marks that are owned by REALTOR® Canada Inc. and licensed exclusively to The Canadian Real Estate Association (CREA). These certification marks identify real estate professionals who are members of CREA and who must abide by CREA's By-Laws, Rules, and the REALTOR® Code. The MLS® trademark and the MLS® logo are owned by CREA and identify the quality of services provided by real estate professionals who are members of CREA;
The information contained on this site is based in whole or in part on information that is provided by members of CREA, who are responsible for its accuracy. CREA reproduces and distributes this information as a service for its members and assumes no responsibility for its accuracy;
This website is operated by a brokerage or salesperson who is a member of CREA;
The listing content on this website is protected by copyright and other laws, and is intended solely for the private, non-commercial use by individuals. Any other reproduction, distribution or use of the content, in whole or in part, is specifically forbidden. The prohibited uses include commercial use, "screen scraping", "database scraping", and any other activity intended to collect, store, reorganize or manipulate data on the pages produced by or displayed on this website.
The information contained on this site is based in whole or in part on information that is provided under copyright by the Toronto Regional Real Estate Board (TRREB) or by members of The Canadian Real Estate Association (CREA), who are responsible for its accuracy. TRREB and CREA reproduce and distribute this information as a service for their members and assume no responsibility for its accuracy. All information displayed is believed to be accurate but is not guaranteed and should be independently verified. No warranties or representations of any kind are made with respect to the accuracy of such information. The information provided herein must only be used by consumers that have a bona fide interest in the purchase, sale, or lease of real estate and may not be used for any commercial purpose or any other purpose.