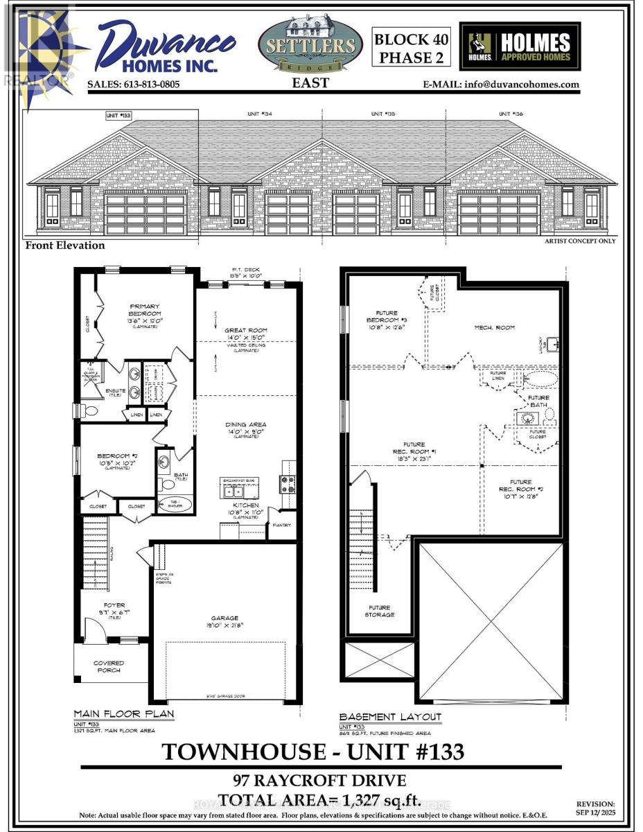
Limited time offer - Buyers to receive proposed 13% HST rebate. Welcome to this sought after Duvanco end unit townhome. This light filled 2 bedroom bungalow features nine-foot ceilings on the main floor with a dramatic vaulted ceiling in the great room and a powder room. Premium laminate flooring flows throughout, with porcelain tile in bathrooms and laundry. The designer kitchen shines with quartz countertops, soft-close cabinetry with crown moulding, under-cabinet lighting, and a corner walk-in pantry. The primary bedroom boasts a spacious ensuite with tiled step-in shower and glass surround along with a walk in closet. The attached double-car garage comes insulated, drywalled, and primed. Outside, enjoy full brick exterior, asphalt driveway, decorative precast walkway, sodded yard, and pressure-treated deck. Bird Park, shopping and the 401 are all just minutes away. Every Duvanco home includes Holmes Approved three-stage inspections with certification. Available July 2026 (id:47421)
Interested in obtaining the full price history for this property? Contact us!Contact us! Our real estate professionals would be happy to provide a complete listing history with historical sold prices and dates.
Detailed Information
Bedrooms
2
Bathrooms
2
Lot
10.8 x 33.7 m
Equipment
Water Heater, Water Heater - Tankless
Features
Sump Pump
Listing Contract Date
2026-01-20
Location Description
Cross Streets: N Front Street/Roy Blvd. ** Directions: North on N Front Street, left on Roy Blvd, turns into Raycroft Drive.
Ownership Type
Freehold
# of Parking Spaces
4
Property Type
Single Family
Rental Equipment
Water Heater, Water Heater - Tankless
Transaction Type
For sale
Zoning Description
R2-1
Building
Age
New building
Appliances
Garage door opener remote(s), Water Heater - Tankless
Architectural Style
Bungalow
Basement Development
Unfinished
Basement Type
Full (Unfinished)
Construction Style (Attachment)
Attached
Cooling Type
Central air conditioning, Air exchanger
Exterior Finish
Brick, Stone
Foundation Type
Poured Concrete
Heating Fuel
Natural gas
Heating Type
Forced air
Stories Total
1
Type
Row / Townhouse
Utility Water
Municipal water
Rooms
Room
Level
Dimensions
Notes
Foyer
Main level
2.92 m x 2.01 m
Great room
Main level
4.27 m x 4.57 m
Kitchen
Main level
3.25 m x 3.35 m
Dining room
Main level
4.27 m x 2.74 m
Primary Bedroom
Main level
4.11 m x 3.66 m
Bedroom
Main level
3.18 m x 3.1 m
Parking Spaces
Name
Spaces
Attached Garage
Garage
Utilities
Type
Description
Cable
Available
Electricity
Installed
Sewer
Installed
Land
Total Size
10.8 x 33.7 M
Sewer
Sanitary sewer
Size of Irregular Land
10.8 x 33.7 M
Terms of Use
Please review and agree to the following terms of use to access the listing content:
REALTOR®, REALTORS®, and the REALTOR® logo are certification marks that are owned by REALTOR® Canada Inc. and licensed exclusively to The Canadian Real Estate Association (CREA). These certification marks identify real estate professionals who are members of CREA and who must abide by CREA's By-Laws, Rules, and the REALTOR® Code. The MLS® trademark and the MLS® logo are owned by CREA and identify the quality of services provided by real estate professionals who are members of CREA;
The information contained on this site is based in whole or in part on information that is provided by members of CREA, who are responsible for its accuracy. CREA reproduces and distributes this information as a service for its members and assumes no responsibility for its accuracy;
This website is operated by a brokerage or salesperson who is a member of CREA;
The listing content on this website is protected by copyright and other laws, and is intended solely for the private, non-commercial use by individuals. Any other reproduction, distribution or use of the content, in whole or in part, is specifically forbidden. The prohibited uses include commercial use, "screen scraping", "database scraping", and any other activity intended to collect, store, reorganize or manipulate data on the pages produced by or displayed on this website.
The information contained on this site is based in whole or in part on information that is provided under copyright by the Toronto Regional Real Estate Board (TRREB) or by members of The Canadian Real Estate Association (CREA), who are responsible for its accuracy. TRREB and CREA reproduce and distribute this information as a service for their members and assume no responsibility for its accuracy. All information displayed is believed to be accurate but is not guaranteed and should be independently verified. No warranties or representations of any kind are made with respect to the accuracy of such information. The information provided herein must only be used by consumers that have a bona fide interest in the purchase, sale, or lease of real estate and may not be used for any commercial purpose or any other purpose.