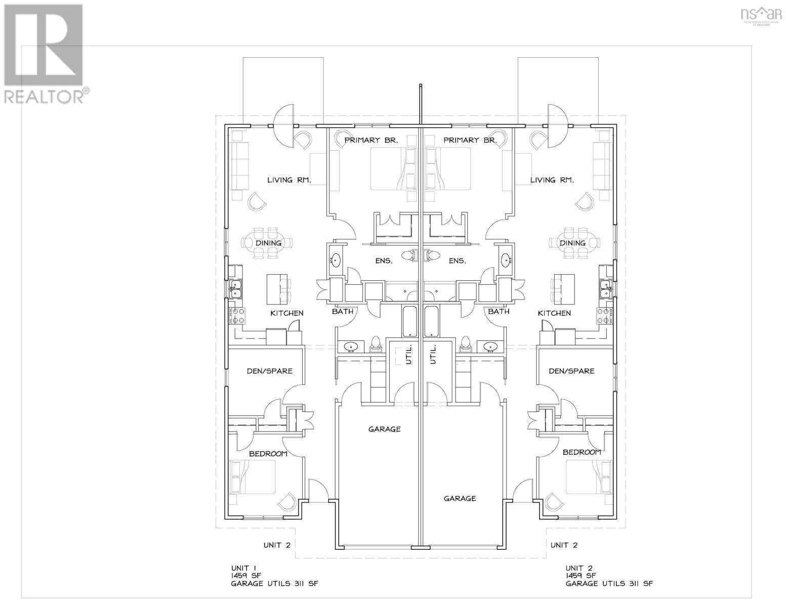
Welcome to this modern 3-bedroom, 2-bath side-by-side semi-detached home in the heart of vibrant Berwick. Designed for efficient, low-maintenance living, this newly constructed one-level home offers a functional layout and contemporary finishes throughout. The open-concept kitchen, living, and dining area is ideal for both everyday living and entertaining. The interior will feature upgraded kitchens and bathrooms, complemented by high-end, energy-efficient Samsung appliances, whisper-quiet bathroom fans, and a large, high-quality heat pump for year-round comfort. The home has been constructed using the ZIP System building envelope, enhancing air sealing, moisture control, and overall energy efficiency. The exterior will be further enhanced with decorative stone accents, adding curb appeal and architectural interest. Additional bedrooms and a full bath provide flexible space for family, guests, or a home office. Step outside to enjoy the deck, with a privacy fence for added comfort. All of this is within walking distance of Berwicks shops, restaurants, community amenities, and popular recreation centre. Estimated completion: April. (id:47421)
Interested in obtaining the full price history for this property? Contact us!Contact us! Our real estate professionals would be happy to provide a complete listing history with historical sold prices and dates.
Detailed Information
Bedrooms
3
Bathrooms
2
Amenities Nearby
Golf Course, Park, Playground, Public Transit, Shopping, Place of Worship
Community Features
Recreational Facilities, School Bus
Listing Contract Date
2026-01-21
Location Description
Main St to Beckwith Dr, left on Gala
Municipal ID
55549745
Ownership Type
Freehold
Property Type
Single Family
Transaction Type
For sale
Building
Appliances
Stove, Dishwasher, Microwave Range Hood Combo, Refrigerator
Basement Type
None
Construction Style (Attachment)
Semi-detached
Cooling Type
Heat Pump
Exterior Finish
Stone, Vinyl
Flooring Type
Laminate
Foundation Type
Concrete Slab
Stories Total
1
Total Finished Area
1459 sqft
Type
House
Utility Water
Drilled Well
Rooms
Room
Level
Dimensions
Notes
Bedroom
Main level
11.9 x 12.10
Bedroom
Main level
10.5 x 11.9
Laundry room
Main level
7.8 x 7.4
Kitchen
Main level
11.5 x 12
Dining room
Main level
11.5 x 9.2
Living room
Main level
15.4 x 13.6
Primary Bedroom
Main level
13.4 x 13.10
Ensuite (# pieces 2-6)
Main level
5.7 x 13.10
Bath (# pieces 1-6)
Main level
7.8 x 3.1 + jog
Parking Spaces
Name
Spaces
Garage
Attached Garage
Paved Yard
Land
Total Size
0.2303 acres
Amenities
Golf Course, Park, Playground, Public Transit, Shopping, Place of Worship
Landscape Features
Landscaped
Sewer
Municipal sewage system
Size of Irregular Land
0.2303
Terms of Use
Please review and agree to the following terms of use to access the listing content:
REALTOR®, REALTORS®, and the REALTOR® logo are certification marks that are owned by REALTOR® Canada Inc. and licensed exclusively to The Canadian Real Estate Association (CREA). These certification marks identify real estate professionals who are members of CREA and who must abide by CREA's By-Laws, Rules, and the REALTOR® Code. The MLS® trademark and the MLS® logo are owned by CREA and identify the quality of services provided by real estate professionals who are members of CREA;
The information contained on this site is based in whole or in part on information that is provided by members of CREA, who are responsible for its accuracy. CREA reproduces and distributes this information as a service for its members and assumes no responsibility for its accuracy;
This website is operated by a brokerage or salesperson who is a member of CREA;
The listing content on this website is protected by copyright and other laws, and is intended solely for the private, non-commercial use by individuals. Any other reproduction, distribution or use of the content, in whole or in part, is specifically forbidden. The prohibited uses include commercial use, "screen scraping", "database scraping", and any other activity intended to collect, store, reorganize or manipulate data on the pages produced by or displayed on this website.
The information contained on this site is based in whole or in part on information that is provided under copyright by the Toronto Regional Real Estate Board (TRREB) or by members of The Canadian Real Estate Association (CREA), who are responsible for its accuracy. TRREB and CREA reproduce and distribute this information as a service for their members and assume no responsibility for its accuracy. All information displayed is believed to be accurate but is not guaranteed and should be independently verified. No warranties or representations of any kind are made with respect to the accuracy of such information. The information provided herein must only be used by consumers that have a bona fide interest in the purchase, sale, or lease of real estate and may not be used for any commercial purpose or any other purpose.