Located in the absolute best position at Big White Ski Resort, this exceptional top-floor, corner residence at Chateau Big White offers a location and view that are unmatched and truly unrivaled. Situated directly above the Plaza unload ramp in the heart of the Village, the condo enjoys spectacular panoramic views of the Monashee Mountains, ski runs, Main Village, and the resort’s iconic fireworks—views that cannot be duplicated anywhere else. Purpose-built for the original owner/developer, this 3,500+ sq ft residence is one of the largest condo units at Big White. Floor-to-ceiling windows flood the home with light and showcase the resort’s most dynamic vantage point. The chef’s kitchen features a Wolf griddle, 48” Ultraline/Viking gas range with double ovens, and a Sub-Zero refrigerator. With four bedrooms and four bathrooms, including an oversized primary suite with a massive ensuite and walk-in closet, the layout comfortably accommodates family and guests. Two wood-burning fireplaces create a warm alpine atmosphere, and this is the only pet-permitted unit in the building. Included is 1,180 sq ft of strata lot in Parkade 1, currently configured as three parking stalls and 665 sq ft of storage, with flexibility for alternative uses. Offering true ski-in/ski-out access and immediate Village amenities, this is a rare opportunity to own the premier condo at Big White. (id:47421)
Interested in obtaining the full price history for this property? Contact us!Contact us! Our real estate professionals would be happy to provide a complete listing history with historical sold prices and dates.
Detailed Information
Bedrooms
4
Bathrooms
4
Amenities Nearby
Ski area
Community Features
Pets Allowed, Pets Allowed With Restrictions
Listing Contract Date
2026-01-21
Maintenance Fee Payment Frequency
Monthly
Maintenance Fee Type
Reserve Fund Contributions, Electricity, Heat, Insurance, Property Management, Other, See Remarks, Recreation Facilities, Sewer, Water
Municipal ID
024-658-677
Ownership Type
Strata
# of Parking Spaces
6
Property Type
Single Family
Storage
Storage, Locker
Transaction Type
For sale
Views
Mountain view, Valley view, View (panoramic)
Building
Amenities
Laundry - Coin Op, Whirlpool
Appliances
Refrigerator, Cooktop, Range - Gas, Humidifier, Hood Fan, Washer/Dryer Stack-Up
Constructed Date
1999
Exterior Finish
Cedar Siding, Stone, Stucco
Fireplace Fuel
Unknown
Fireplace Present
Yes
# of Fireplaces
2
Fireplace Type
Decorative
Flooring Type
Carpeted, Hardwood, Tile
# of Half Bathrooms
1
Heating Fuel
Electric, Other
Heating Type
Baseboard heaters
Stories Total
1
Type
Apartment
Utility Water
Private Utility
Rooms
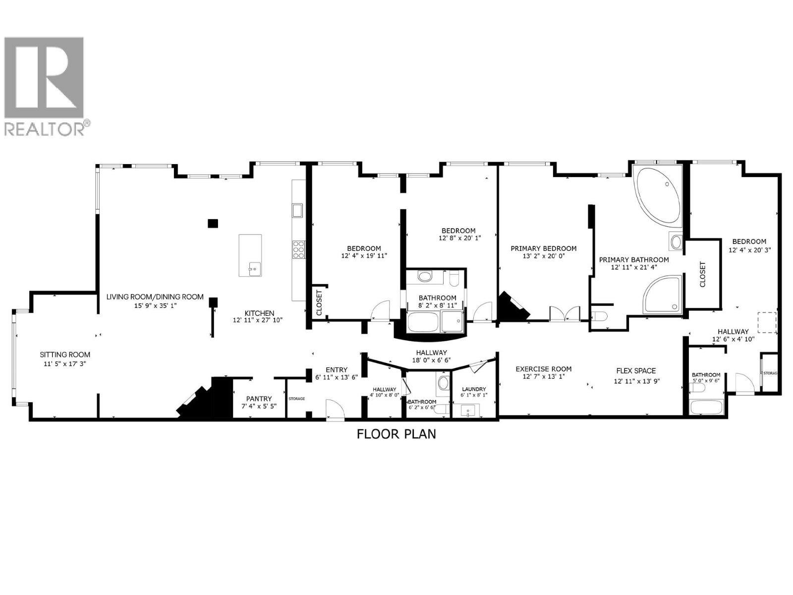
Room
Level
Dimensions
Notes
Workshop
Basement
25'9'' x 26'5''
Bedroom
Main level
12'4'' x 20'3''
Full bathroom
Main level
5'0'' x 9'6''
Family room
Main level
12'11'' x 13'9''
Exercise room
Main level
12'7'' x 13'1''
Full ensuite bathroom
Main level
12'11'' x 21'4''
Primary Bedroom
Main level
13'2'' x 20'0''
Full bathroom
Main level
8'2'' x 8'11''
Bedroom
Main level
12'8'' x 14'1''
Bedroom
Main level
12'4'' x 19'11''
Laundry room
Main level
6'1'' x 8'1''
Partial bathroom
Main level
6'2'' x 6'6''
Kitchen
Main level
12'11'' x 27'10''
Mud room
Main level
4'10'' x 8'0''
Foyer
Main level
6'11'' x 13'6''
Pantry
Main level
7'4'' x 5'5''
Den
Main level
11'5'' x 17'3''
Living room
Main level
15'9'' x 20'0''
Dining room
Main level
15'9'' x 15'1''
Parking Spaces
Name
Spaces
See Remarks
Parkade
Underground
6
Land
Total Size
under 1 acre
Amenities
Ski area
Sewer
Municipal sewage system
Terms of Use
Please review and agree to the following terms of use to access the listing content:
REALTOR®, REALTORS®, and the REALTOR® logo are certification marks that are owned by REALTOR® Canada Inc. and licensed exclusively to The Canadian Real Estate Association (CREA). These certification marks identify real estate professionals who are members of CREA and who must abide by CREA's By-Laws, Rules, and the REALTOR® Code. The MLS® trademark and the MLS® logo are owned by CREA and identify the quality of services provided by real estate professionals who are members of CREA;
The information contained on this site is based in whole or in part on information that is provided by members of CREA, who are responsible for its accuracy. CREA reproduces and distributes this information as a service for its members and assumes no responsibility for its accuracy;
This website is operated by a brokerage or salesperson who is a member of CREA;
The listing content on this website is protected by copyright and other laws, and is intended solely for the private, non-commercial use by individuals. Any other reproduction, distribution or use of the content, in whole or in part, is specifically forbidden. The prohibited uses include commercial use, "screen scraping", "database scraping", and any other activity intended to collect, store, reorganize or manipulate data on the pages produced by or displayed on this website.
The information contained on this site is based in whole or in part on information that is provided under copyright by the Toronto Regional Real Estate Board (TRREB) or by members of The Canadian Real Estate Association (CREA), who are responsible for its accuracy. TRREB and CREA reproduce and distribute this information as a service for their members and assume no responsibility for its accuracy. All information displayed is believed to be accurate but is not guaranteed and should be independently verified. No warranties or representations of any kind are made with respect to the accuracy of such information. The information provided herein must only be used by consumers that have a bona fide interest in the purchase, sale, or lease of real estate and may not be used for any commercial purpose or any other purpose.