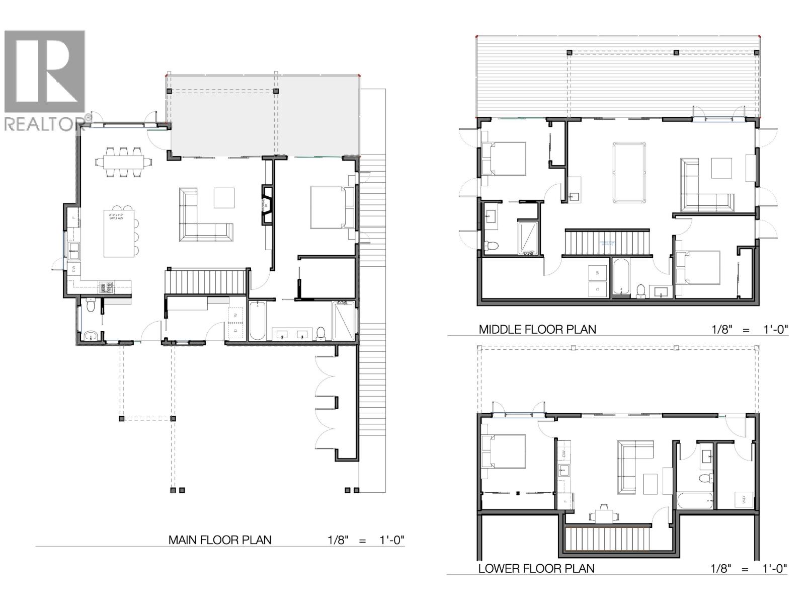
Limited-Time Buyer Incentive: Secure a fixed-price construction contract today, and if your purchase completes in 2025, the seller will cover GST on the land! l This -3,200 sq. ft. building and land package sits on a 0.31-acre lot showcasing sweeping views of Vancouver, Howe Sound, and distant Mount Baker. Perfectly located near the golf course, beaches, and scenic trails, the property balances convenience and natural beauty. The properties are designed to be low maintenance, giving you more time to enjoy your lifestyle, whether you are entertaining on expansive decks or exploring the outdoors. Buyers can select from alternate floor plans tailored to their needs and choose between a carport or garage. Construction capacity is already secured for 2026. (id:47421)
Interested in obtaining the full price history for this property? Contact us!Contact us! Our real estate professionals would be happy to provide a complete listing history with historical sold prices and dates.
Detailed Information
Bedrooms
4
Bathrooms
5
Municipal ID
032-108-842
Ownership Type
Freehold
# of Parking Spaces
2
Property Type
Single Family
Storage
Storage Shed
Transaction Type
For sale
Views
View
Building
Appliances
All
Basement Development
Finished
Basement Features
Unknown
Basement Type
Unknown (Finished)
Constructed Date
2026
Construction Style (Attachment)
Detached
Cooling Type
Air Conditioned
Fireplace Present
Yes
# of Fireplaces
1
Heating Fuel
Electric
Heating Type
Heat Pump
Type
House
Land
Total Size
13512 square feet
Size of Irregular Land
13512
Terms of Use
Please review and agree to the following terms of use to access the listing content:
REALTOR®, REALTORS®, and the REALTOR® logo are certification marks that are owned by REALTOR® Canada Inc. and licensed exclusively to The Canadian Real Estate Association (CREA). These certification marks identify real estate professionals who are members of CREA and who must abide by CREA's By-Laws, Rules, and the REALTOR® Code. The MLS® trademark and the MLS® logo are owned by CREA and identify the quality of services provided by real estate professionals who are members of CREA;
The information contained on this site is based in whole or in part on information that is provided by members of CREA, who are responsible for its accuracy. CREA reproduces and distributes this information as a service for its members and assumes no responsibility for its accuracy;
This website is operated by a brokerage or salesperson who is a member of CREA;
The listing content on this website is protected by copyright and other laws, and is intended solely for the private, non-commercial use by individuals. Any other reproduction, distribution or use of the content, in whole or in part, is specifically forbidden. The prohibited uses include commercial use, "screen scraping", "database scraping", and any other activity intended to collect, store, reorganize or manipulate data on the pages produced by or displayed on this website.
The information contained on this site is based in whole or in part on information that is provided under copyright by the Toronto Regional Real Estate Board (TRREB) or by members of The Canadian Real Estate Association (CREA), who are responsible for its accuracy. TRREB and CREA reproduce and distribute this information as a service for their members and assume no responsibility for its accuracy. All information displayed is believed to be accurate but is not guaranteed and should be independently verified. No warranties or representations of any kind are made with respect to the accuracy of such information. The information provided herein must only be used by consumers that have a bona fide interest in the purchase, sale, or lease of real estate and may not be used for any commercial purpose or any other purpose.