Welcome to 1572 Valleyview Drive in Cache Creek. A spacious and inviting family home with 5 bedrooms plus a den and 2.5 bathrooms set in a quiet and private position overlooking Cache Creek Park where the community comes alive during the annual Graffiti Days festival. The main living area features an open concept layout that connects the kitchen dining and living spaces making it ideal for everyday living and hosting friends and family. Large windows take in the park views while maintaining a sense of separation and privacy from neighbouring properties giving the home a peaceful and tucked away feel. With five generous bedrooms plus a den there is plenty of room for growing families guests or home office needs. The layout offers flexibility and functionality whether you are accommodating kids hobbies or working from home. Outside you will appreciate the private yard setting and the covered boat or RV storage structure perfect for protecting your toys and freeing up driveway space. A great feature for anyone who enjoys lake days road trips or outdoor adventures. Located close to town amenities yet positioned to enjoy green space views and community events this home offers space privacy and a strong connection to the Cache Creek lifestyle. (id:47421)
Interested in obtaining the full price history for this property? Contact us!Contact us! Our real estate professionals would be happy to provide a complete listing history with historical sold prices and dates.
Detailed Information
Bedrooms
6
Bathrooms
3
Amenities Nearby
Park, Recreation
Features
Private setting
Listing Contract Date
2025-12-15
Municipal ID
004-425-855
Ownership Type
Freehold
# of Parking Spaces
6
Property Type
Single Family
Transaction Type
For sale
Building
Architectural Style
Multi-level
Constructed Date
1970
Construction Style (Attachment)
Detached
Construction Style (Split Level)
Other
Cooling Type
Central air conditioning
Fire Protection
Security system
Fireplace Present
Yes
# of Fireplaces
2
Fireplace Type
Insert,Unknown
Flooring Type
Laminate, Vinyl
# of Half Bathrooms
1
Heating Type
Forced air, See remarks
Stories Total
1
Type
House
Utility Water
Municipal water
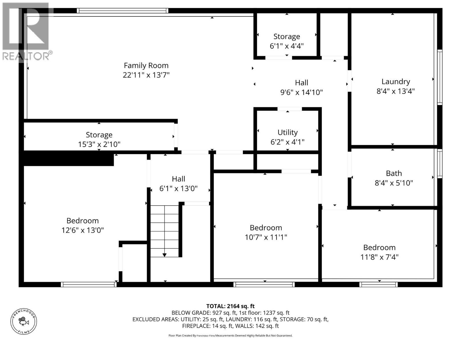
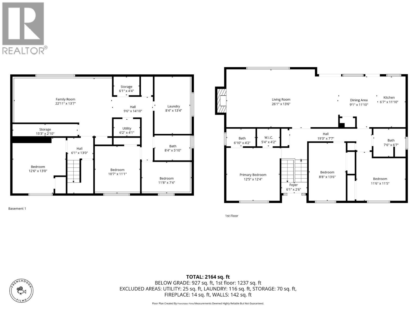
Rooms
Room
Level
Dimensions
Notes
Storage
Basement
15'3'' x 2'10''
Bedroom
Basement
12'6'' x 13'0''
Bedroom
Basement
10'7'' x 11'1''
Bedroom
Basement
11'8'' x 7'4''
Full bathroom
Basement
8'4'' x 5'10''
Utility room
Basement
6'2'' x 4'1''
Laundry room
Basement
8'4'' x 13'4''
Storage
Basement
6'1'' x 4'4''
Family room
Basement
22'11'' x 13'7''
Foyer
Main level
6'1'' x 2'6''
Partial ensuite bathroom
Main level
6'10'' x 4'2''
Primary Bedroom
Main level
12'5'' x 12'4''
Bedroom
Main level
8'8'' x 13'6''
Bedroom
Main level
11'6'' x 11'5''
4pc Bathroom
Main level
7'6'' x 6'7''
Kitchen
Main level
6'7'' x 11'10''
Dining room
Main level
9'1'' x 11'10''
Living room
Main level
26'1'' x 13'6''
Parking Spaces
Name
Spaces
See Remarks
Additional Parking
Attached Garage
1
Street
Oversize
RV
1
Land
Total Size
0.19 acres
Amenities
Park, Recreation
Sewer
Municipal sewage system
Size of Irregular Land
0.19
Terms of Use
Please review and agree to the following terms of use to access the listing content:
REALTOR®, REALTORS®, and the REALTOR® logo are certification marks that are owned by REALTOR® Canada Inc. and licensed exclusively to The Canadian Real Estate Association (CREA). These certification marks identify real estate professionals who are members of CREA and who must abide by CREA's By-Laws, Rules, and the REALTOR® Code. The MLS® trademark and the MLS® logo are owned by CREA and identify the quality of services provided by real estate professionals who are members of CREA;
The information contained on this site is based in whole or in part on information that is provided by members of CREA, who are responsible for its accuracy. CREA reproduces and distributes this information as a service for its members and assumes no responsibility for its accuracy;
This website is operated by a brokerage or salesperson who is a member of CREA;
The listing content on this website is protected by copyright and other laws, and is intended solely for the private, non-commercial use by individuals. Any other reproduction, distribution or use of the content, in whole or in part, is specifically forbidden. The prohibited uses include commercial use, "screen scraping", "database scraping", and any other activity intended to collect, store, reorganize or manipulate data on the pages produced by or displayed on this website.
The information contained on this site is based in whole or in part on information that is provided under copyright by the Toronto Regional Real Estate Board (TRREB) or by members of The Canadian Real Estate Association (CREA), who are responsible for its accuracy. TRREB and CREA reproduce and distribute this information as a service for their members and assume no responsibility for its accuracy. All information displayed is believed to be accurate but is not guaranteed and should be independently verified. No warranties or representations of any kind are made with respect to the accuracy of such information. The information provided herein must only be used by consumers that have a bona fide interest in the purchase, sale, or lease of real estate and may not be used for any commercial purpose or any other purpose.