Offered for the first time since 1988, this exceptional chalet-style home is a rare opportunity to own a truly unique property on nearly 3 acres of forested land. Tucked away yet ideally located on Hwy 9 just west of Airport Road, it offers outstanding access to the GTA and Pearson Airport while feeling completely removed from it all. Surrounded by mature trees, the home evokes the charm of a European mountain retreat, featuring soaring vaulted ceilings, expansive windows, and warm architectural details that invite the outdoors in. The thoughtfully designed layout includes 4 bedrooms and 2 bathrooms, with two lower-level bedrooms offering their own attached living areas-ideal for extended family, in-laws, or flexible living arrangements. Meticulously maintained, the home presents an incredible blank canvas for future updates while offering solid long-term value. Key features include a metal roof, many newer windows (2022), natural gas heating, central air conditioning, a two-car garage, and a circular driveway with parking for at least eight vehicles. Private, peaceful, and unlike anything else on the market, this hidden retreat must be experienced to be fully appreciated. (id:47421)
Interested in obtaining the full price history for this property? Contact us!Contact us! Our real estate professionals would be happy to provide a complete listing history with historical sold prices and dates.
Detailed Information
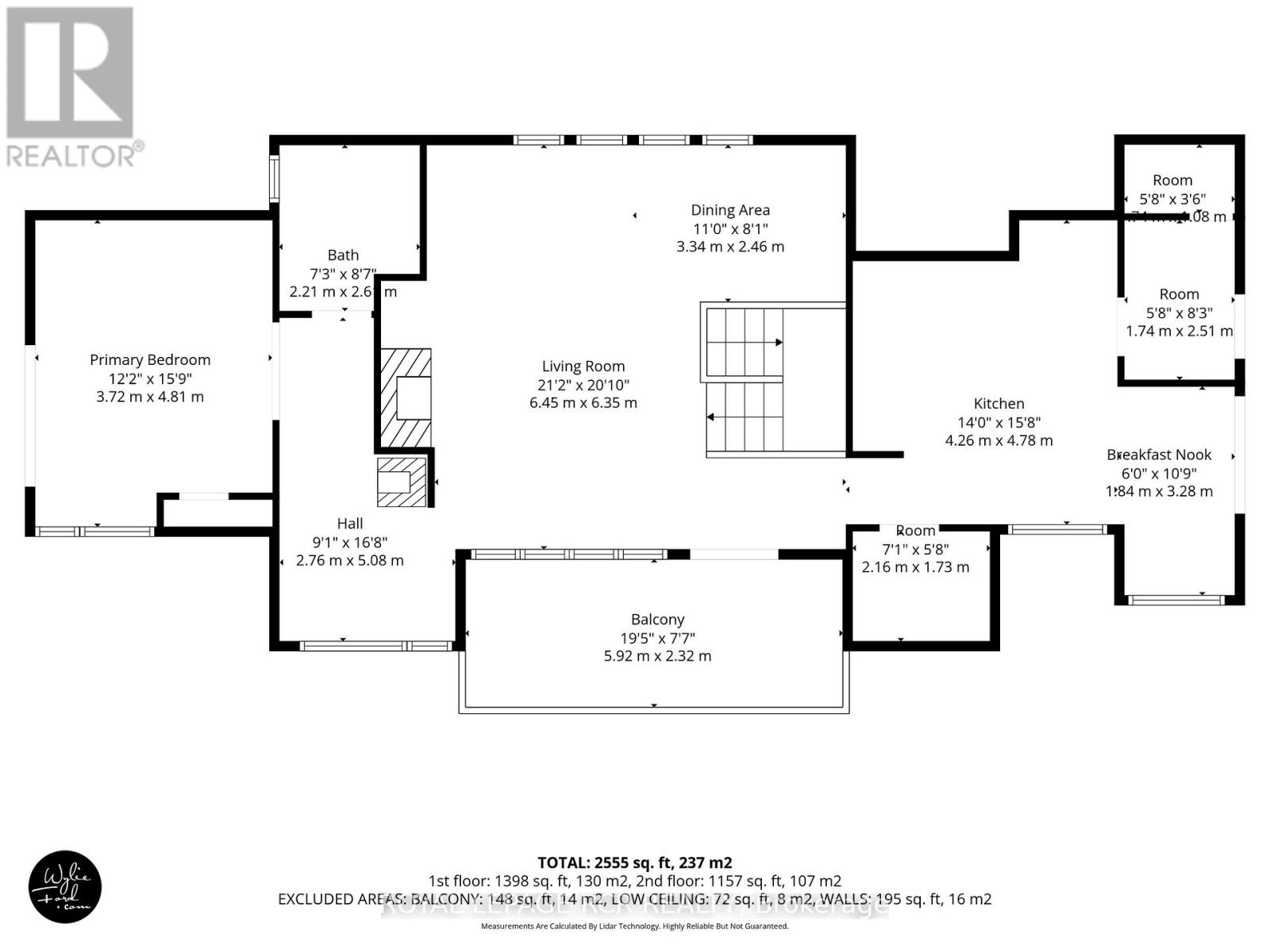
Bedrooms
4
Bathrooms
2
Lot
674.5 x 473.08 ft
Features
Wooded area, Irregular lot size, Country residential
Listing Contract Date
2025-12-31
Location Description
Cross Streets: HWY 9 & Airport Road. ** Directions: Airport Rd, West on HWY 9.
# of Parking Spaces
10
Property Type
Single Family
Transaction Type
For sale
Building
Amenities
Fireplace(s)
Appliances
Water Heater, Dishwasher, Dryer, Stove, Washer, Refrigerator
Basement Type
None
Cooling Type
Central air conditioning
Exterior Finish
Brick
Fireplace Present
Yes
# of Fireplaces
2
Fireplace Type
Woodstove
Foundation Type
Block
Heating Fuel
Natural gas
Heating Type
Forced air
Stories Total
2
Type
House
Rooms
Room
Level
Dimensions
Notes
Eating area
Second level
1.84 m x 3.28 m
Pantry
Second level
2.16 m x 1.73 m
Utility room
Second level
1.74 m x 2.51 m
Primary Bedroom
Second level
3.72 m x 4.81 m
Family room
Second level
6.45 m x 6.35 m
Dining room
Second level
3.34 m x 2.46 m
Kitchen
Second level
4.26 m x 4.78 m
Bedroom 2
Ground level
3.71 m x 3.07 m
Bedroom 3
Ground level
4 m x 3.07 m
Foyer
Ground level
3.93 m x 5.9 m
Laundry room
Ground level
3.37 m x 0.91 m
Bedroom 4
Ground level
4.66 m x 2.7 m
Living room
Ground level
3.61 m x 5.42 m
Living room
Ground level
2.5 m x 4.25 m
Office
Ground level
2.41 m x 2.73 m
Parking Spaces
Name
Spaces
Garage
Utilities
Type
Description
Cable
Available
Electricity
Installed
Land
Total Size
674.5 x 473.1 FT | 2 - 4.99 acres
Acreage
Yes
Sewer
Septic System
Size of Irregular Land
674.5 x 473.1 FT
Terms of Use
Please review and agree to the following terms of use to access the listing content:
REALTOR®, REALTORS®, and the REALTOR® logo are certification marks that are owned by REALTOR® Canada Inc. and licensed exclusively to The Canadian Real Estate Association (CREA). These certification marks identify real estate professionals who are members of CREA and who must abide by CREA's By-Laws, Rules, and the REALTOR® Code. The MLS® trademark and the MLS® logo are owned by CREA and identify the quality of services provided by real estate professionals who are members of CREA;
The information contained on this site is based in whole or in part on information that is provided by members of CREA, who are responsible for its accuracy. CREA reproduces and distributes this information as a service for its members and assumes no responsibility for its accuracy;
This website is operated by a brokerage or salesperson who is a member of CREA;
The listing content on this website is protected by copyright and other laws, and is intended solely for the private, non-commercial use by individuals. Any other reproduction, distribution or use of the content, in whole or in part, is specifically forbidden. The prohibited uses include commercial use, "screen scraping", "database scraping", and any other activity intended to collect, store, reorganize or manipulate data on the pages produced by or displayed on this website.
The information contained on this site is based in whole or in part on information that is provided under copyright by the Toronto Regional Real Estate Board (TRREB) or by members of The Canadian Real Estate Association (CREA), who are responsible for its accuracy. TRREB and CREA reproduce and distribute this information as a service for their members and assume no responsibility for its accuracy. All information displayed is believed to be accurate but is not guaranteed and should be independently verified. No warranties or representations of any kind are made with respect to the accuracy of such information. The information provided herein must only be used by consumers that have a bona fide interest in the purchase, sale, or lease of real estate and may not be used for any commercial purpose or any other purpose.