Welcome to a truly exceptional opportunity in the desirable community of Cougar Ridge. This well-located complex, situated near Old Banff Coach Road, features this unique end unit within a highly sought-after 4-plex building. This townhome offers an expansive 2,365+ square feet of meticulously maintained living space, complete with 3 bedrooms and 3.5 bathrooms. The main level showcases elegant hardwood flooring throughout the living and dining areas. The kitchen and all baths have been upgraded with stylish granite countertops. The home boasts brand new, high-end Samsung and LG appliances (refrigerator, microwave, electric stove, and dishwasher). The upper floor features two spacious bedrooms with freshly replaced carpeting, plus a versatile hardwood-floored loft area. The basement is fully and professionally developed, adding significant value and living space with a large family room, a third bedroom, and a 4-piece bathroom. Ample storage space is also available. Enjoy the convenience of an attached single-car garage and an additional dedicated parking stall right in front of the unit. Its excellent location provides easy access to downtown and public transit, making it ideal for the commuter. (id:47421)
Interested in obtaining the full price history for this property? Contact us!Contact us! Our real estate professionals would be happy to provide a complete listing history with historical sold prices and dates.
Detailed Information
Bedrooms
2+1
Bathrooms
4
Amenities Nearby
Park, Playground, Schools, Shopping
Community Features
Pets Allowed, Pets Allowed With Restrictions
Features
Cul-de-sac, No neighbours behind, No Animal Home, No Smoking Home, Parking
Listing Contract Date
2026-01-07
Maintenance Fee Payment Frequency
Monthly
Maintenance Fee Type
Condominium Amenities, Common Area Maintenance, Parking, Property Management, Reserve Fund Contributions, Waste Removal
Management Company
Charter Property Management
Municipal ID
0035682228
Ownership Type
Condominium/Strata
# of Parking Spaces
2
Plan
1311363
Property Type
Single Family
Transaction Type
For sale
Zoning Description
DC
Building
Appliances
Water purifier, Dishwasher, Stove, Dryer, Garburator, Microwave Range Hood Combo, Window Coverings, Garage door opener, Washer/Dryer Stack-Up
Basement Development
Finished
Basement Type
Full (Finished)
Constructed Date
2013
Construction Style (Attachment)
Attached
Cooling Type
Central air conditioning
Exterior Finish
Composite Siding, Stone, Vinyl siding
Fireplace Present
Yes
# of Fireplaces
1
Flooring Type
Carpeted, Ceramic Tile, Hardwood
Foundation Type
Poured Concrete
# of Half Bathrooms
1
Heating Fuel
Natural gas
Heating Type
Forced air
Stories Total
2
Total Finished Area
1845.1 sqft
Type
Row / Townhouse
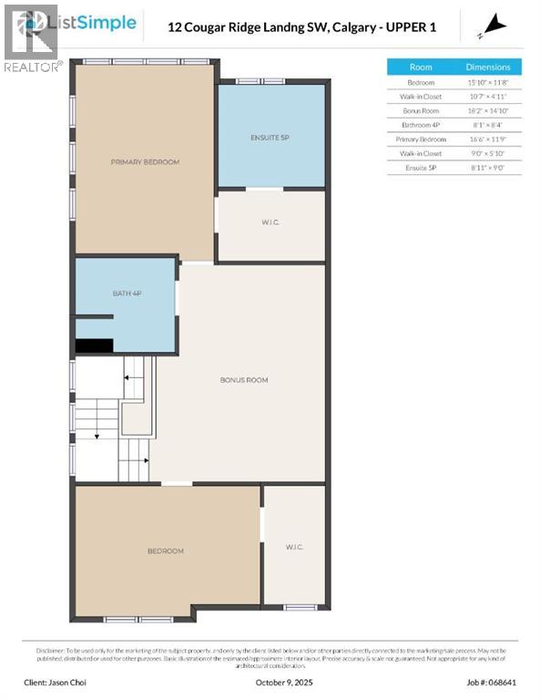
Rooms
Room
Level
Dimensions
Notes
Bedroom
Second level
18.17 Ft x 14.83 Ft
Bonus Room
Second level
18.17 Ft x 14.83 Ft
4pc Bathroom
Second level
8.08 Ft x 8.33 Ft
Primary Bedroom
Second level
16.50 Ft x 11.75 Ft
Other
Second level
9.00 Ft x 5.83 Ft
5pc Bathroom
Second level
8.92 Ft x 9.00 Ft
Recreational, Games room
Basement
16.58 Ft x 13.50 Ft
4pc Bathroom
Basement
7.92 Ft x 5.00 Ft
Bedroom
Basement
11.50 Ft x 10.00 Ft
Other
Basement
7.92 Ft x 5.58 Ft
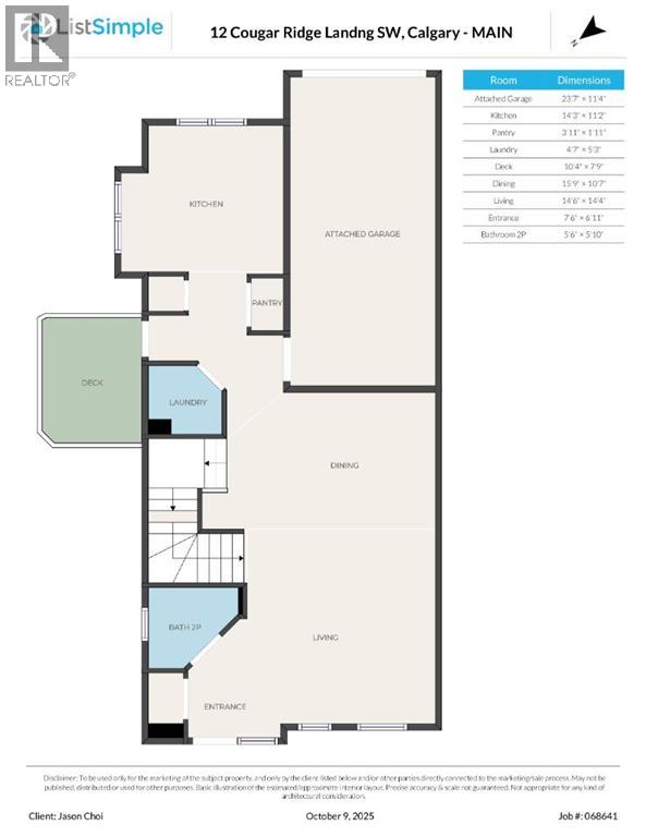
Kitchen
Main level
14.25 Ft x 11.17 Ft
Dining room
Main level
15.75 Ft x 10.58 Ft
Living room
Main level
14.50 Ft x 14.33 Ft
Laundry room
Main level
4.58 Ft x 5.25 Ft
2pc Bathroom
Main level
5.50 Ft x 5.83 Ft
Other
Main level
7.50 Ft x 6.92 Ft
Parking Spaces
Name
Spaces
Oversize
Attached Garage
1
Land
Total Size
Unknown
Amenities
Park, Playground, Schools, Shopping
Fence Type
Not fenced
Landscape Features
Landscaped, Lawn
Terms of Use
Please review and agree to the following terms of use to access the listing content:
REALTOR®, REALTORS®, and the REALTOR® logo are certification marks that are owned by REALTOR® Canada Inc. and licensed exclusively to The Canadian Real Estate Association (CREA). These certification marks identify real estate professionals who are members of CREA and who must abide by CREA's By-Laws, Rules, and the REALTOR® Code. The MLS® trademark and the MLS® logo are owned by CREA and identify the quality of services provided by real estate professionals who are members of CREA;
The information contained on this site is based in whole or in part on information that is provided by members of CREA, who are responsible for its accuracy. CREA reproduces and distributes this information as a service for its members and assumes no responsibility for its accuracy;
This website is operated by a brokerage or salesperson who is a member of CREA;
The listing content on this website is protected by copyright and other laws, and is intended solely for the private, non-commercial use by individuals. Any other reproduction, distribution or use of the content, in whole or in part, is specifically forbidden. The prohibited uses include commercial use, "screen scraping", "database scraping", and any other activity intended to collect, store, reorganize or manipulate data on the pages produced by or displayed on this website.
The information contained on this site is based in whole or in part on information that is provided under copyright by the Toronto Regional Real Estate Board (TRREB) or by members of The Canadian Real Estate Association (CREA), who are responsible for its accuracy. TRREB and CREA reproduce and distribute this information as a service for their members and assume no responsibility for its accuracy. All information displayed is believed to be accurate but is not guaranteed and should be independently verified. No warranties or representations of any kind are made with respect to the accuracy of such information. The information provided herein must only be used by consumers that have a bona fide interest in the purchase, sale, or lease of real estate and may not be used for any commercial purpose or any other purpose.