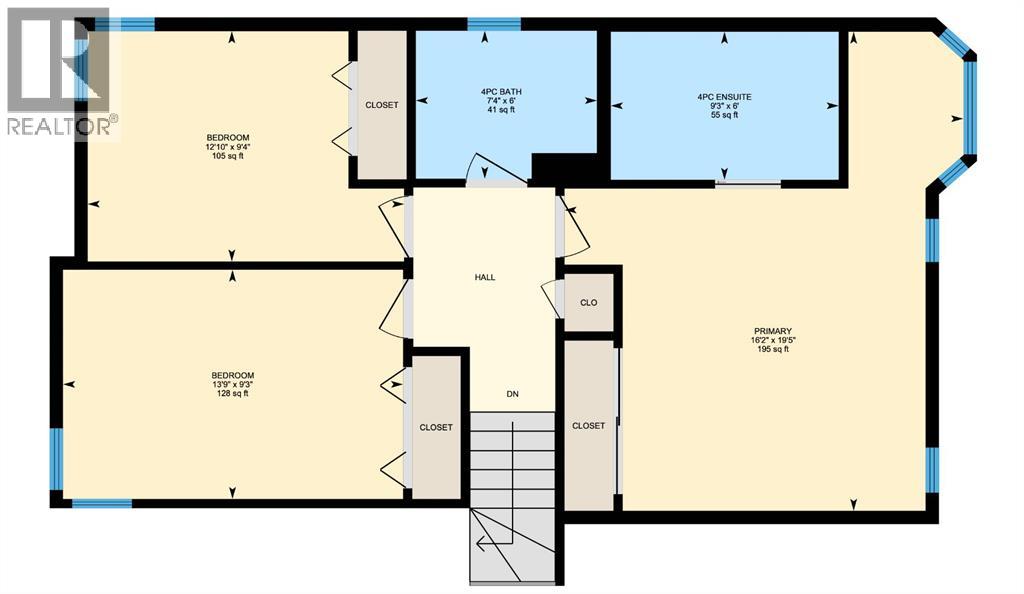
Welcome to this beautifully maintained two-storey home in the heart of Woodbine, offering over 3,000 sq. ft. of versatile living space and an unbeatable setting for families and nature lovers alike. Enjoy the peace of mind that comes with no sidewalk to shovel, along with the confidence of knowing major updates have already been completed. All Poly-B plumbing was fully replaced in 2025, complemented by a new dryer (2025), new range (2024), refrigerator (2022), and dishwasher (2021). Additional upgrades include new windows (2018), a new roof (2019), and a new fence (2020)—making this a truly move-in-ready property.Step inside to a bright and welcoming main living space featuring a vaulted ceiling living room filled with abundant natural light, enhancing both openness and elegance. The kitchen is well-appointed with granite countertops, stainless steel appliances, and ample cabinetry—perfect for everyday living and entertaining.The main floor offers a flexible office or bedroom, ideal for working from home, guests, or multi-generational living. The guest bathroom at the main floor is generously sized and offers the potential to be converted into a full bath, adding even more functionality and long-term value.Upstairs, you’ll find three generously sized bedrooms, including a spacious primary retreat with an upgraded spa-like ensuite featuring a large walk-in glass rain shower. Heated flooring in the upstairs bathrooms adds an extra touch of comfort and luxury. The fully finished basement provides additional versatile living space, perfect for a recreation room, home gym, office, or entertainment area. Step outside to the deck, equipped with a BBQ gas line, ideal for outdoor enjoyment. Central air conditioning ensures year-round comfort throughout the home.The location is truly exceptional. Just steps from excellent schools, playgrounds, and within walking distance to Fish Creek Park, this home offers endless opportunities for outdoor recreation. With easy access to shopping, restaurants, transit, tennis courts, Glenmore Reservoir, and Southland Leisure Centre, plus quick access to Stoney Trail and Costco, everyday living and commuting are effortless. A perfect blend of comfort, upgrades, and location—this is a home where families love to settle and stay. Please check out the 3D tour and call for a private viewing before it’s gone. (id:47421)
Interested in obtaining the full price history for this property? Contact us!Contact us! Our real estate professionals would be happy to provide a complete listing history with historical sold prices and dates.
Detailed Information
Bedrooms
4
Bathrooms
4
Lot
14.63 x 0 m
Amenities Nearby
Park, Playground, Recreation Nearby, Schools, Shopping
Features
PVC window, No Animal Home, No Smoking Home, Gas BBQ Hookup
Listing Contract Date
2026-01-27
Municipal ID
0010974319
Ownership Type
Freehold
# of Parking Spaces
4
Plan
8810900
Property Type
Single Family
Structures
Deck
Transaction Type
For sale
Zoning Description
R-CG
Building
Appliances
Washer, Refrigerator, Dishwasher, Stove, Dryer, Garburator, Garage door opener
Basement Development
Finished
Basement Type
Full (Finished)
Constructed Date
1988
Construction Style (Attachment)
Detached
Cooling Type
Central air conditioning
Exterior Finish
Stucco
Fireplace Present
Yes
# of Fireplaces
2
Flooring Type
Carpeted, Ceramic Tile, Hardwood
Foundation Type
Poured Concrete
# of Half Bathrooms
1
Heating Type
Central heating, Other
Stories Total
2
Total Finished Area
1997 sqft
Type
House
Rooms
Room
Level
Dimensions
Notes
4pc Bathroom
Second level
1.83 M x 2.24 M
4pc Bathroom
Second level
1.83 M x 2.81 M
Bedroom
Second level
2.83 M x 4.20 M
Bedroom
Second level
2.85 M x 3.91 M
Primary Bedroom
Second level
5.92 M x 4.92 M
4pc Bathroom
Basement
2.36 M x 3.18 M
Den
Basement
4.43 M x 3.92 M
Laundry room
Basement
.76 M x 2.20 M
Recreational, Games room
Basement
10.36 M x 6.95 M
Furnace
Basement
2.29 M x 3.04 M
2pc Bathroom
Main level
1.52 M x 1.56 M
Breakfast
Main level
2.66 M x 5.02 M
Dining room
Main level
4.27 M x 4.18 M
Family room
Main level
5.30 M x 4.10 M
Kitchen
Main level
2.66 M x 4.10 M
Laundry room
Main level
1.59 M x 1.60 M
Living room
Main level
3.39 M x 4.34 M
Bedroom
Main level
3.23 M x 2.58 M
Parking Spaces
Name
Spaces
Attached Garage
2
Land
Total Size
491 square meters
Amenities
Park, Playground, Recreation Nearby, Schools, Shopping
Fence Type
Fence
Landscape Features
Landscaped
Size of Irregular Land
491.00
Terms of Use
Please review and agree to the following terms of use to access the listing content:
REALTOR®, REALTORS®, and the REALTOR® logo are certification marks that are owned by REALTOR® Canada Inc. and licensed exclusively to The Canadian Real Estate Association (CREA). These certification marks identify real estate professionals who are members of CREA and who must abide by CREA's By-Laws, Rules, and the REALTOR® Code. The MLS® trademark and the MLS® logo are owned by CREA and identify the quality of services provided by real estate professionals who are members of CREA;
The information contained on this site is based in whole or in part on information that is provided by members of CREA, who are responsible for its accuracy. CREA reproduces and distributes this information as a service for its members and assumes no responsibility for its accuracy;
This website is operated by a brokerage or salesperson who is a member of CREA;
The listing content on this website is protected by copyright and other laws, and is intended solely for the private, non-commercial use by individuals. Any other reproduction, distribution or use of the content, in whole or in part, is specifically forbidden. The prohibited uses include commercial use, "screen scraping", "database scraping", and any other activity intended to collect, store, reorganize or manipulate data on the pages produced by or displayed on this website.
The information contained on this site is based in whole or in part on information that is provided under copyright by the Toronto Regional Real Estate Board (TRREB) or by members of The Canadian Real Estate Association (CREA), who are responsible for its accuracy. TRREB and CREA reproduce and distribute this information as a service for their members and assume no responsibility for its accuracy. All information displayed is believed to be accurate but is not guaranteed and should be independently verified. No warranties or representations of any kind are made with respect to the accuracy of such information. The information provided herein must only be used by consumers that have a bona fide interest in the purchase, sale, or lease of real estate and may not be used for any commercial purpose or any other purpose.