$734,900
FOR SALE

Detached

Bedrooms: 4Bathrooms: 3Lot: 8.96 x 35.1 m

164 Wolf River Drive Se
Calgary, AB T2X 4M4

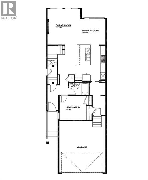
* OPEN HOUSE - SATURDAY AND SUNDAY 2:00 pm to 4:00 PM * JAYMAN CERTIFIED KARMA 24 FLOOR PLAN ** Boasting 2279+ square feet of gorgeous upgraded Fit and Finish design and décor that will appeal to the most discerning buyer. Immediately upon entering, you are invited into an open floor plan that exudes beauty. Seamlessly transitioning to the 4TH BEDROOM and FULL BATH, could easily be your Den/Home Office. The main floor plan opens up to showcase a stunning, oversized, Elegant White Quartz island framed by the same stunning quartz countertops around the perimeter. Boasting stunning Glacier White cabinets, stylish chrome hardware, soft-close drawers, and a beautiful full tile backsplash, the kitchen will check off all your boxes. Sleek stainless steel KitchenAid appliance package includes a 36" gas cooktop, built-in wall oven with convection microwave, French door refrigerator with water dispenser and ice maker, dishwasher with stainless steel interior and Broan power pack built-in hood fan with designer shroud. Complimenting the main floor, you will discover Divine Maestro Forte laminate flooring throughout, with 12x24 Divine Luxury Vinyl tile in the Main Bath, en suite, and laundry. To complete this outstanding main-floor area design, you will also find a cozy electric fireplace and a sliding glass patio door that will lead you out to your future backyard. The upper level features a centralized Bonus Room with a tray ceiling, along with three more sizeable bedrooms, with the primary suite offering a 5-piece 'spa-like' en suite. Dual vanities, oversized soaker tub, stand-alone shower, and a spacious walk-through closet to the 2nd-floor laundry for ease of access. Excellent design for the busy family. James Hardie board on the front exterior, along with the elevated contemporary prairie elevation and EXTRA Fit & FINISH. Enjoy the DOUBLE FRONT ATTACHED GARAGE and CONVENIENT SIDE ENTRANCE. Wolf Willow is a highly sought-after community located in the Bow River Valley adja cent to the Blue Devil Golf Course. Breath-taking and inspiring with plans to include parks, schools and additional amenities, Wolf Willow offers 9km of pathways alone. Not to mention the abundance of trails surrounding the neighbourhood. A quiet retreat allowing you to enjoy nature's best while being close to the big city amenities and quick access to McLeod Trail and 22X. Welcome Home! (id:47421)
Share
Listed By Jayman Realty Inc.
Data Provided By Calgary Real Estate Board
MLS® Listing Number A2273998
Last Updated May 24, 2026
Property Summary
Property Type Detached

More like this:
Community Wolf Willow
Price History

Interested in obtaining the full price history for this property?
Contact us!Contact us! Our real estate professionals would be happy to provide a complete listing history with historical sold prices and dates.

Detailed Information
Bedrooms 4
Bathrooms 3
Lot 8.96 x 35.1 m
Features Other, PVC window
Listing Contract Date 2025-12-04
Municipal ID 0039626528
Ownership Type Freehold
# of Parking Spaces 4
Plan 2311754
Property Type Single Family
Structures None
Transaction Type For sale
Zoning Description R-G
Building
Appliances Refrigerator, Cooktop - Gas, Dishwasher, Oven, Microwave, Hood Fan, Window Coverings, Water Heater - Tankless
Basement Development Unfinished
Basement Features Separate entrance
Basement Type Full (Unfinished)
Constructed Date 2023
Construction Material Wood frame
Construction Style (Attachment) Detached
Cooling Type None
Exterior Finish Brick, Composite Siding, Vinyl siding
Fireplace Present Yes
# of Fireplaces 1
Flooring Type Carpeted, Vinyl Plank
Foundation Type Poured Concrete
Heating Fuel Natural gas
Heating Type Forced air
Stories Total 2
Total Finished Area 2279.56 sqft
Type House
Rooms
Room Level Dimensions Notes
Living roomMain level14.00 Ft x 12.92 Ft
KitchenMain level13.67 Ft x 13.50 Ft
Dining roomMain level10.00 Ft x 9.92 Ft
PantryMain level.00 Ft x .00 Ft
FoyerMain level10.58 Ft x 4.50 Ft
BedroomMain level10.25 Ft x 9.42 Ft
4pc BathroomMain level6.83 Ft x 5.25 Ft
OtherMain level8.00 Ft x 5.50 Ft
4pc BathroomMain level9.33 Ft x 7.33 Ft
Bonus RoomUpper Level11.50 Ft x 12.08 Ft
Primary BedroomUpper Level14.17 Ft x 12.33 Ft
5pc BathroomUpper Level13.67 Ft x 10.00 Ft
BedroomUpper Level10.67 Ft x 9.00 Ft
BedroomUpper Level10.50 Ft x 9.00 Ft
Laundry roomUpper Level6.75 Ft x 6.50 Ft
OtherUpper Level11.33 Ft x 5.83 Ft
Parking Spaces
Name Spaces
Attached Garage2
Land
Total Size 315 square meters
Fence Type Not fenced
Size of Irregular Land 315.00
Open Houses
Date & Time Comments
24/05/2026 2:00 PM - 4:00 PM

The information contained on this site is based in whole or in part on information that is provided under copyright by the Toronto Regional Real Estate Board (TRREB) or by members of The Canadian Real Estate Association (CREA), who are responsible for its accuracy. TRREB and CREA reproduce and distribute this information as a service for their members and assume no responsibility for its accuracy. All information displayed is believed to be accurate but is not guaranteed and should be independently verified. No warranties or representations of any kind are made with respect to the accuracy of such information.
The information provided herein must only be used by consumers that have a bona fide interest in the purchase, sale, or lease of real estate and may not be used for any commercial purpose or any other purpose.

FREE ESTIMATES ARE COMING

Reserve Your Spot To Be Notified
or

Coming soon to select cities
in North America

(We'll never share your details)