$839,000
FOR SALE

Detached

Bedrooms: 5Bathrooms: 4Lot: 10.37 x 32.13 m

167 Corner Glen Crescent Ne
Calgary, AB T3N 2L8

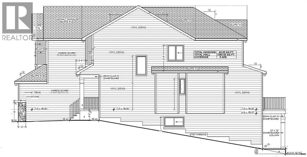
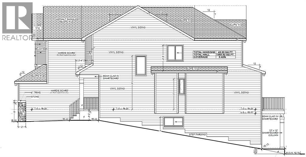
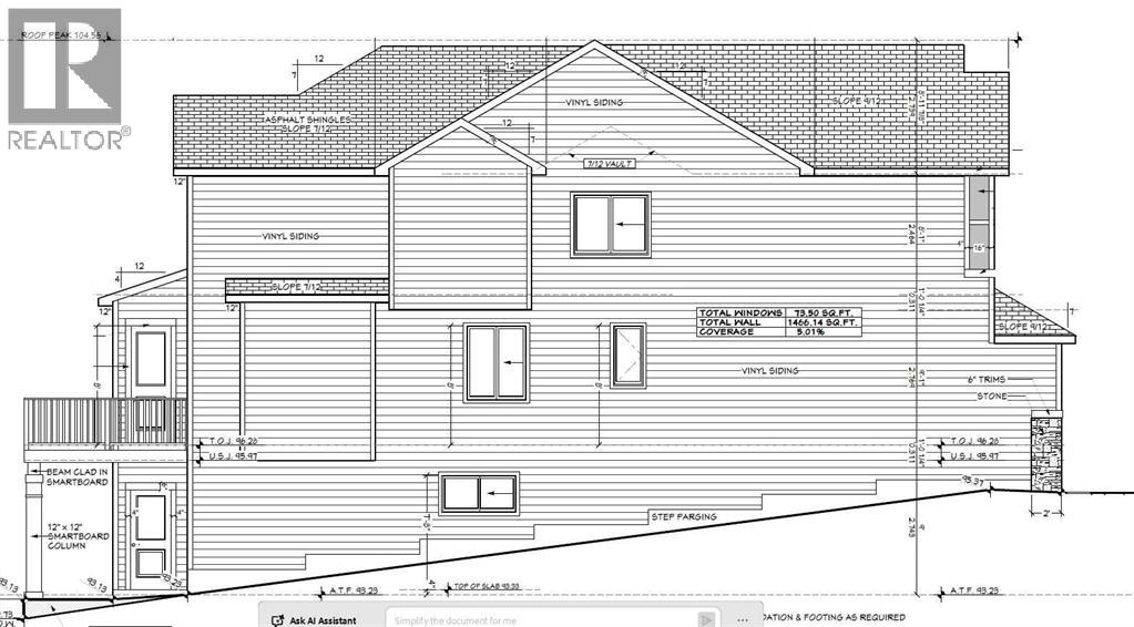
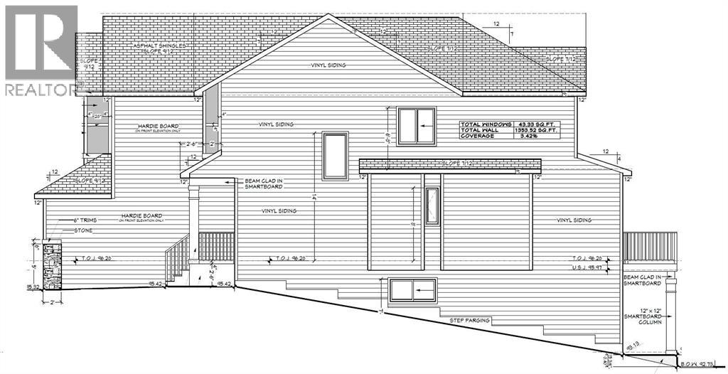
BRAND NEW / WALK-OUT BASEMENT / LOT BACKING ONTO WETLANDS / SPICE KITCHEN / MAIN FLOOR BEDROOM + FULL BATH / TOTAL 5 BED + 4 FULL BATH / DUAL MASTER BEDROOM / NEW HOME GST REBATE (Eligibility restrictions apply). Amazing Design! Unique in Features! Brand New Home! Over 2300+ SQFT of stylish design welcomes you into this stunning FIVE BEDROOM and FOUR FULL BATH home located in the beautiful community of Cornerstone. You're welcomed to a thoughtfully designed living space that maximizes every inch while offering an abundance of space for your whole family to enjoy! The gorgeous OPEN FLOOR PLAN with 9 feet ceiling, invites you in to discover a lovely kitchen that boasts beautiful QUARTZ counter tops, sleek stainless steel appliance package with an upgraded cooktop, French Door Fridge with Internal Water + Ice, Built in Wall Oven/Microwave Combo and a power pack built-in cabinet hoodfan. A large walk-in SPICE KITCHEN and beautiful extended over-sized flush centre Island that overlooks the generous great room and dining room-Ideal for all entertaining. The main floor has a beautiful view of the NATURAL WETLANDS from windows on back. A sizeable 5TH BEDROOM on the main floor, perfect for a large family or working from home, along with full bath adjacent to this functional space. A mudroom with storage gives a convenient space for the family to access to and from garage. Upstairs, you will discover FOUR MORE BEDROOMS with TWO MASTER Bedroom's, with the main one boasting a VAULTED CEILING, a 5pc en-suite with dual vanities, stand alone shower, over sized bath, window overlooking natural wetlands and large walk-in closet. A centralized BONUS ROOM with VAULTED CEILING offers an additional living space and another 3-pc full bath and LAUNDRY WITH SINK and storage complete this level. ADDITIONAL FEATURES: Upgraded Fit and Finish , ALL BATHROOMS having standing showers, Lot backing onto expansive wetlands, a 12 x 11 feet deck with open views of wetlands, iron spindle railing add ed to stairs, and raised 9' basement ceiling height and 3-piece rough-in plumbing along with sliding patio door on the back. Situated close to the International Airport with quick access to both Deer Foot Trail and Stony Trail along with new amenities being added to the community continuously, you will enjoy all Cornerstone has to offer. A brand new build with all of the difficult decisions decided along with a functional and intelligent floorplan for a large family. (id:47421)
Share
Listed By URBAN-REALTY.ca
Data Provided By Calgary Real Estate Board
MLS® Listing Number A2272289
Last Updated Mar 08, 2026
Property Summary
Property Type Detached

More like this:
Community Cornerstone
Price History

Interested in obtaining the full price history for this property?
Contact us!Contact us! Our real estate professionals would be happy to provide a complete listing history with historical sold prices and dates.

Detailed Information
Bedrooms 5
Bathrooms 4
Lot 10.37 x 32.13 m
Amenities Nearby Park, Playground, Schools, Shopping
Features Other, PVC window, No neighbours behind, Environmental reserve
Listing Contract Date 2025-11-23
Municipal ID 0039601786
Ownership Type Freehold
# of Parking Spaces 4
Plan 2311614
Property Type Single Family
Structures Deck
Transaction Type For sale
Zoning Description R-G
Building
Amenities Other
Appliances Refrigerator, Cooktop - Gas, Dishwasher, Microwave, Oven - Built-In, Humidifier, Garage door opener, Washer & Dryer, Cooktop - Induction
Basement Development Unfinished
Basement Features Walk out
Basement Type Full (Unfinished)
Constructed Date 2026
Construction Material Poured concrete, Wood frame
Construction Style (Attachment) Detached
Cooling Type None
Exterior Finish Concrete, Vinyl siding
Fireplace Present Yes
# of Fireplaces 1
Flooring Type Carpeted, Vinyl Plank
Foundation Type Poured Concrete
Heating Fuel Natural gas
Heating Type Forced air
Stories Total 2
Total Finished Area 2314 sqft
Type House
Rooms
Room Level Dimensions Notes
KitchenMain level11.75 Ft x 9.13 Ft
Dining roomMain level13.08 Ft x 11.50 Ft
OtherMain level11.75 Ft x 5.58 Ft
Great roomMain level14.42 Ft x 15.00 Ft
FoyerMain level6.00 Ft x 7.33 Ft
OtherMain level6.00 Ft x 5.00 Ft
OtherMain level5.00 Ft x 7.08 Ft
BedroomMain level10.08 Ft x 9.50 Ft
3pc BathroomMain level8.50 Ft x 5.00 Ft
Bonus RoomUpper Level14.92 Ft x 11.00 Ft
Laundry roomUpper Level5.00 Ft x 8.00 Ft
OtherUpper Level5.58 Ft x 8.58 Ft
OtherUpper Level4.58 Ft x 7.33 Ft
BedroomUpper Level14.25 Ft x 11.00 Ft
BedroomUpper Level10.58 Ft x 10.08 Ft
BedroomUpper Level11.00 Ft x 10.08 Ft
Primary BedroomUpper Level13.83 Ft x 13.25 Ft
3pc BathroomUpper Level5.00 Ft x 8.17 Ft
3pc BathroomUpper Level5.00 Ft x 8.58 Ft
5pc BathroomUpper Level11.00 Ft x 9.25 Ft
Parking Spaces
Name Spaces
Attached Garage2
Land
Total Size 329 square meters
Amenities Park, Playground, Schools, Shopping
Fence Type Partially fenced
Size of Irregular Land 329.00

The information contained on this site is based in whole or in part on information that is provided under copyright by the Toronto Regional Real Estate Board (TRREB) or by members of The Canadian Real Estate Association (CREA), who are responsible for its accuracy. TRREB and CREA reproduce and distribute this information as a service for their members and assume no responsibility for its accuracy. All information displayed is believed to be accurate but is not guaranteed and should be independently verified. No warranties or representations of any kind are made with respect to the accuracy of such information.
The information provided herein must only be used by consumers that have a bona fide interest in the purchase, sale, or lease of real estate and may not be used for any commercial purpose or any other purpose.

FREE ESTIMATES ARE COMING

Reserve Your Spot To Be Notified
or

Coming soon to select cities
in North America

(We'll never share your details)