$1,545,000
FOR SALE

Duplex

Bedrooms: 4+2Bathrooms: 7Lot: 7.61 x 39.61 m

2231 2 Avenue Nw
Calgary, AB T2N 0H1

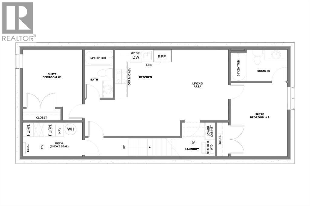
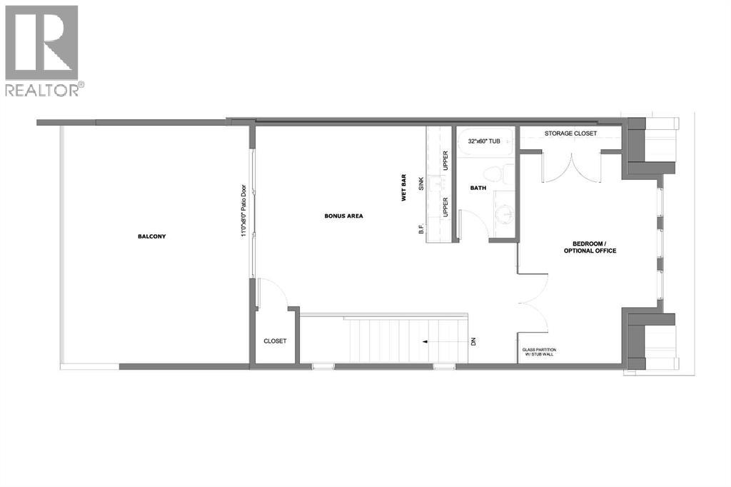
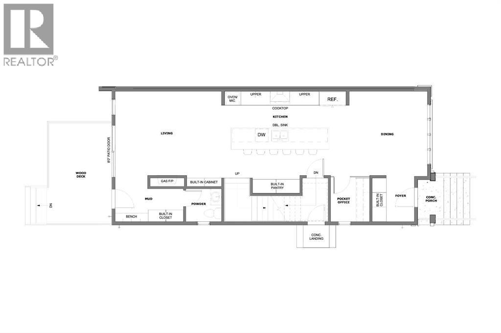
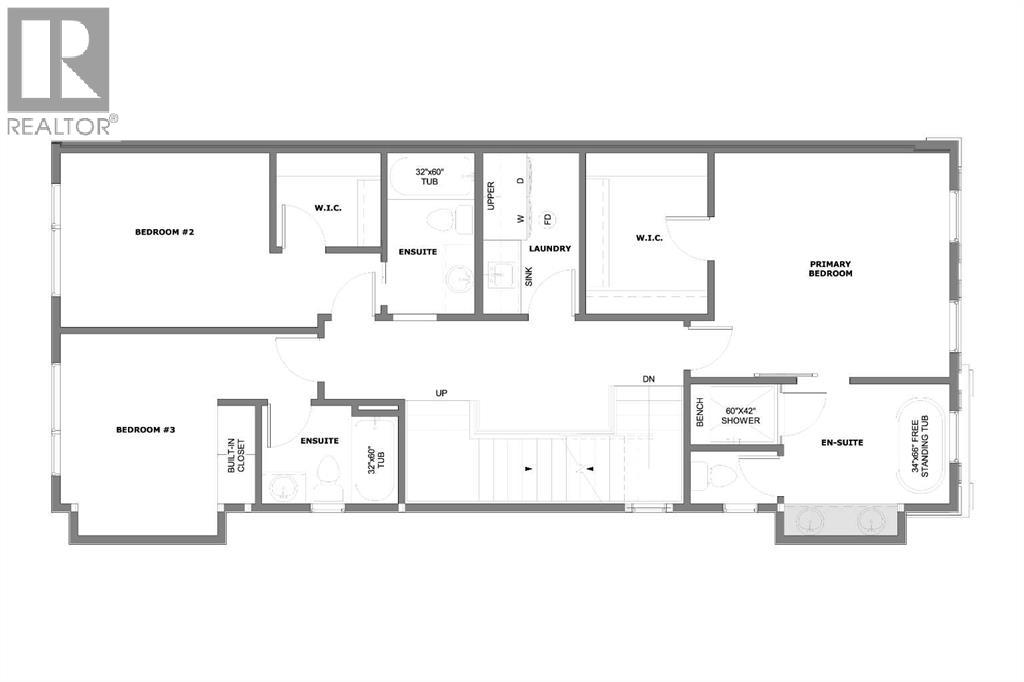
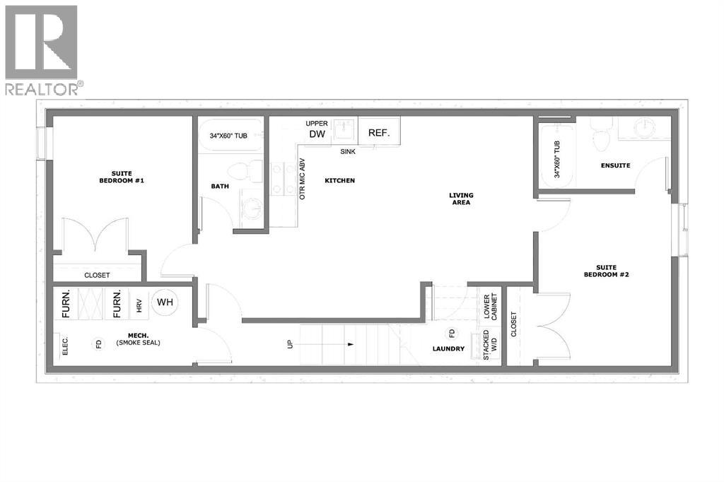
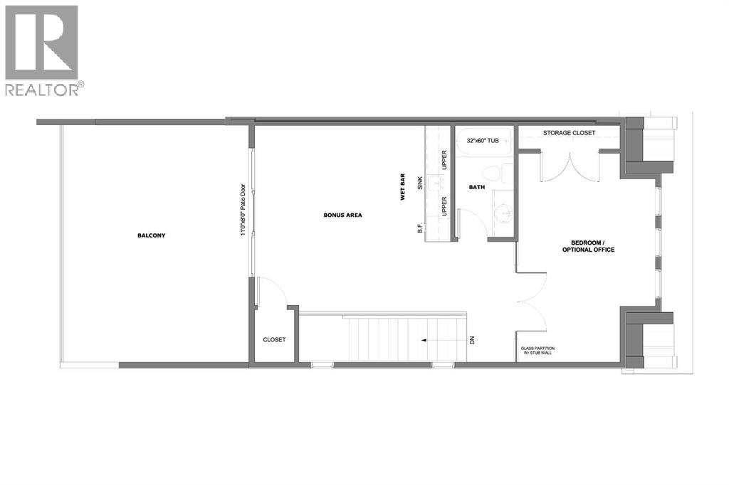
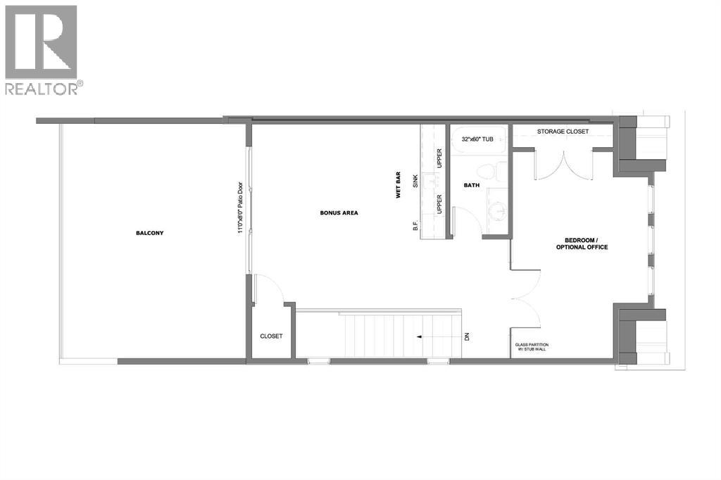
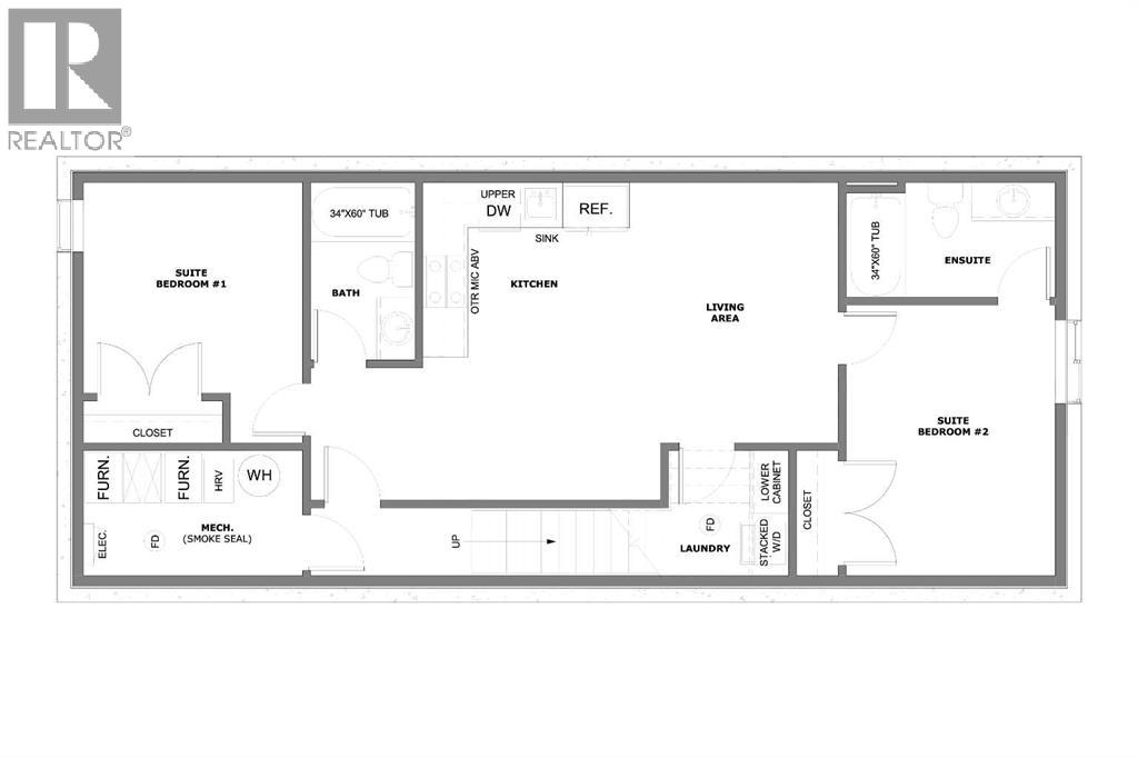
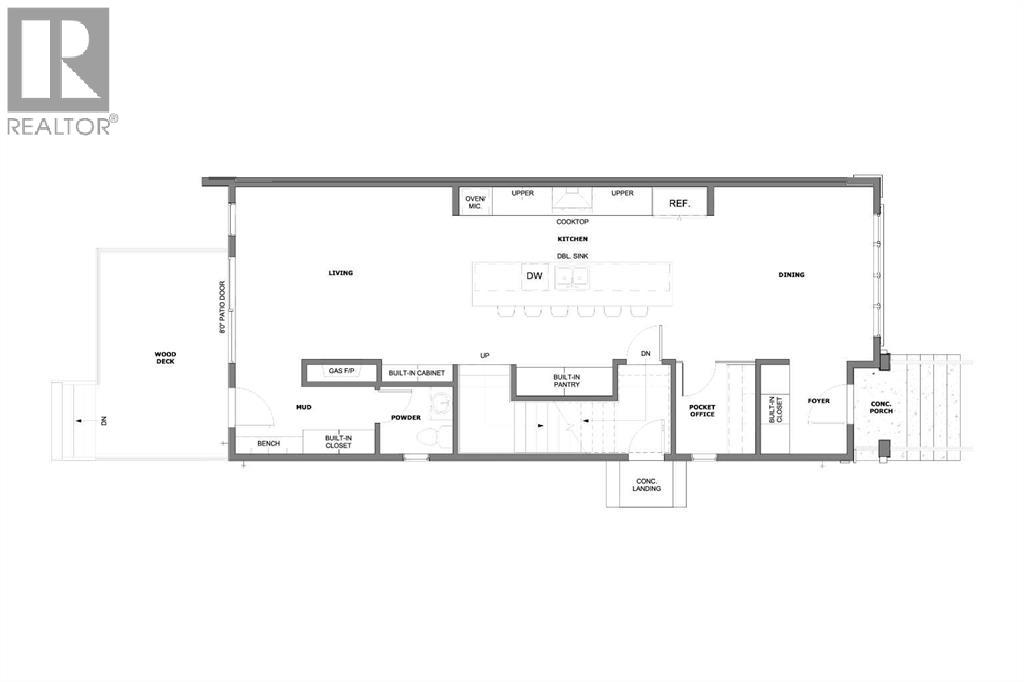
Modern, calm, & thoughtfully composed. This brand WEST HILLHURT semi-detached home blends clean architecture w/ warm, natural finishes across THREE LEVELS, including a loft level w/ bonus area, bright bed/office, & balcony/ DOWNTOWN VIEWS, plus a fully developed LEGAL 2-BED LOWER SUITE (approved by the city). Step inside to a welcoming foyer w/ plenty of space to move around & manage shoes & coats, neatly stored in the built-in closet. A pocket office w/ a built-in desk provides a convenient spot for work-from-home tasks. The front dining area offers a quiet place for morning coffee & a lovely backdrop for family meals. The kitchen truly steals the show w/ the oversized island w/ seating for quick breakfasts, charcuterie nights, or laptop catch-ups. Cabinetry is full-height w/ lots of lower drawers and a panelled built-in fridge for a modern vibe. The working wall keeps cookware & small appliances tucked away, while quartz surfaces read clean & durable. At the back, the family room is all about comfort. The gas fireplace w/ simple built-ins gives you space for art & books, while the layout makes TV viewing effortless. Sliding patio doors to the backyard floods the room w/ light & sets up easy indoor-outdoor living. The rear mudroom is exactly where you want it, fitted w/ custom storage & a bench so shoes, bags, & dog leashes have a home. A discreet powder room completes this level.Upstairs, the PRIMARY SUITE feels like a retreat at the end of the day. You get a true walk-in closet & an ensuite that checks every box: DOUBLE VANITY, an oversized shower, & a FREESTANDING TUB that actually invites a soak. The secondary bedrooms features their own 4-pc ensuites & built-in closets giving families the flexibily they desreve. The LAUNDRY ROOM up here saves steps & keeps the main floor tidy.The loft level adds space to spread out across the home, w/ a bright & spacious bedroom or optional office w/ glass partition wall & French door, w/ built-in storage. The bonus re c area features a modern & upscale wet bar, w/ access to the oversized balcony w/ downtown views! There’s also a full 4-pc bath on this level for convenience! Downstairs, the legal 2-bed suite keeps the modern & upscale feel going w/ a full kitchen w/ quartz & stainless steel appliance package, good-sized living area, separate laundry, a primary bed w/ private ensuite bath, & a second bed w/ quick access to the main 4-pc bath.Walk to neighbourhood parks for quick dog runs & fresh air. Schools are excellent here – Hillhurst School for K-6, Queen Elizabeth Junior High & Senior High just up the road, & William Aberhart High School for advanced academics & sports programs. Weekend coffee, local bakeries, & casual dining are all within minutes, & downtown is an easy commute by car, bike, or transit. River pathways make a perfect loop for a jog or sunset stroll. It’s the right mix of community feel & city access. (id:47421)
Share
Listed By RE/MAX House of Real Estate
Data Provided By Calgary Real Estate Board
MLS® Listing Number A2253662
Last Updated Feb 15, 2026
Property Summary
Property Type Duplex

More like this:
Community West Hillhurst
Price History

Interested in obtaining the full price history for this property?
Contact us!Contact us! Our real estate professionals would be happy to provide a complete listing history with historical sold prices and dates.

Detailed Information
Bedrooms 4+2
Bathrooms 7
Lot 7.61 x 39.61 m
Amenities Nearby Park, Playground, Schools, Shopping
Features Closet Organizers, Gas BBQ Hookup
Listing Contract Date 2025-10-31
Municipal ID N202566187
Ownership Type Freehold
# of Parking Spaces 2
Plan 371O
Property Type Single Family
Structures Deck
Transaction Type For sale
Zoning Description R-CG
Building
Appliances Refrigerator, Cooktop - Gas, Dishwasher, Stove, Oven, Microwave, Microwave Range Hood Combo, Hood Fan, Garage door opener
Basement Development Finished
Basement Features Separate entrance, Suite
Basement Type Full (Finished)
Constructed Date 2025
Construction Style (Attachment) Semi-detached
Cooling Type See Remarks
Exterior Finish Composite Siding, Stone, Stucco
Fireplace Present Yes
# of Fireplaces 1
Flooring Type Hardwood, Tile, Vinyl Plank
Foundation Type Poured Concrete
# of Half Bathrooms 1
Heating Type Forced air
Stories Total 3
Total Finished Area 2949.75 sqft
Type Duplex
Rooms
Room Level Dimensions Notes
Primary BedroomSecond level13.50 Ft x 12.75 Ft
OtherSecond level9.17 Ft x 6.75 Ft
BedroomSecond level12.00 Ft x 9.92 Ft
BedroomSecond level11.58 Ft x 9.00 Ft
Laundry roomSecond level9.25 Ft x 5.50 Ft
4pc BathroomSecond levelMeasurements not available
5pc BathroomSecond levelMeasurements not available
4pc BathroomSecond levelMeasurements not available
Bonus RoomThird level21.42 Ft x 20.08 Ft
BedroomThird level17.75 Ft x 11.58 Ft
4pc BathroomThird levelMeasurements not available
BedroomBasement13.00 Ft x 10.00 Ft
BedroomBasement12.42 Ft x 10.42 Ft
KitchenBasement9.50 Ft x 8.42 Ft
Living roomBasement15.17 Ft x 10.33 Ft
Laundry roomBasement6.00 Ft x 6.00 Ft
4pc BathroomBasementMeasurements not available
4pc BathroomBasementMeasurements not available
Living roomMain level16.33 Ft x 15.00 Ft
KitchenMain level18.83 Ft x 16.00 Ft
Dining roomMain level13.00 Ft x 12.00 Ft
OfficeMain level6.00 Ft x 5.08 Ft
OtherMain level10.25 Ft x 5.08 Ft
2pc BathroomMain levelMeasurements not available
Parking Spaces
Name Spaces
Detached Garage2
Land
Total Size 3245.32 square feet
Amenities Park, Playground, Schools, Shopping
Fence Type Fence
Size of Irregular Land 3245.32
External Links

The information contained on this site is based in whole or in part on information that is provided under copyright by the Toronto Regional Real Estate Board (TRREB) or by members of The Canadian Real Estate Association (CREA), who are responsible for its accuracy. TRREB and CREA reproduce and distribute this information as a service for their members and assume no responsibility for its accuracy. All information displayed is believed to be accurate but is not guaranteed and should be independently verified. No warranties or representations of any kind are made with respect to the accuracy of such information.
The information provided herein must only be used by consumers that have a bona fide interest in the purchase, sale, or lease of real estate and may not be used for any commercial purpose or any other purpose.

FREE ESTIMATES ARE COMING

Reserve Your Spot To Be Notified
or

Coming soon to select cities
in North America

(We'll never share your details)