$1,499,900
FOR SALE

Duplex

Bedrooms: 3+1Bathrooms: 5Lot: 7.62 x 36.57 m

2716 3 Avenue Nw
Calgary, AB T2N 0L7

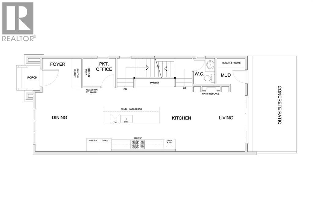
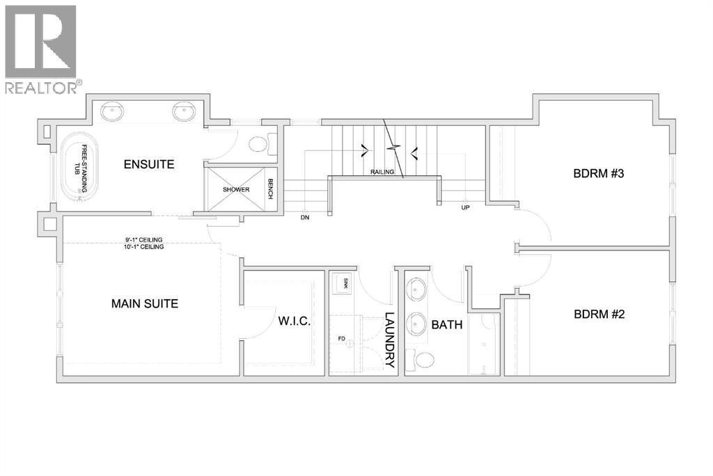
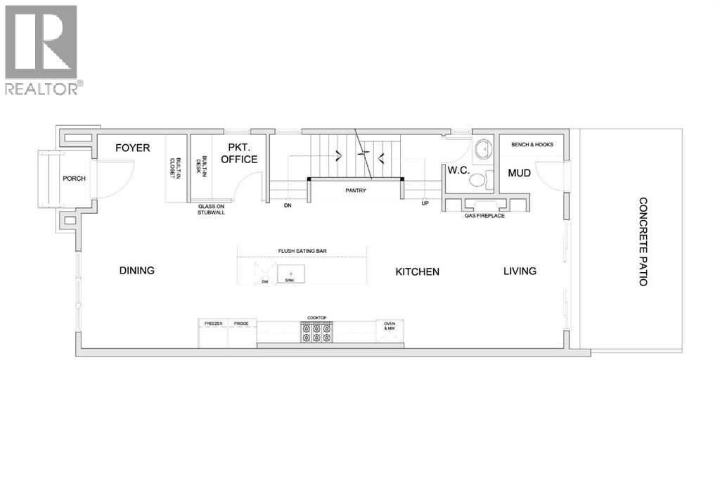
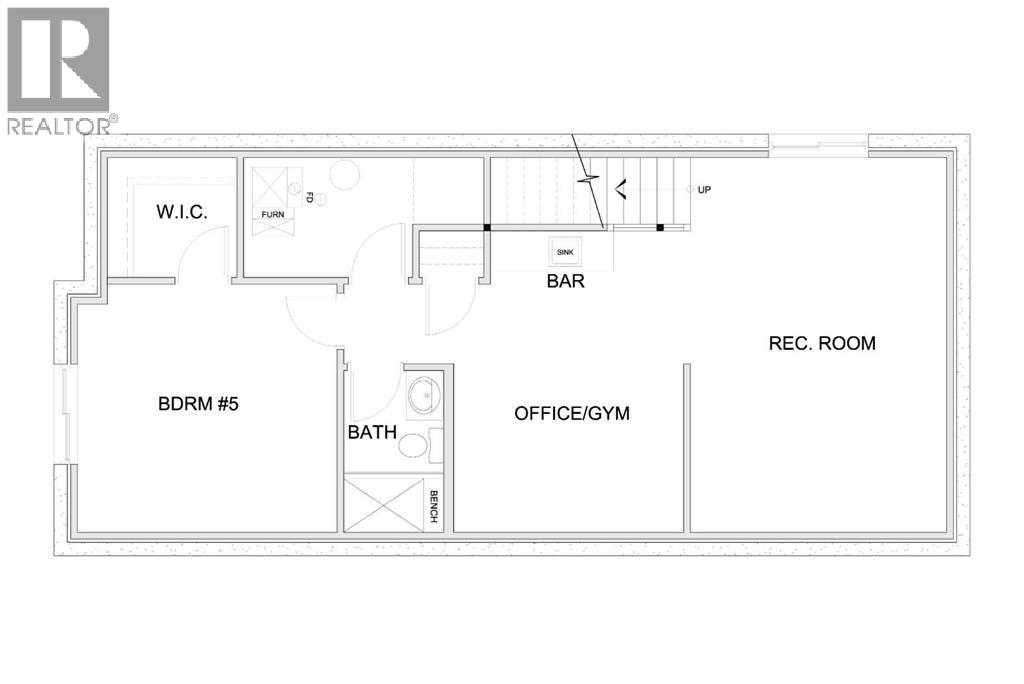
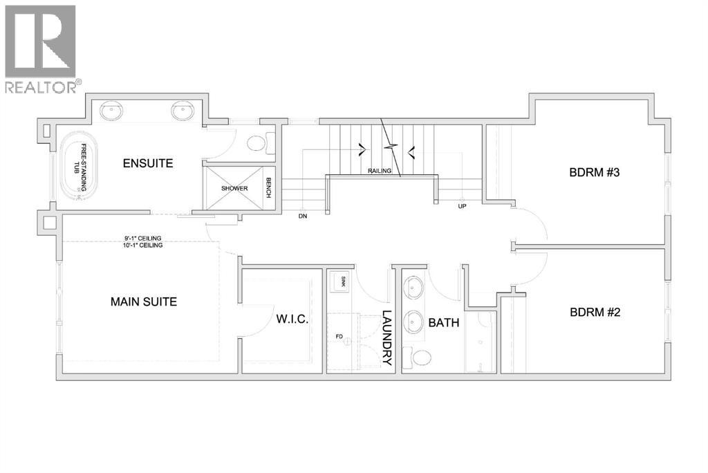
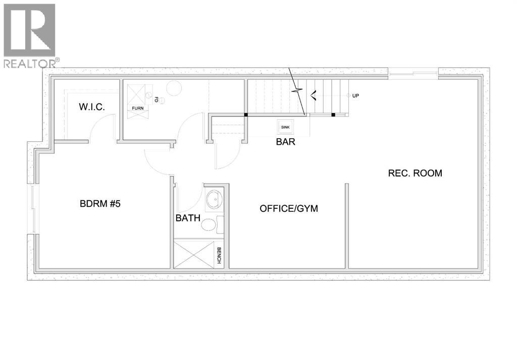
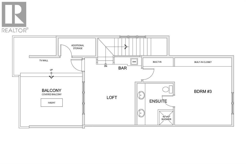
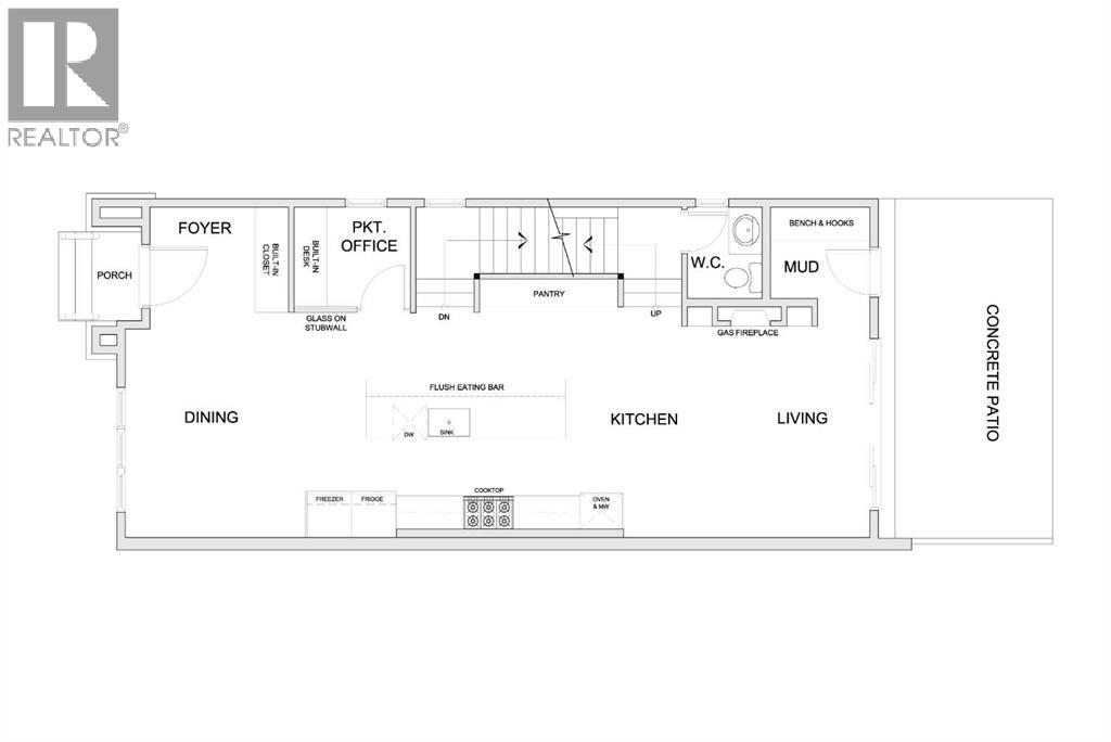
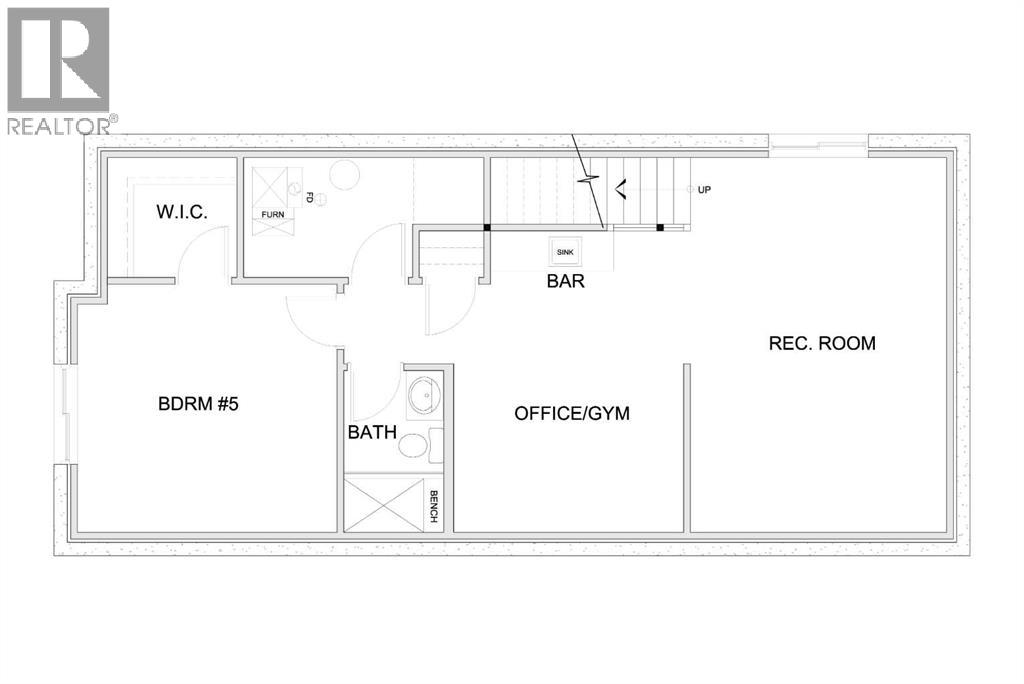
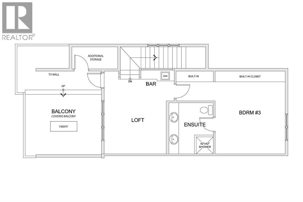
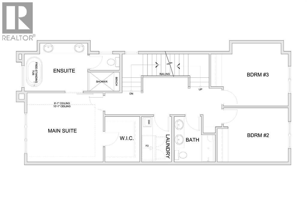
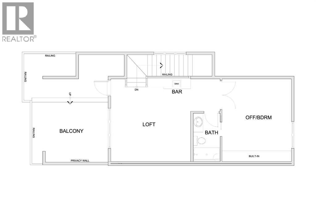
Located in WEST HILLHURST, this modern SEMI-DETACHED NON SUITED infill delivers the kind of layout and design that simply works for inner-city living. Clean architecture, generous windows, and multiple outdoor spaces set the tone and well-suited for daily life near the river, downtown, and some of Calgary’s most established amenities.A defined foyer creates a proper sense of arrival and keeps the main living areas feeling calm and composed. Just off the entry, a POCKET OFFICE with built-ins and glass detailing offers a dedicated work or study space without disrupting the flow. The main floor opens into a dedicated dining area that naturally connects to the kitchen, creating an easy rhythm for daily life.The kitchen anchors the home with a large island featuring bar seating and an integrated sink. The appliance layout is designed for real use, keeping prep and cooking zones efficient and intuitive, with a full-size side-by-side fridge/freezer, gas cooktop, and wall oven. A BUILT-IN PANTRY provides generous storage while maintaining clean sightlines. At the back of the home, the living room feels warm and inviting with a GAS FIREPLACE and expansive patio doors that open to the CONCRETE PATIO, extending the living space outdoors. A discreet powder room and a well-designed MUDROOM with BENCH AND HOOKS complete the main level.Upstairs, the second floor is dedicated to rest and privacy. The primary bedroom is a calm retreat, finished with a TRAY CEILING that adds subtle architectural interest. The ensuite includes a FREESTANDING TUB, dual sinks, and a separate shower with bench seating. Two additional bedrooms are thoughtfully positioned away from the primary and share a full bathroom with dual sinks, and the laundry room is placed right in the middle of the layout for ease.The upper loft level adds a lifestyle layer rarely found in inner-city homes. A spacious loft with a BAR and sink works as a media lounge or entertaining space, while a FLEX ROOM adapts easily as an office or guest room, complete with a private 4-pc ensuite. Outside, a TWO-TIER BALCONY offers an outdoor retreat, creating a private, elevated escape with room to relax or host w/ TV wall and FIREPIT. The fully developed basement continues the theme of flexibility and function. A large rec room is paired with a SECOND WET BAR and an OFFICE OR GYM space adapts easily to your needs. A 5th bedroom with walk-in closet and a full bath makes this level comfortable for guests or extended family.Located in WEST HILLHURST, this home is minutes from the Bow River pathway system, West Hillhurst Community Centre, and Helicopter Park. Nearby schools include West Hillhurst School, Queen Elizabeth School, and Westmount Charter School. Kensington’s shops, cafes, and services along Kensington Rd and 10 S NW are close at hand, with quick access to downtown, Foothills Medical Centre, Alberta Children’s Hospital, and Memorial Dr. A walkable, established inner-city lifestyle with everything within reach. (id:47421)
Share
Listed By RE/MAX House of Real Estate
Data Provided By Calgary Real Estate Board
MLS® Listing Number A2280534
Last Updated Mar 30, 2026
Property Summary
Property Type Duplex

More like this:
Community West Hillhurst
Price History

Interested in obtaining the full price history for this property?
Contact us!Contact us! Our real estate professionals would be happy to provide a complete listing history with historical sold prices and dates.

Detailed Information
Bedrooms 3+1
Bathrooms 5
Lot 7.62 x 36.57 m
Amenities Nearby Park, Playground, Schools, Shopping
Features See remarks, Other, Wet bar
Listing Contract Date 2026-01-20
Municipal ID N202666314
Ownership Type Freehold
# of Parking Spaces 2
Plan 331AB
Property Type Single Family
Structures See Remarks
Transaction Type For sale
Zoning Description SR
Building
Appliances Refrigerator, Cooktop - Gas, Dishwasher, Microwave, Freezer, Oven - Built-In, Hood Fan, Garage door opener
Basement Development Finished
Basement Type Full (Finished)
Constructed Date 2026
Construction Style (Attachment) Semi-detached
Cooling Type See Remarks
Exterior Finish Stone, Stucco
Fireplace Present Yes
# of Fireplaces 1
Flooring Type Carpeted, Ceramic Tile, Hardwood
Foundation Type Poured Concrete
# of Half Bathrooms 1
Heating Type Forced air
Stories Total 3
Total Finished Area 2653.4 sqft
Type Duplex
Rooms
Room Level Dimensions Notes
Primary BedroomSecond level12.67 Ft x 13.00 Ft
OtherSecond level8.33 Ft x 4.92 Ft
BedroomSecond level14.00 Ft x 11.17 Ft
Bonus RoomSecond level8.67 Ft x 8.92 Ft
Laundry roomSecond level8.33 Ft x 5.50 Ft
4pc BathroomSecond levelMeasurements not available
5pc BathroomSecond levelMeasurements not available
BedroomThird level15.33 Ft x 14.75 Ft
LoftThird level15.33 Ft x 13.00 Ft
3pc BathroomThird levelMeasurements not available
BedroomBasement12.42 Ft x 12.67 Ft
Exercise roomBasement8.42 Ft x 11.50 Ft
Recreational, Games roomBasement18.75 Ft x 14.33 Ft
3pc BathroomBasementMeasurements not available
Living roomMain level12.67 Ft x 14.83 Ft
KitchenMain level19.67 Ft x 15.00 Ft
Dining roomMain level12.50 Ft x 11.00 Ft
2pc BathroomMain levelMeasurements not available
Parking Spaces
Name Spaces
Detached Garage2
Land
Total Size 278.66 square meters
Amenities Park, Playground, Schools, Shopping
Fence Type Fence
Size of Irregular Land 278.66
External Links

The information contained on this site is based in whole or in part on information that is provided under copyright by the Toronto Regional Real Estate Board (TRREB) or by members of The Canadian Real Estate Association (CREA), who are responsible for its accuracy. TRREB and CREA reproduce and distribute this information as a service for their members and assume no responsibility for its accuracy. All information displayed is believed to be accurate but is not guaranteed and should be independently verified. No warranties or representations of any kind are made with respect to the accuracy of such information.
The information provided herein must only be used by consumers that have a bona fide interest in the purchase, sale, or lease of real estate and may not be used for any commercial purpose or any other purpose.

FREE ESTIMATES ARE COMING

Reserve Your Spot To Be Notified
or

Coming soon to select cities
in North America

(We'll never share your details)