NO NEIGHBOURS BEHIND—JUST SUNRISE ON THE POND AND A FRONT PORCH THAT ACTUALLY GETS USED. This new, never-lived-in half duplex backs directly onto the greenspace and community storm pond in Starling (NW), so the view is yours morning to night. Instead of a back fence, you get open sky, long pathway loops, and a little more breathing room than most new builds manage to carve out.Inside, the main floor keeps life easy: 9’ ceilings, luxury vinyl plank flooring, and sightlines that run from the kitchen through the dining area to the yard. The kitchen is quietly excellent—designed to work hard without shouting about it—with QUARTZ COUNTERS, 42" UPPER CABINETRY for extra storage, a CHIMNEY HOOD FAN, BUILT-IN MICROWAVE, and an electric range with a gas line roughed-in (if flame is your thing). Groceries land on the island, dinner moves to the dining table, and the rear deck takes over when the weather cooperates.Upstairs, three calm bedrooms and two full baths keep the morning traffic moving, and laundry lives exactly where it should—on the upper level. The FRONT-FACING MASTER BEDROOM is tucked away from the hallway bustle with its own ensuite and walk-in closet. The plan is right-sized and efficient, easy to furnish and easy to keep tidy.Downstairs, a full, unfinished basement gives you tomorrow’s options without forcing today’s decisions. There’s a SEPARATE SIDE ENTRY, 200-AMP electrical service, and a rough-in for a future bath—set it up as a gym, media room, hobby space, or develop a guest/teen zone when the timing makes sense. Out back, a proper 20'×20' DETACHED GARAGE sits off a paved lane; there’s a gas line ready for the BBQ, and the front yard comes sodded so move-in actually feels like move-in.Why here? STARLING IS FOR PEOPLE WHO LIKE TO STEP OUTSIDE. Pathways are planned to loop around the nautilus-style storm pond and connect to parks, naturalized greenspace, and an environmental reserve. Planned community extras—gathering nodes and play spaces—mean ther e will be PLENTY OF PLACES TO WALK, ROLL, SKATE, OR SIT WITH A COFFEE. Practical stuff: quick links to 14 St NW and Stoney make the rest of the city easy, and everyday essentials are a short drive. Best of all, this lot backs the greenspace and pond—quiet outlook, no neighbours behind, sunrise doing the heavy lifting.If mornings on the porch and evenings on the pathways sound like your kind of routine, this is the one. Book a showing and come see how it lives—quiet, practical, and special where it counts. • PLEASE NOTE: Photos are of a finished Showhome of the same model – fit and finish may differ on finished spec home. Interior selections and floorplans shown in photos. (id:47421)
Interested in obtaining the full price history for this property? Contact us!Contact us! Our real estate professionals would be happy to provide a complete listing history with historical sold prices and dates.
Detailed Information
Bedrooms
3
Bathrooms
3
Lot
6.75 x 33 m
Amenities Nearby
Park, Playground, Shopping
Features
Back lane, No neighbours behind, Gas BBQ Hookup
Listing Contract Date
2025-09-08
Municipal ID
0039949268
Ownership Type
Freehold
# of Parking Spaces
2
Plan
2411481
Property Type
Single Family
Structures
Deck
Transaction Type
For sale
Zoning Description
R-Gm
Building
Amperage
200 Amp Service
Appliances
Refrigerator, Range - Electric, Dishwasher, Microwave, Hood Fan, Garage door opener
Basement Development
Unfinished
Basement Features
Separate entrance
Basement Type
Full (Unfinished)
Constructed Date
2025
Construction Material
Poured concrete, Wood frame
Construction Style (Attachment)
Semi-detached
Cooling Type
None
Exterior Finish
Concrete, Vinyl siding
Fire Protection
Smoke Detectors
Flooring Type
Carpeted, Vinyl
Foundation Type
Poured Concrete
# of Half Bathrooms
1
Heating Fuel
Natural gas
Heating Type
Forced air, Other
Stories Total
2
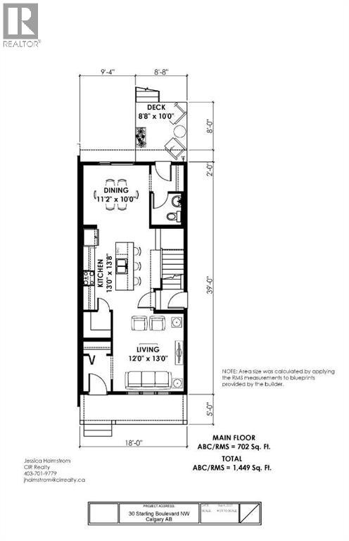
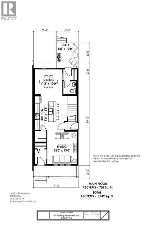
Total Finished Area
1449 sqft
Type
Duplex
Utility Power
200 Amp Service
Rooms
Room
Level
Dimensions
Notes
Other
Main level
Measurements not available
Living room
Main level
13.00 Ft x 12.00 Ft
Kitchen
Main level
13.67 Ft x 13.00 Ft
Pantry
Main level
Measurements not available
Dining room
Main level
10.00 Ft x 11.17 Ft
2pc Bathroom
Main level
Measurements not available
Other
Main level
Measurements not available
Primary Bedroom
Upper Level
13.33 Ft x 11.67 Ft
Other
Upper Level
Measurements not available
3pc Bathroom
Upper Level
Measurements not available
3pc Bathroom
Upper Level
Measurements not available
Bedroom
Upper Level
10.00 Ft x 8.25 Ft
Bedroom
Upper Level
10.00 Ft x 8.42 Ft
Laundry room
Upper Level
Measurements not available
Parking Spaces
Name
Spaces
Detached Garage
2
Land
Total Size
222.75 square meters
Amenities
Park, Playground, Shopping
Fence Type
Not fenced
Size of Irregular Land
222.75
Terms of Use
Please review and agree to the following terms of use to access the listing content:
REALTOR®, REALTORS®, and the REALTOR® logo are certification marks that are owned by REALTOR® Canada Inc. and licensed exclusively to The Canadian Real Estate Association (CREA). These certification marks identify real estate professionals who are members of CREA and who must abide by CREA's By-Laws, Rules, and the REALTOR® Code. The MLS® trademark and the MLS® logo are owned by CREA and identify the quality of services provided by real estate professionals who are members of CREA;
The information contained on this site is based in whole or in part on information that is provided by members of CREA, who are responsible for its accuracy. CREA reproduces and distributes this information as a service for its members and assumes no responsibility for its accuracy;
This website is operated by a brokerage or salesperson who is a member of CREA;
The listing content on this website is protected by copyright and other laws, and is intended solely for the private, non-commercial use by individuals. Any other reproduction, distribution or use of the content, in whole or in part, is specifically forbidden. The prohibited uses include commercial use, "screen scraping", "database scraping", and any other activity intended to collect, store, reorganize or manipulate data on the pages produced by or displayed on this website.
The information contained on this site is based in whole or in part on information that is provided under copyright by the Toronto Regional Real Estate Board (TRREB) or by members of The Canadian Real Estate Association (CREA), who are responsible for its accuracy. TRREB and CREA reproduce and distribute this information as a service for their members and assume no responsibility for its accuracy. All information displayed is believed to be accurate but is not guaranteed and should be independently verified. No warranties or representations of any kind are made with respect to the accuracy of such information. The information provided herein must only be used by consumers that have a bona fide interest in the purchase, sale, or lease of real estate and may not be used for any commercial purpose or any other purpose.