Tucked into a quiet and mature setting near Nose Hill Park, this walkout bungalow villa offers a rare opportunity to enjoy peaceful adult living in one of NW Calgary’s most established communities.Backing onto a beautiful pathway surrounded by mature trees, this home offers privacy, nature, and a lifestyle that is becoming harder to find. Enjoy morning coffee on the upper deck, relax in the shaded walkout patio area, or take a short stroll to the nearby pathways and green spaces connected to Nose Hill Park.Inside, the home features a spacious layout with generous living areas, large windows, and a well-designed floor plan that has been lovingly maintained over the years. While many finishes remain original, the home offers a buyer an excellent opportunity to update at their own pace while enjoying the comfort, setting, and functionality it already provides.Located close to shopping, restaurants, services, and transit, this is an ideal opportunity for someone looking to downsize without giving up space, natural surroundings, or community feel.If you’ve been searching for a quiet lifestyle, mature trees, and an unbeatable location with long-term potential, this home is well worth a look. (id:47421)
Interested in obtaining the full price history for this property? Contact us!Contact us! Our real estate professionals would be happy to provide a complete listing history with historical sold prices and dates.
Detailed Information
Bedrooms
2+1
Bathrooms
2
Amenities Nearby
Schools, Shopping
Community Features
Pets Allowed With Restrictions, Age Restrictions
Features
See remarks, Parking
Listing Contract Date
2025-10-10
Maintenance Fee Payment Frequency
Monthly
Maintenance Fee Type
Condominium Amenities, Common Area Maintenance, Insurance, Ground Maintenance, Parking, Property Management, Reserve Fund Contributions, Sewer, Waste Removal, Water
Municipal ID
0011419835
Ownership Type
Condominium/Strata
# of Parking Spaces
2
Plan
8911382
Property Type
Single Family
Structures
Deck
Transaction Type
For sale
Zoning Description
M-CG d44
Building
Amenities
Clubhouse
Appliances
Refrigerator, Dishwasher, Stove, Microwave Range Hood Combo, Washer & Dryer
Architectural Style
Bungalow
Basement Development
Finished
Basement Features
Walk out
Basement Type
Full (Finished)
Constructed Date
1989
Construction Material
Wood frame
Construction Style (Attachment)
Attached
Cooling Type
None
Exterior Finish
Stucco
Fireplace Present
Yes
# of Fireplaces
1
Flooring Type
Carpeted, Linoleum
Foundation Type
Poured Concrete
Heating Fuel
Natural gas
Heating Type
Forced air
Stories Total
1
Total Finished Area
866.06 sqft
Type
Row / Townhouse
Rooms
Room
Level
Dimensions
Notes
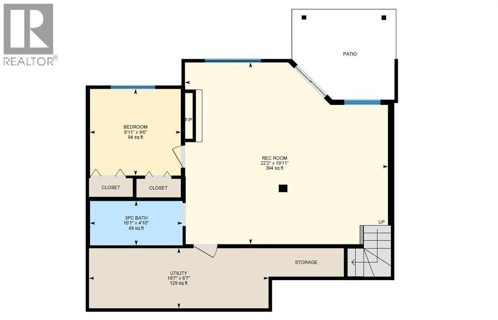
Recreational, Games room
Lower level
22.17 Ft x 19.92 Ft
Bedroom
Lower level
9.92 Ft x 9.50 Ft
3pc Bathroom
Lower level
10.08 Ft x 4.83 Ft
Furnace
Lower level
19.58 Ft x 6.58 Ft
Living room
Main level
16.00 Ft x 11.58 Ft
Kitchen
Main level
12.25 Ft x 8.67 Ft
Dining room
Main level
6.75 Ft x 7.08 Ft
Primary Bedroom
Main level
10.08 Ft x 12.83 Ft
Bedroom
Main level
10.08 Ft x 8.92 Ft
4pc Bathroom
Main level
4.92 Ft x 7.83 Ft
Parking Spaces
Name
Spaces
Attached Garage
1
Land
Total Size
Unknown
Amenities
Schools, Shopping
Fence Type
Partially fenced
Landscape Features
Landscaped, Lawn
Terms of Use
Please review and agree to the following terms of use to access the listing content:
REALTOR®, REALTORS®, and the REALTOR® logo are certification marks that are owned by REALTOR® Canada Inc. and licensed exclusively to The Canadian Real Estate Association (CREA). These certification marks identify real estate professionals who are members of CREA and who must abide by CREA's By-Laws, Rules, and the REALTOR® Code. The MLS® trademark and the MLS® logo are owned by CREA and identify the quality of services provided by real estate professionals who are members of CREA;
The information contained on this site is based in whole or in part on information that is provided by members of CREA, who are responsible for its accuracy. CREA reproduces and distributes this information as a service for its members and assumes no responsibility for its accuracy;
This website is operated by a brokerage or salesperson who is a member of CREA;
The listing content on this website is protected by copyright and other laws, and is intended solely for the private, non-commercial use by individuals. Any other reproduction, distribution or use of the content, in whole or in part, is specifically forbidden. The prohibited uses include commercial use, "screen scraping", "database scraping", and any other activity intended to collect, store, reorganize or manipulate data on the pages produced by or displayed on this website.
The information contained on this site is based in whole or in part on information that is provided under copyright by the Toronto Regional Real Estate Board (TRREB) or by members of The Canadian Real Estate Association (CREA), who are responsible for its accuracy. TRREB and CREA reproduce and distribute this information as a service for their members and assume no responsibility for its accuracy. All information displayed is believed to be accurate but is not guaranteed and should be independently verified. No warranties or representations of any kind are made with respect to the accuracy of such information. The information provided herein must only be used by consumers that have a bona fide interest in the purchase, sale, or lease of real estate and may not be used for any commercial purpose or any other purpose.