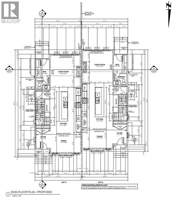
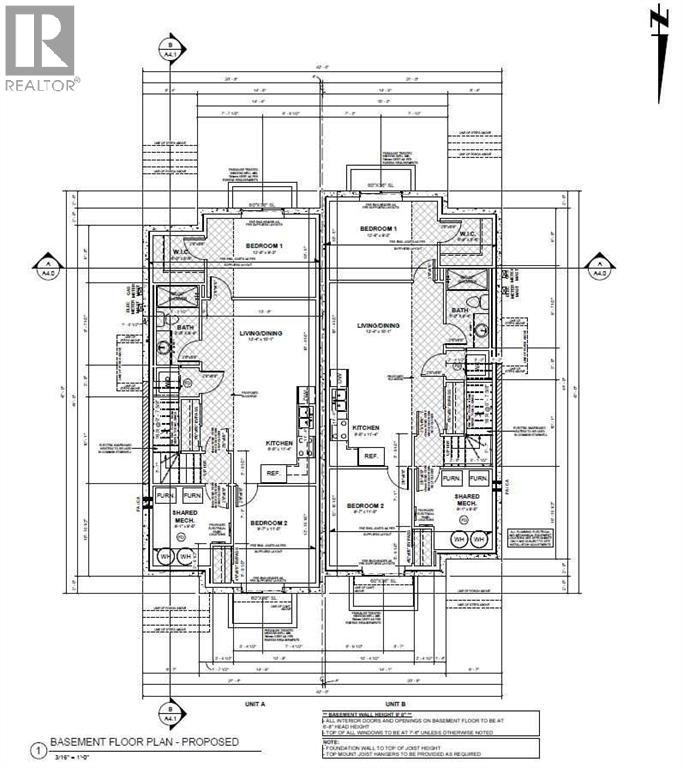
Modern luxury meets an unbeatable location in this beautifully designed home! As a preconstruction house, you still have the opportunity until 15 February 2026 to choose your own choice of flooring, cabinets, counter tops, faucets and lighting. Situated on a quiet street just steps from Bowness Park and next to a school, this 5-bedroom, 3.5-bath property offers over 2,600 sq ft of high-end living space.The main level features a gourmet chef’s kitchen with a full stainless steel appliance package including a built-in wall oven and microwave, double-door fridge with waterline, dishwasher, custom canopy hood fan, and a large island with quartz waterfall and custom slat detailing. Additional highlights include a quartz backsplash throughout, custom cabinetry with pull-outs, a pantry, quartz counters, and under-cabinet lighting. A formal dining area, spacious living room with fireplace, and a stylish mudroom with a built-in bench and storage complete the main floor.The upper level offers two generous bedrooms, a full bath, and a laundry room with a sink. The primary suite is a true retreat—also with a 9 ft ceiling—featuring a massive custom walk-in closet and a spa-inspired ensuite with freestanding tub, double vanity, and custom-tiled shower.The fully developed LEGAL basement suite provides exceptional versatility, with an open-concept layout highlighted by a bright living area, spacious dining space, and a custom kitchen with backsplash, microwave, hood fan, breakfast bar, and extensive counter space. Two large bedrooms, stacked laundry, and a full bathroom with tiled shower surround make this suite ideal for rental income or extended family. Year-round demand with proximity to CoP for short-term rental makes it an ideal candidate for Airbnb.Outside, enjoy custom concrete steps, walkways, and patio, complete landscaping, new fencing, and a private backyard space designated for basement tenants.Additional features include: 9 ft ceilings on all levels, 8 ft do ors (upper levels), knockdown ceilings, upgraded lighting and faucets, and CAT 5 wiring.This home delivers exceptional craftsmanship, thoughtful design, and modern convenience throughout. The neighbouring unit (6429) is also available. A must-see! (id:47421)
Interested in obtaining the full price history for this property? Contact us!Contact us! Our real estate professionals would be happy to provide a complete listing history with historical sold prices and dates.
Detailed Information
Bedrooms
3+2
Bathrooms
4
Lot
25 x 122 m
Amenities Nearby
Park, Playground, Schools, Shopping
Features
Back lane, PVC window, Closet Organizers, No Animal Home, No Smoking Home
Listing Contract Date
2026-01-08
Municipal ID
0012211660
Ownership Type
Freehold
# of Parking Spaces
2
Plan
5368 FV
Property Type
Single Family
Structures
Deck
Transaction Type
For sale
Zoning Description
rcg
Building
Appliances
Washer, Refrigerator, Dishwasher, Stove, Dryer, Microwave Range Hood Combo
Basement Development
Finished
Basement Features
Separate entrance, Walk-up, Suite
Basement Type
Full (Finished)
Constructed Date
2025
Construction Material
Poured concrete
Construction Style (Attachment)
Semi-detached
Cooling Type
None
Exterior Finish
Concrete, Stucco, Wood siding
Fireplace Present
Yes
# of Fireplaces
1
Flooring Type
Carpeted, Ceramic Tile, Tile, Vinyl Plank
Foundation Type
Poured Concrete
# of Half Bathrooms
1
Heating Fuel
Natural gas
Heating Type
Central heating
Stories Total
2
Total Finished Area
1845 sqft
Type
Duplex
Rooms
Room
Level
Dimensions
Notes
Bedroom
Basement
12.67 Ft x 9.25 Ft
Other
Basement
6.00 Ft x 5.50 Ft
4pc Bathroom
Basement
5.00 Ft x 9.33 Ft
Living room
Basement
13.33 Ft x 10.08 Ft
Kitchen
Basement
6.42 Ft x 11.33 Ft
Bedroom
Basement
9.58 Ft x 11.42 Ft
Furnace
Basement
9.08 Ft x 9.42 Ft
Living room
Main level
13.83 Ft x 14.75 Ft
Other
Main level
6.00 Ft x 8.00 Ft
2pc Bathroom
Main level
6.00 Ft x 5.00 Ft
Dining room
Main level
13.00 Ft x 7.75 Ft
Foyer
Main level
6.58 Ft x 7.75 Ft
Kitchen
Main level
13.58 Ft x 20.25 Ft
Bedroom
Upper Level
11.75 Ft x 13.75 Ft
Bedroom
Upper Level
10.00 Ft x 11.00 Ft
Primary Bedroom
Upper Level
13.00 Ft x 13.00 Ft
Laundry room
Upper Level
6.50 Ft x 5.58 Ft
3pc Bathroom
Upper Level
9.75 Ft x 5.00 Ft
Other
Upper Level
9.75 Ft x 6.83 Ft
5pc Bathroom
Upper Level
6.92 Ft x 11.17 Ft
Parking Spaces
Name
Spaces
Detached Garage
2
Land
Total Size
3046 square feet
Amenities
Park, Playground, Schools, Shopping
Fence Type
Fence
Landscape Features
Landscaped
Size of Irregular Land
3046.00
Terms of Use
Please review and agree to the following terms of use to access the listing content:
REALTOR®, REALTORS®, and the REALTOR® logo are certification marks that are owned by REALTOR® Canada Inc. and licensed exclusively to The Canadian Real Estate Association (CREA). These certification marks identify real estate professionals who are members of CREA and who must abide by CREA's By-Laws, Rules, and the REALTOR® Code. The MLS® trademark and the MLS® logo are owned by CREA and identify the quality of services provided by real estate professionals who are members of CREA;
The information contained on this site is based in whole or in part on information that is provided by members of CREA, who are responsible for its accuracy. CREA reproduces and distributes this information as a service for its members and assumes no responsibility for its accuracy;
This website is operated by a brokerage or salesperson who is a member of CREA;
The listing content on this website is protected by copyright and other laws, and is intended solely for the private, non-commercial use by individuals. Any other reproduction, distribution or use of the content, in whole or in part, is specifically forbidden. The prohibited uses include commercial use, "screen scraping", "database scraping", and any other activity intended to collect, store, reorganize or manipulate data on the pages produced by or displayed on this website.
The information contained on this site is based in whole or in part on information that is provided under copyright by the Toronto Regional Real Estate Board (TRREB) or by members of The Canadian Real Estate Association (CREA), who are responsible for its accuracy. TRREB and CREA reproduce and distribute this information as a service for their members and assume no responsibility for its accuracy. All information displayed is believed to be accurate but is not guaranteed and should be independently verified. No warranties or representations of any kind are made with respect to the accuracy of such information. The information provided herein must only be used by consumers that have a bona fide interest in the purchase, sale, or lease of real estate and may not be used for any commercial purpose or any other purpose.