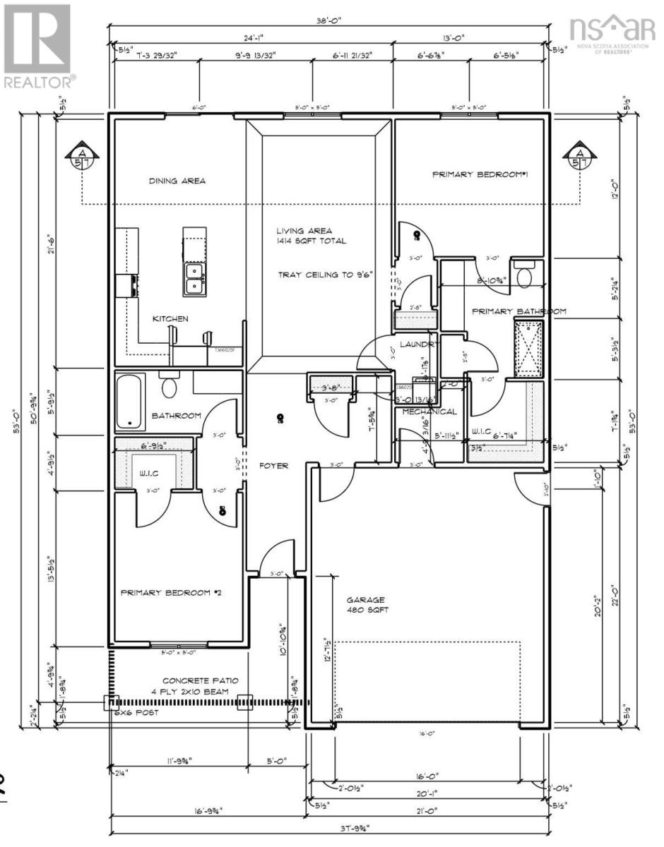
This attractive new build offers excellent curb appeal with a welcoming covered porch and a concrete patio conveniently located off the dining roomperfect for outdoor enjoyment. Designed for efficiency, the home is heated with a ductless heat pump and finished with durable vinyl flooring throughout. Inside, youll find a spacious open-concept layout featuring the kitchen, living room, and dining area, highlighted by a stunning 9'5" tray ceiling with indirect lighting in the living room. The custom kitchen is beautifully appointed with solid countertops and brand-new appliances. The home features two primary bedrooms, each with its own ensuite bath and walk-in closet, along with a separate laundry area for added convenience. (id:47421)
Interested in obtaining the full price history for this property? Contact us!Contact us! Our real estate professionals would be happy to provide a complete listing history with historical sold prices and dates.
Detailed Information
Bedrooms
2
Bathrooms
2
Amenities Nearby
Playground, Public Transit, Place of Worship
Community Features
School Bus
Features
Level
Listing Contract Date
2026-01-16
Location Description
HWY 1 Cambridge to Durno Drive, right on Peterson St
Municipal ID
55556435
Ownership Type
Freehold
Property Type
Single Family
Transaction Type
For sale
Building
Appliances
Range - Electric, Dishwasher, Microwave Range Hood Combo, Refrigerator
Basement Type
None
Construction Style (Attachment)
Detached
Cooling Type
Heat Pump
Exterior Finish
Vinyl
Flooring Type
Laminate, Vinyl
Foundation Type
Concrete Slab
Stories Total
1
Total Finished Area
1400 sqft
Type
House
Utility Water
Drilled Well
Rooms
Room
Level
Dimensions
Notes
Kitchen
Main level
12x11
Dining nook
Main level
11x9.4
Living room
Main level
14x21.4
Primary Bedroom
Main level
13x12
Ensuite (# pieces 2-6)
Main level
8.10x10
Bedroom
Main level
13.3x11.5
Ensuite (# pieces 2-6)
Main level
5.5x11.5
Laundry room
Main level
8x4
Parking Spaces
Name
Spaces
Garage
Attached Garage
Gravel
Land
Total Size
0.1263 acres
Amenities
Playground, Public Transit, Place of Worship
Landscape Features
Landscaped
Sewer
Municipal sewage system
Size of Irregular Land
0.1263
Terms of Use
Please review and agree to the following terms of use to access the listing content:
REALTOR®, REALTORS®, and the REALTOR® logo are certification marks that are owned by REALTOR® Canada Inc. and licensed exclusively to The Canadian Real Estate Association (CREA). These certification marks identify real estate professionals who are members of CREA and who must abide by CREA's By-Laws, Rules, and the REALTOR® Code. The MLS® trademark and the MLS® logo are owned by CREA and identify the quality of services provided by real estate professionals who are members of CREA;
The information contained on this site is based in whole or in part on information that is provided by members of CREA, who are responsible for its accuracy. CREA reproduces and distributes this information as a service for its members and assumes no responsibility for its accuracy;
This website is operated by a brokerage or salesperson who is a member of CREA;
The listing content on this website is protected by copyright and other laws, and is intended solely for the private, non-commercial use by individuals. Any other reproduction, distribution or use of the content, in whole or in part, is specifically forbidden. The prohibited uses include commercial use, "screen scraping", "database scraping", and any other activity intended to collect, store, reorganize or manipulate data on the pages produced by or displayed on this website.
The information contained on this site is based in whole or in part on information that is provided under copyright by the Toronto Regional Real Estate Board (TRREB) or by members of The Canadian Real Estate Association (CREA), who are responsible for its accuracy. TRREB and CREA reproduce and distribute this information as a service for their members and assume no responsibility for its accuracy. All information displayed is believed to be accurate but is not guaranteed and should be independently verified. No warranties or representations of any kind are made with respect to the accuracy of such information. The information provided herein must only be used by consumers that have a bona fide interest in the purchase, sale, or lease of real estate and may not be used for any commercial purpose or any other purpose.