Charming mobile home in a 55+ community, featuring extensive updates throughout. Incredible double lot with fully fenced garden area. The kitchen boasts new cabinets. Bathroom has a soaker tub, newer laminate flooring, new interior doors, and the electrical have all been upgraded. Two convection wall heaters, vinyl windows and drywalled throughout add comfort and style. Outside, enjoy new siding, 2 storage sheds, reinforced covered deck, exterior doors, roof, and skirting with double-door access, plus updated gutters and downspouts. The home is anchored (insurance necessity)and the water heater is new. Relax on the 12'x24' deck overlooking a spacious double lot with garden beds at the end of a no thru road. A perfect little place to call home, with small pets welcome. (id:47421)
Interested in obtaining the full price history for this property? Contact us!Contact us! Our real estate professionals would be happy to provide a complete listing history with historical sold prices and dates.
Detailed Information
Bedrooms
2
Bathrooms
1
Community Features
Pets Allowed With Restrictions, Age Restrictions
Features
Central location, Private setting
Lease Time
Monthly
Listing Contract Date
2025-11-27
Maintenance Fee Payment Frequency
Monthly
Ownership Type
Leasehold
# of Parking Spaces
2
Property Type
Single Family
Structures
Shed
Transaction Type
For sale
Zoning Description
MHP
Zoning
Residential
Building
Appliances
Refrigerator, Stove, Washer, Dryer
Constructed Date
1974
Cooling Type
None
Heating Fuel
Electric
Heating Type
Baseboard heaters, Other
Total Finished Area
709 sqft
Type
Manufactured Home
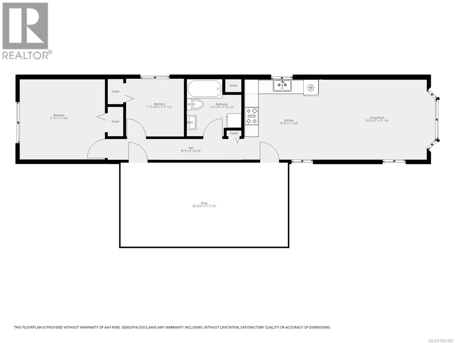
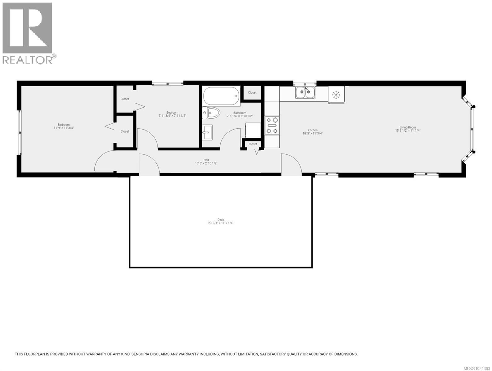
Rooms
Room
Level
Dimensions
Notes
Bathroom
Main level
4-Piece
Primary Bedroom
Main level
Measurements not available x 11 ft
Bedroom
Main level
7'11 x 7'11
Living room
Main level
15'6 x 11'4
Kitchen
Main level
11 ft x Measurements not available
Parking Spaces
Name
Spaces
Stall
Land
Access Type
Road access
Open Houses
Date & Time
Comments
07/03/2026 10:30 AM - 12:00 PM
Terms of Use
Please review and agree to the following terms of use to access the listing content:
REALTOR®, REALTORS®, and the REALTOR® logo are certification marks that are owned by REALTOR® Canada Inc. and licensed exclusively to The Canadian Real Estate Association (CREA). These certification marks identify real estate professionals who are members of CREA and who must abide by CREA's By-Laws, Rules, and the REALTOR® Code. The MLS® trademark and the MLS® logo are owned by CREA and identify the quality of services provided by real estate professionals who are members of CREA;
The information contained on this site is based in whole or in part on information that is provided by members of CREA, who are responsible for its accuracy. CREA reproduces and distributes this information as a service for its members and assumes no responsibility for its accuracy;
This website is operated by a brokerage or salesperson who is a member of CREA;
The listing content on this website is protected by copyright and other laws, and is intended solely for the private, non-commercial use by individuals. Any other reproduction, distribution or use of the content, in whole or in part, is specifically forbidden. The prohibited uses include commercial use, "screen scraping", "database scraping", and any other activity intended to collect, store, reorganize or manipulate data on the pages produced by or displayed on this website.
The information contained on this site is based in whole or in part on information that is provided under copyright by the Toronto Regional Real Estate Board (TRREB) or by members of The Canadian Real Estate Association (CREA), who are responsible for its accuracy. TRREB and CREA reproduce and distribute this information as a service for their members and assume no responsibility for its accuracy. All information displayed is believed to be accurate but is not guaranteed and should be independently verified. No warranties or representations of any kind are made with respect to the accuracy of such information. The information provided herein must only be used by consumers that have a bona fide interest in the purchase, sale, or lease of real estate and may not be used for any commercial purpose or any other purpose.