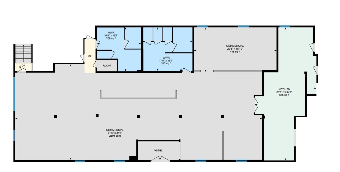
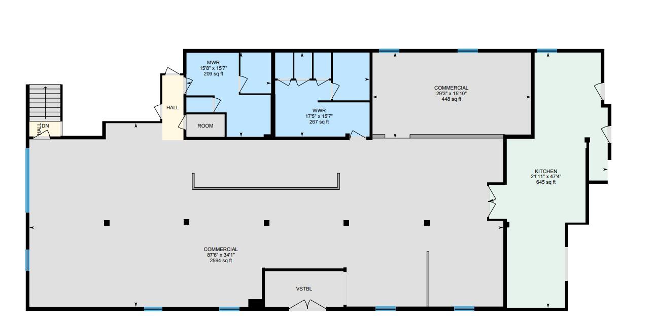
Prime Value-Add Commercial Investment Opportunity – Camrose, AlbertaCAPITALIZATION RATE 7% - 14% WITH ADDITIONAL SPACEAn exceptional value-add commercial investment located in the heart of Camrose, Alberta, featuring a well-maintained Two-storey building anchored by The Marrow Restaurant & Lounge, a highly regarded upscale dining establishment and strong destination tenant.The property is currently leased on a triple-net basis and produces a solid 7% capitalization rate with the main floor tenant in place, offering immediate and stable cash flow.The true upside lies in the development potential of the additional two floors, consisting of approximately 6,000 square feet across the second floor and basement. These levels are well suited for a variety of uses (office, professional services, retail, or complementary hospitality concepts), providing a clear path for a new owner to significantly increase income. For Example:Existing Lease $13 a sq ft x 6000 sq ft = $78,000 base rent divided by $1.1 Million for building = 7% Cap RateDevelop the following spaceTop Floor @ $8.00 sq ft x 6000 sq ft = $48,000Basement @ $6.00 sq ft x 6000 sq ft = $36,000Total potential revenue base rent $162,000 = 14.7% Capitalization rate.Lots of power on site for Data Centers 800 AMP & 600 Volt.With full development and lease-up of the additional space, there is a strong opportunity to substantially increase net operating income and potentially double the capitalization rate, making this an ideal acquisition for investors seeking both income stability and long-term growth.Highlights:Two-storey commercial building with Full Basement Ceiling Height 94Anchor tenant: The Marrow Restaurant & Lounge (upscale, well-established)Triple-net lease with current 7% cap rateSignificant value-add and income-growth potentialPrime Camrose locationA rare opportunity to acquire a stabilized asset with immediate cash flow and exceptional upside. I have attached as well a business plan for a Banquet Facility in the second story. (id:47421)
Interested in obtaining the full price history for this property? Contact us!Contact us! Our real estate professionals would be happy to provide a complete listing history with historical sold prices and dates.
Detailed Information
Listing Contract Date
2025-10-22
# of Parking Spaces
16
Property Type
Retail
Transaction Type
For sale
Building
Constructed Date
1910
Land
Total Size
12445.1878 square feet
Size of Irregular Land
12445.187755315526
Terms of Use
Please review and agree to the following terms of use to access the listing content:
REALTOR®, REALTORS®, and the REALTOR® logo are certification marks that are owned by REALTOR® Canada Inc. and licensed exclusively to The Canadian Real Estate Association (CREA). These certification marks identify real estate professionals who are members of CREA and who must abide by CREA's By-Laws, Rules, and the REALTOR® Code. The MLS® trademark and the MLS® logo are owned by CREA and identify the quality of services provided by real estate professionals who are members of CREA;
The information contained on this site is based in whole or in part on information that is provided by members of CREA, who are responsible for its accuracy. CREA reproduces and distributes this information as a service for its members and assumes no responsibility for its accuracy;
This website is operated by a brokerage or salesperson who is a member of CREA;
The listing content on this website is protected by copyright and other laws, and is intended solely for the private, non-commercial use by individuals. Any other reproduction, distribution or use of the content, in whole or in part, is specifically forbidden. The prohibited uses include commercial use, "screen scraping", "database scraping", and any other activity intended to collect, store, reorganize or manipulate data on the pages produced by or displayed on this website.
The information contained on this site is based in whole or in part on information that is provided under copyright by the Toronto Regional Real Estate Board (TRREB) or by members of The Canadian Real Estate Association (CREA), who are responsible for its accuracy. TRREB and CREA reproduce and distribute this information as a service for their members and assume no responsibility for its accuracy. All information displayed is believed to be accurate but is not guaranteed and should be independently verified. No warranties or representations of any kind are made with respect to the accuracy of such information. The information provided herein must only be used by consumers that have a bona fide interest in the purchase, sale, or lease of real estate and may not be used for any commercial purpose or any other purpose.