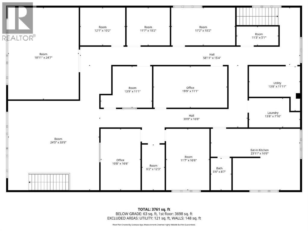
Available Immediately. Large, second floor multi-purpose space for lease. Suitable for small business, professional services, and retail. $2300 per month plus power. Gas & water included. Designed to combine commercial/workspace and residential functions within the same unit. New durable vinyl plank flooring throughout gives the space both a modern and comfortable feel. There is public access from street with employee parking and second entrance from the rear. This ideally located space within the downtown of Camrose offers many work space options. There are 2 large front spaces with expansive windows suitable for reception, show spaces, or open work areas. 7 large multi function office spaces can easily be used as meeting rooms, private offices, or service spaces. Additionally there are 2 storage rooms, a full bath with shower, kitchen, laundry room, and continuous hall to easily connect all spaces. (id:47421)
Interested in obtaining the full price history for this property? Contact us!Contact us! Our real estate professionals would be happy to provide a complete listing history with historical sold prices and dates.
Detailed Information
Lease Time
Monthly
Listing Contract Date
2025-11-28
Plan
RN28C
Property Type
Other
Transaction Type
For rent
Zoning Description
C1
Building
Construction Material
Poured concrete, Steel frame
Exterior Finish
Concrete
Size (Exterior)
3761 square feet
Total Finished Area
3761 sqft
Type
Commercial Mix
Land
Total Size
Unknown
Terms of Use
Please review and agree to the following terms of use to access the listing content:
REALTOR®, REALTORS®, and the REALTOR® logo are certification marks that are owned by REALTOR® Canada Inc. and licensed exclusively to The Canadian Real Estate Association (CREA). These certification marks identify real estate professionals who are members of CREA and who must abide by CREA's By-Laws, Rules, and the REALTOR® Code. The MLS® trademark and the MLS® logo are owned by CREA and identify the quality of services provided by real estate professionals who are members of CREA;
The information contained on this site is based in whole or in part on information that is provided by members of CREA, who are responsible for its accuracy. CREA reproduces and distributes this information as a service for its members and assumes no responsibility for its accuracy;
This website is operated by a brokerage or salesperson who is a member of CREA;
The listing content on this website is protected by copyright and other laws, and is intended solely for the private, non-commercial use by individuals. Any other reproduction, distribution or use of the content, in whole or in part, is specifically forbidden. The prohibited uses include commercial use, "screen scraping", "database scraping", and any other activity intended to collect, store, reorganize or manipulate data on the pages produced by or displayed on this website.
The information contained on this site is based in whole or in part on information that is provided under copyright by the Toronto Regional Real Estate Board (TRREB) or by members of The Canadian Real Estate Association (CREA), who are responsible for its accuracy. TRREB and CREA reproduce and distribute this information as a service for their members and assume no responsibility for its accuracy. All information displayed is believed to be accurate but is not guaranteed and should be independently verified. No warranties or representations of any kind are made with respect to the accuracy of such information. The information provided herein must only be used by consumers that have a bona fide interest in the purchase, sale, or lease of real estate and may not be used for any commercial purpose or any other purpose.