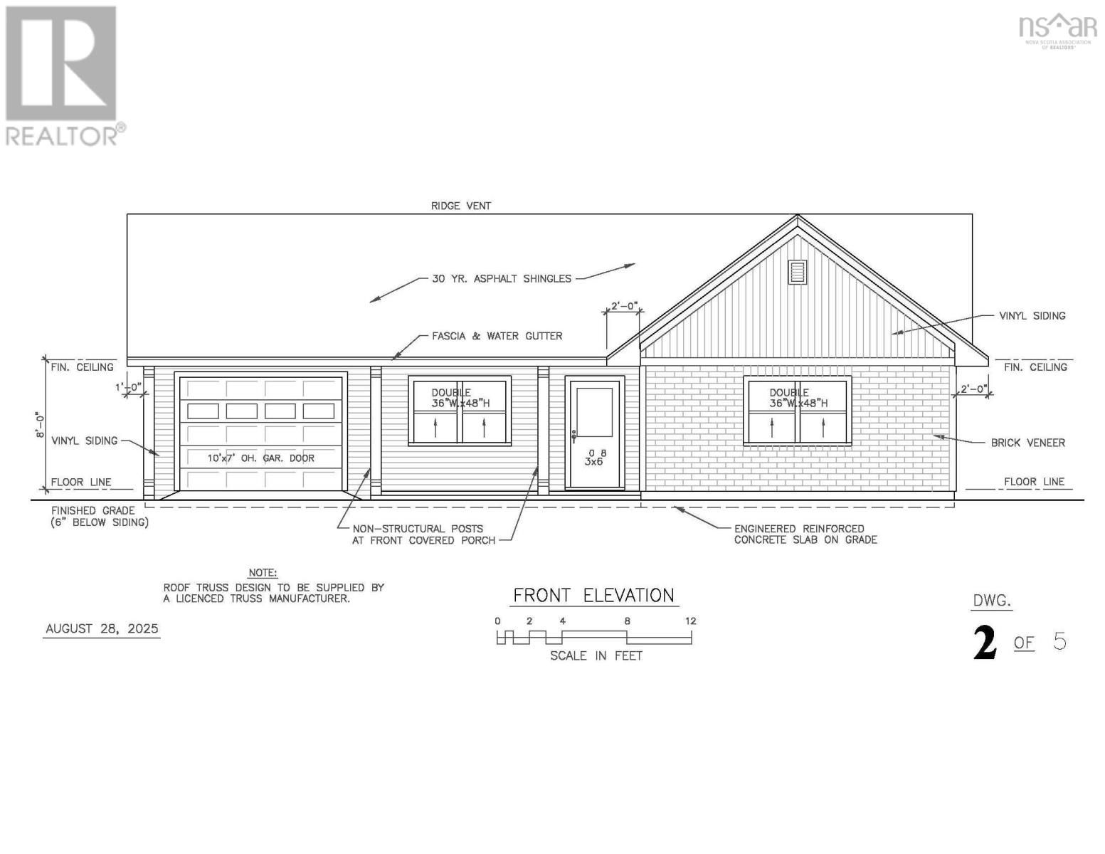
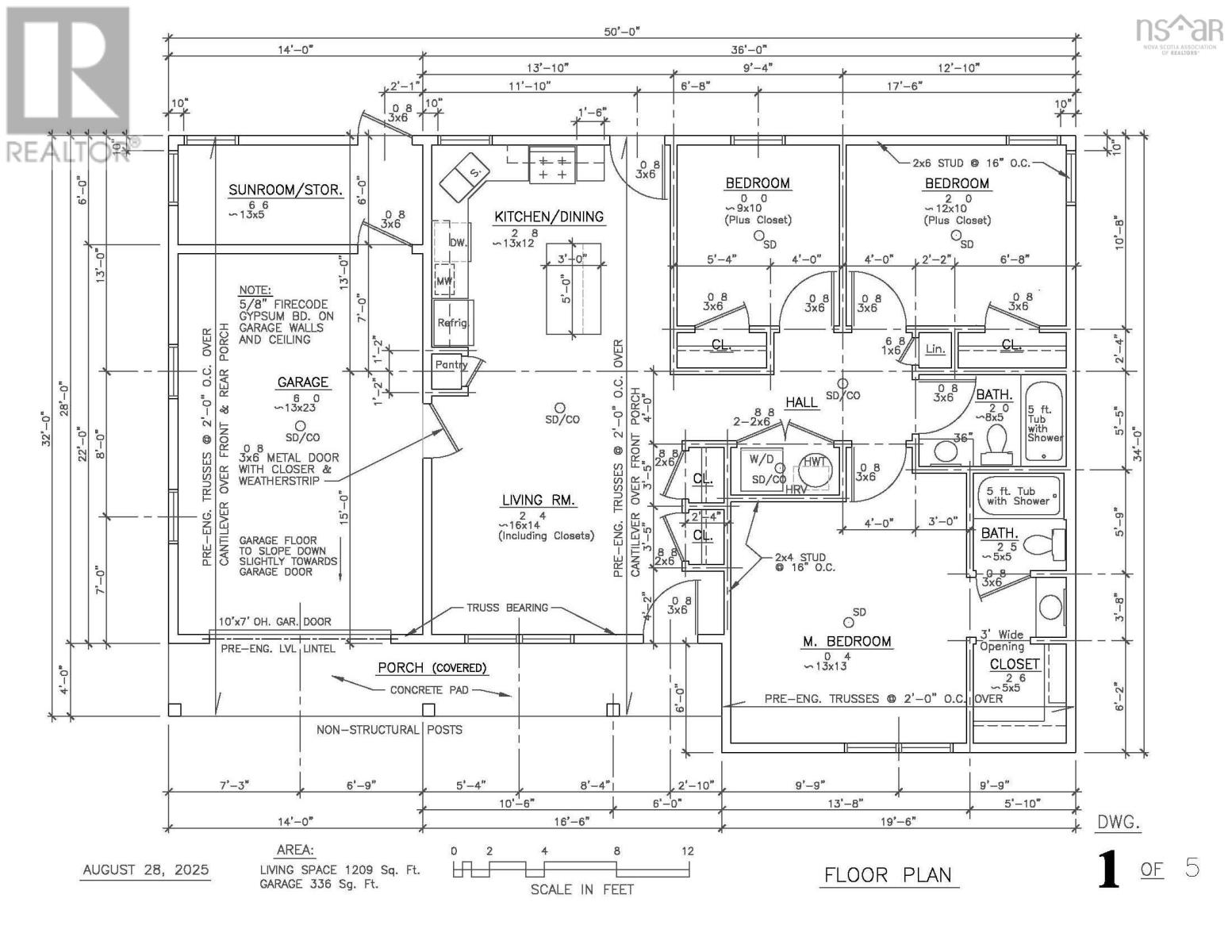
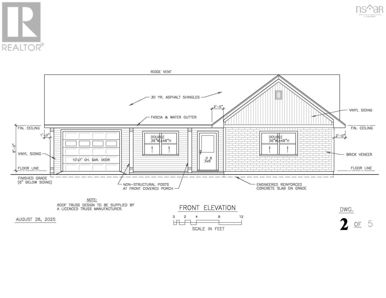
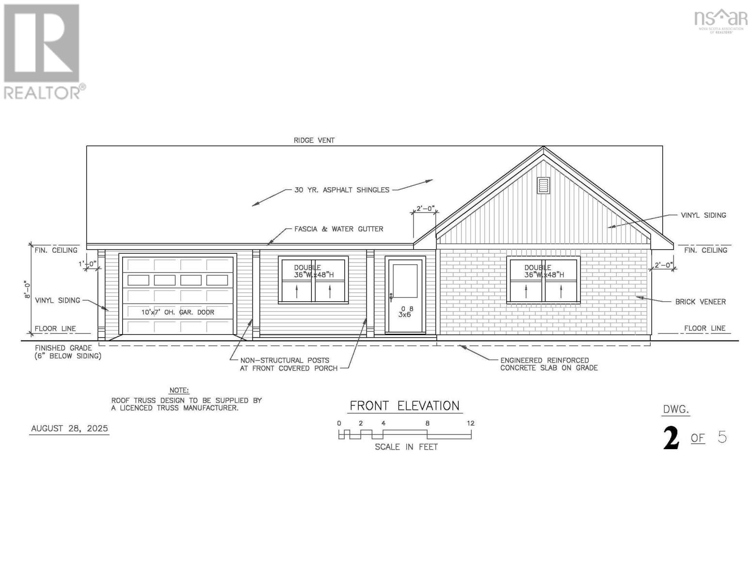
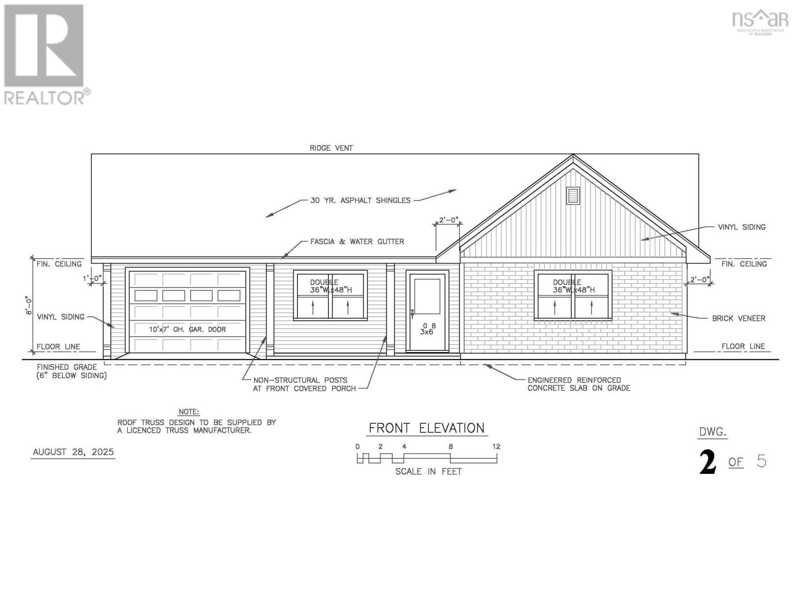
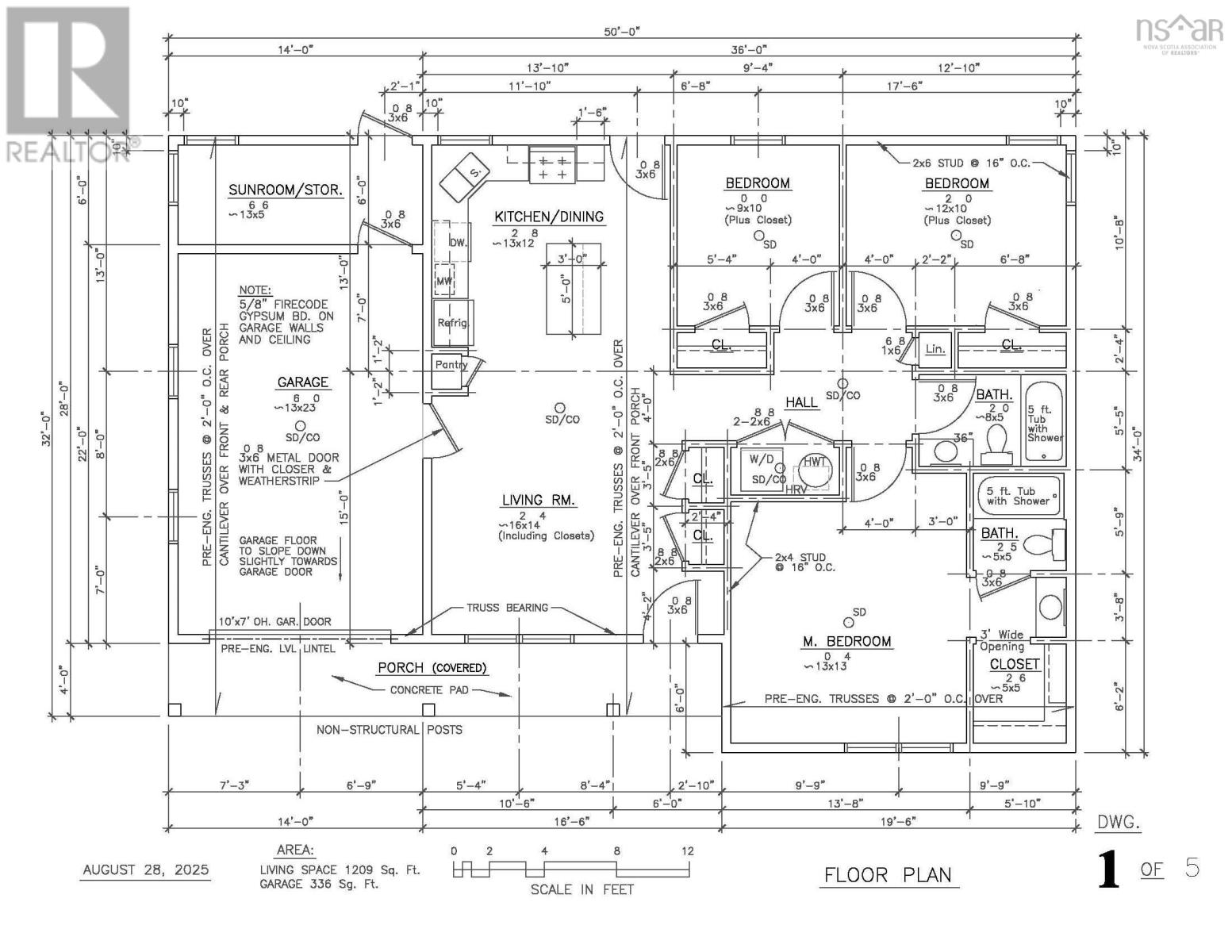
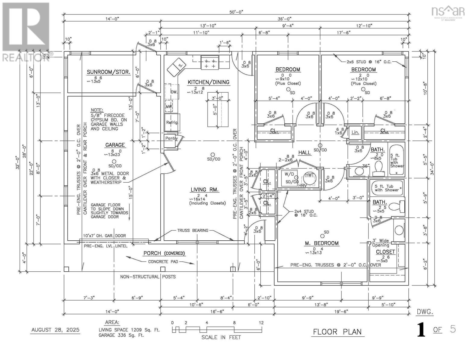
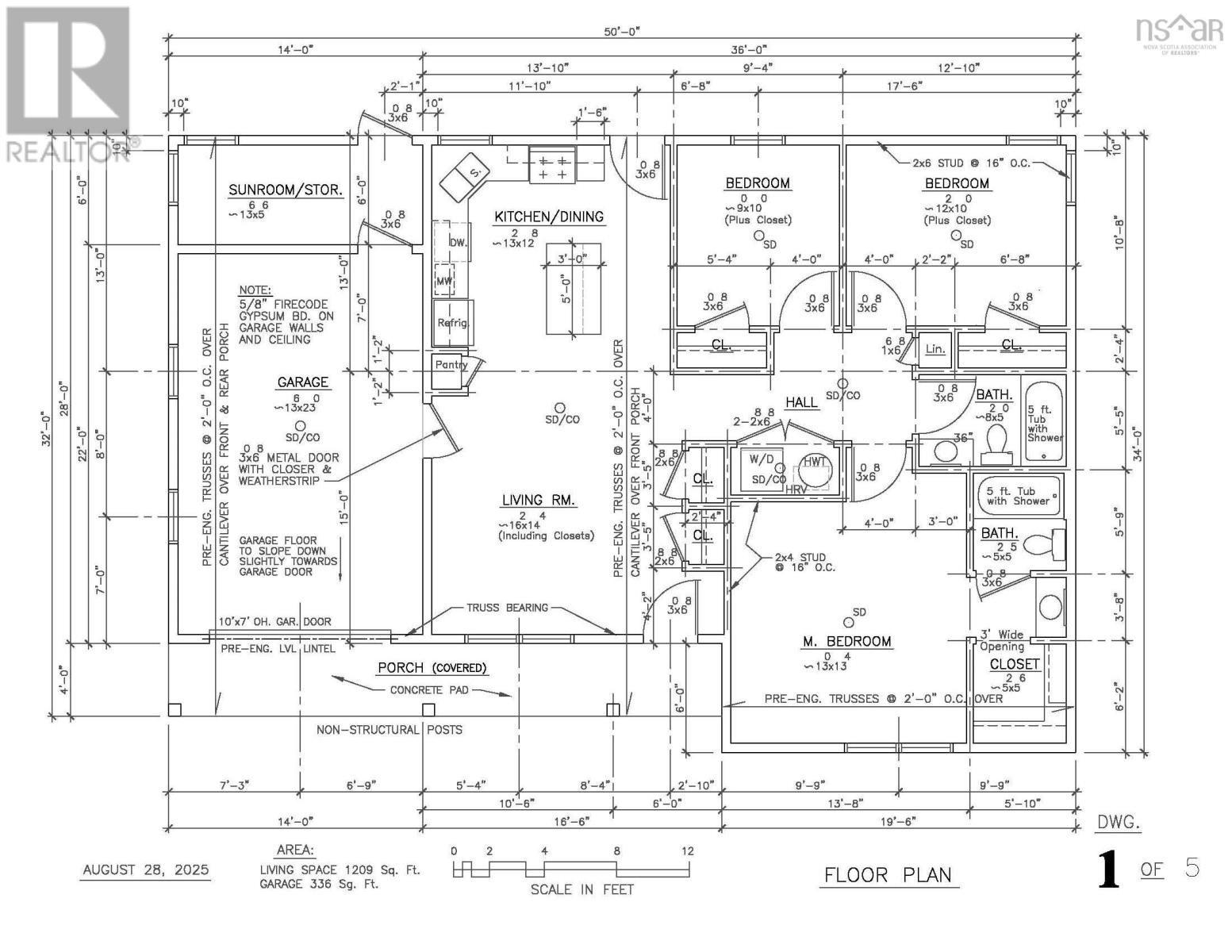
Welcome to this thoughtfully designed, energy-efficient new build in the desirable Canaan Heights neighbourhood. Featuring 3 bedrooms, 2 full baths, and a single attached garage, this home offers modern comfort in a convenient location. Inside, enjoy year-round efficiency with electric baseboard heating, a ductless Mitsubishi heat pump, and Energy Star rated appliances. Waterproof vinyl plank flooring runs throughout, and the property will be fully landscaped and paved upon completion - ready for you to move in and enjoy. Canaan Heights is an established subdivision in the heart of the Annapolis Valley, known for its stunning views of Cape Blomidon. Families and retirees alike will appreciate the community park, playground, walking trails, basketball court, and picnic areas - prefect for enjoying the outdoors. With quick highway access and just minutes to shopping, recreation, and essential services, this home provides the ideal balance of tranquility and convenience. (id:47421)
Interested in obtaining the full price history for this property? Contact us!Contact us! Our real estate professionals would be happy to provide a complete listing history with historical sold prices and dates.
Detailed Information
Bedrooms
3
Bathrooms
2
Amenities Nearby
Playground, Shopping
Community Features
School Bus
Listing Contract Date
2025-09-19
Location Description
Hwy 101 take Exit 12, south on New Canaan Road, left into Canaan Heights subdivision
Please review and agree to the following terms of use to access the listing content:
REALTOR®, REALTORS®, and the REALTOR® logo are certification marks that are owned by REALTOR® Canada Inc. and licensed exclusively to The Canadian Real Estate Association (CREA). These certification marks identify real estate professionals who are members of CREA and who must abide by CREA's By-Laws, Rules, and the REALTOR® Code. The MLS® trademark and the MLS® logo are owned by CREA and identify the quality of services provided by real estate professionals who are members of CREA;
The information contained on this site is based in whole or in part on information that is provided by members of CREA, who are responsible for its accuracy. CREA reproduces and distributes this information as a service for its members and assumes no responsibility for its accuracy;
This website is operated by a brokerage or salesperson who is a member of CREA;
The listing content on this website is protected by copyright and other laws, and is intended solely for the private, non-commercial use by individuals. Any other reproduction, distribution or use of the content, in whole or in part, is specifically forbidden. The prohibited uses include commercial use, "screen scraping", "database scraping", and any other activity intended to collect, store, reorganize or manipulate data on the pages produced by or displayed on this website.
The information contained on this site is based in whole or in part on information that is provided under copyright by the Toronto Regional Real Estate Board (TRREB) or by members of The Canadian Real Estate Association (CREA), who are responsible for its accuracy. TRREB and CREA reproduce and distribute this information as a service for their members and assume no responsibility for its accuracy. All information displayed is believed to be accurate but is not guaranteed and should be independently verified. No warranties or representations of any kind are made with respect to the accuracy of such information. The information provided herein must only be used by consumers that have a bona fide interest in the purchase, sale, or lease of real estate and may not be used for any commercial purpose or any other purpose.