Looking to get out of the hustle and bustle? Nestled on 1.26 acres of serene riverfront, this beautifully designed 2,100 sq. ft. custom home with an attached 1,900 sq. ft. workshop, offers a perfect blend of luxury, functionality, and peaceful living. The home features 10 ft ceilings, Fir flooring and trim, 2 bedrooms, 3 bathrooms. The huge island kitchen boasts granite countertops, a large walk in pantry, and 39inch deep countertops, ideal for cooking, entertaining, and storage. The entire home is designed for comfort with an efficient wood stove supplemented by electric forced air floor vents, along with a heated concrete crawl space for added energy efficiency. Exterior features include a custom chicken coup, garden areas and a fully deer fenced perimeter. Low-maintenance metal roof and siding ensure durability and easy upkeep. A 30+ GPM well with a 3-phase constant pressure system and a 3-second hot water delay guarantees reliable water supply and instant hot water, while exterior hot water bibs add convenience for outdoor tasks. The attached workshop offers 14 ft ceilings, a 12 ft bay door, a vented paint room, and a half bathroom making it perfect for a business or hobbies. The detached garage adds extra space for vehicles and storage. A large insulated stamped concrete patio provides a relaxing area to enjoy the summer evenings with potential to expand the interior living area, Don’t miss this rare opportunity! (id:47421)
Interested in obtaining the full price history for this property? Contact us!Contact us! Our real estate professionals would be happy to provide a complete listing history with historical sold prices and dates.
Detailed Information
Bedrooms
2
Bathrooms
3
Features
Central island
Listing Contract Date
2025-08-28
Municipal ID
003-259-013
Ownership Type
Freehold
# of Parking Spaces
5
Property Type
Single Family
Storage
Storage Shed
Transaction Type
For sale
Waterfront Type
Waterfront on river
Building
Appliances
Refrigerator, Dishwasher, Range - Gas, Washer & Dryer
Architectural Style
Ranch
Constructed Date
2009
Construction Style (Attachment)
Detached
Exterior Finish
Metal, Stone
Fireplace Fuel
Wood
Fireplace Present
Yes
# of Fireplaces
1
Fireplace Type
Conventional
Flooring Type
Hardwood
# of Half Bathrooms
1
Heating Fuel
Electric, Wood
Heating Type
In Floor Heating, Stove
Roof Material
Metal
Roof Style
Unknown
Stories Total
1
Type
House
Utility Water
Well
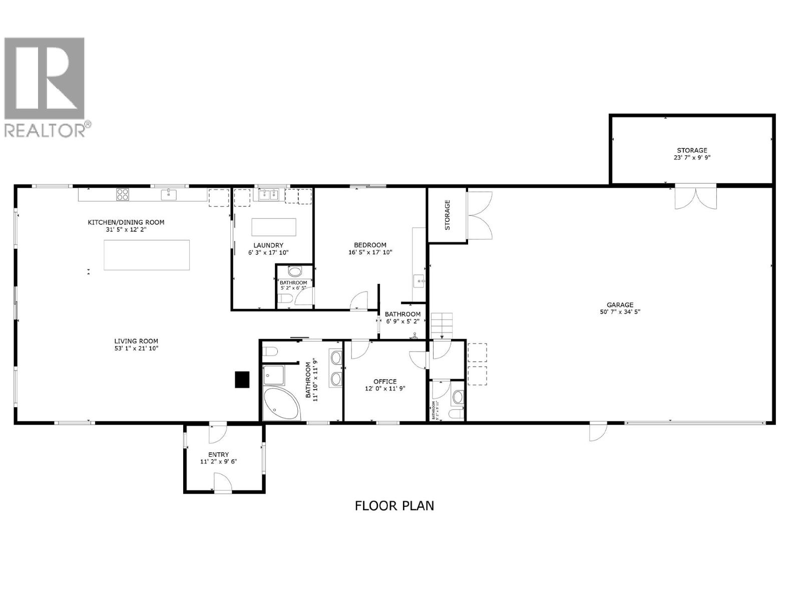
Rooms
Room
Level
Dimensions
Notes
Partial bathroom
Main level
Measurements not available
Other
Main level
23'7'' x 9'9''
Workshop
Main level
50'7'' x 34'5''
Pantry
Main level
6'3'' x 17'10''
Bedroom
Main level
12' x 11'9''
Full ensuite bathroom
Main level
Measurements not available
Full bathroom
Main level
Measurements not available
Foyer
Main level
11'2'' x 9'6''
Primary Bedroom
Main level
16'5'' x 17'10''
Living room
Main level
53'1'' x 21'10''
Kitchen
Main level
31'5'' x 12'2''
Parking Spaces
Name
Spaces
See Remarks
Additional Parking
Attached Garage
1
Detached Garage
1
Heated Garage
Oversize
RV
1
Land
Total Size
1.26 acres
Acreage
Yes
Fence Type
Fence
Sewer
Septic tank
Size of Irregular Land
1.26
Terms of Use
Please review and agree to the following terms of use to access the listing content:
REALTOR®, REALTORS®, and the REALTOR® logo are certification marks that are owned by REALTOR® Canada Inc. and licensed exclusively to The Canadian Real Estate Association (CREA). These certification marks identify real estate professionals who are members of CREA and who must abide by CREA's By-Laws, Rules, and the REALTOR® Code. The MLS® trademark and the MLS® logo are owned by CREA and identify the quality of services provided by real estate professionals who are members of CREA;
The information contained on this site is based in whole or in part on information that is provided by members of CREA, who are responsible for its accuracy. CREA reproduces and distributes this information as a service for its members and assumes no responsibility for its accuracy;
This website is operated by a brokerage or salesperson who is a member of CREA;
The listing content on this website is protected by copyright and other laws, and is intended solely for the private, non-commercial use by individuals. Any other reproduction, distribution or use of the content, in whole or in part, is specifically forbidden. The prohibited uses include commercial use, "screen scraping", "database scraping", and any other activity intended to collect, store, reorganize or manipulate data on the pages produced by or displayed on this website.
The information contained on this site is based in whole or in part on information that is provided under copyright by the Toronto Regional Real Estate Board (TRREB) or by members of The Canadian Real Estate Association (CREA), who are responsible for its accuracy. TRREB and CREA reproduce and distribute this information as a service for their members and assume no responsibility for its accuracy. All information displayed is believed to be accurate but is not guaranteed and should be independently verified. No warranties or representations of any kind are made with respect to the accuracy of such information. The information provided herein must only be used by consumers that have a bona fide interest in the purchase, sale, or lease of real estate and may not be used for any commercial purpose or any other purpose.