Discover this charming bungalow in Vittoria, set on 2.5 acres of tranquil rural living! With 3 spacious bedrooms and 2 bathrooms, this meticulously maintained home boasts large rooms and a pride of ownership that shines throughout. Enjoy your own 24x24 workshop, perfect for projects or hobbies. Embrace the best of both worlds—peaceful countryside living with easy access to local attractions. The Home has 200 amp Breakers, and a full Generator, for those days when the power goes out. The generator automatically goes on. Don't miss the opportunity to call this gem yours for just $989,000! (id:47421)
Interested in obtaining the full price history for this property? Contact us!Contact us! Our real estate professionals would be happy to provide a complete listing history with historical sold prices and dates.
Detailed Information
Bedrooms
3
Bathrooms
2
Lot
328 x 0 ft
Amenities Nearby
Place of Worship, Schools
Community Features
School Bus
Equipment
Propane Tank, Water Heater
Features
Crushed stone driveway, Country residential, Sump Pump, Automatic Garage Door Opener
Listing Contract Date
2025-09-23
Location Description
Norfolk County Highway 24 East to the corner of Charlotteville East Quarter Line Road
Ownership Type
Freehold
# of Parking Spaces
17
Property Type
Single Family
Rental Equipment
Propane Tank, Water Heater
Structures
Workshop
Transaction Type
For sale
Zoning Description
A
Building
Appliances
Central Vacuum, Dishwasher, Dryer, Refrigerator, Washer, Window Coverings, Garage door opener
Architectural Style
Bungalow
Basement Development
Partially finished
Basement Type
Full (Partially finished)
Constructed Date
1990
Construction Style (Attachment)
Detached
Cooling Type
Central air conditioning
Exterior Finish
Brick
Fireplace Fuel
Propane
Fireplace Present
Yes
# of Fireplaces
1
Fireplace Type
Other - See remarks
Fixture
Ceiling fans
Foundation Type
Poured Concrete
Heating Type
Forced air, Heat Pump
Stories Total
1
Type
House
Utility Water
Drilled Well
Rooms
Room
Level
Dimensions
Notes
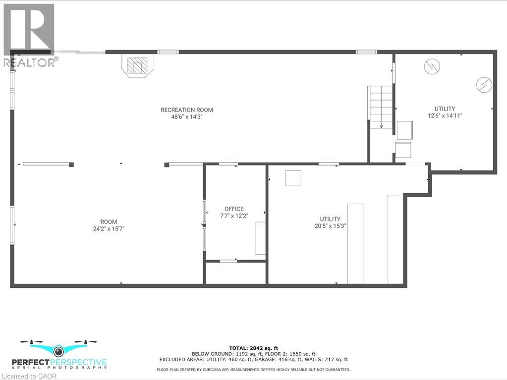
Utility room
Basement
20'5'' x 15'3''
Office
Basement
7'7'' x 12'2''
Recreation room
Basement
48'6'' x 14'3''
Utility room
Basement
12'6'' x 14'11''
Family room
Basement
24'2'' x 15'7''
4pc Bathroom
Main level
10'6'' x 13'10''
Primary Bedroom
Main level
13'0'' x 13'10''
Bedroom
Main level
10'7'' x 11'8''
Bedroom
Main level
10'5'' x 11'9''
Living room
Main level
17'10'' x 11'5''
Foyer
Main level
5'8'' x 9'1''
Dining room
Main level
9'5'' x 14'2''
Kitchen
Main level
11'8'' x 14'2''
3pc Bathroom
Main level
6'2'' x 8'1''
Laundry room
Main level
9'4'' x 8'1''
Parking Spaces
Name
Spaces
Attached Garage
Land
Total Size
2.5 acres
Acreage
Yes
Amenities
Place of Worship, Schools
Sewer
Septic System
Size of Irregular Land
2.5
Terms of Use
Please review and agree to the following terms of use to access the listing content:
REALTOR®, REALTORS®, and the REALTOR® logo are certification marks that are owned by REALTOR® Canada Inc. and licensed exclusively to The Canadian Real Estate Association (CREA). These certification marks identify real estate professionals who are members of CREA and who must abide by CREA's By-Laws, Rules, and the REALTOR® Code. The MLS® trademark and the MLS® logo are owned by CREA and identify the quality of services provided by real estate professionals who are members of CREA;
The information contained on this site is based in whole or in part on information that is provided by members of CREA, who are responsible for its accuracy. CREA reproduces and distributes this information as a service for its members and assumes no responsibility for its accuracy;
This website is operated by a brokerage or salesperson who is a member of CREA;
The listing content on this website is protected by copyright and other laws, and is intended solely for the private, non-commercial use by individuals. Any other reproduction, distribution or use of the content, in whole or in part, is specifically forbidden. The prohibited uses include commercial use, "screen scraping", "database scraping", and any other activity intended to collect, store, reorganize or manipulate data on the pages produced by or displayed on this website.
The information contained on this site is based in whole or in part on information that is provided under copyright by the Toronto Regional Real Estate Board (TRREB) or by members of The Canadian Real Estate Association (CREA), who are responsible for its accuracy. TRREB and CREA reproduce and distribute this information as a service for their members and assume no responsibility for its accuracy. All information displayed is believed to be accurate but is not guaranteed and should be independently verified. No warranties or representations of any kind are made with respect to the accuracy of such information. The information provided herein must only be used by consumers that have a bona fide interest in the purchase, sale, or lease of real estate and may not be used for any commercial purpose or any other purpose.