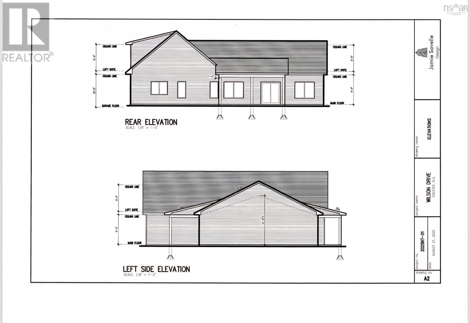
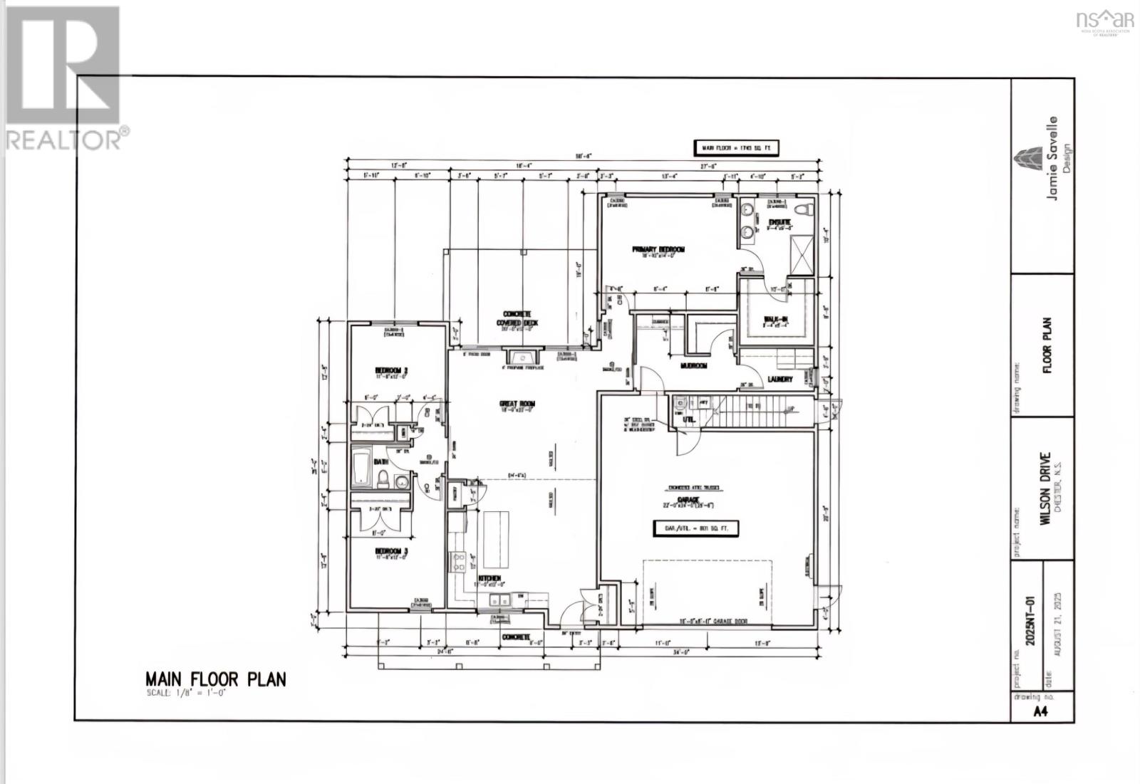
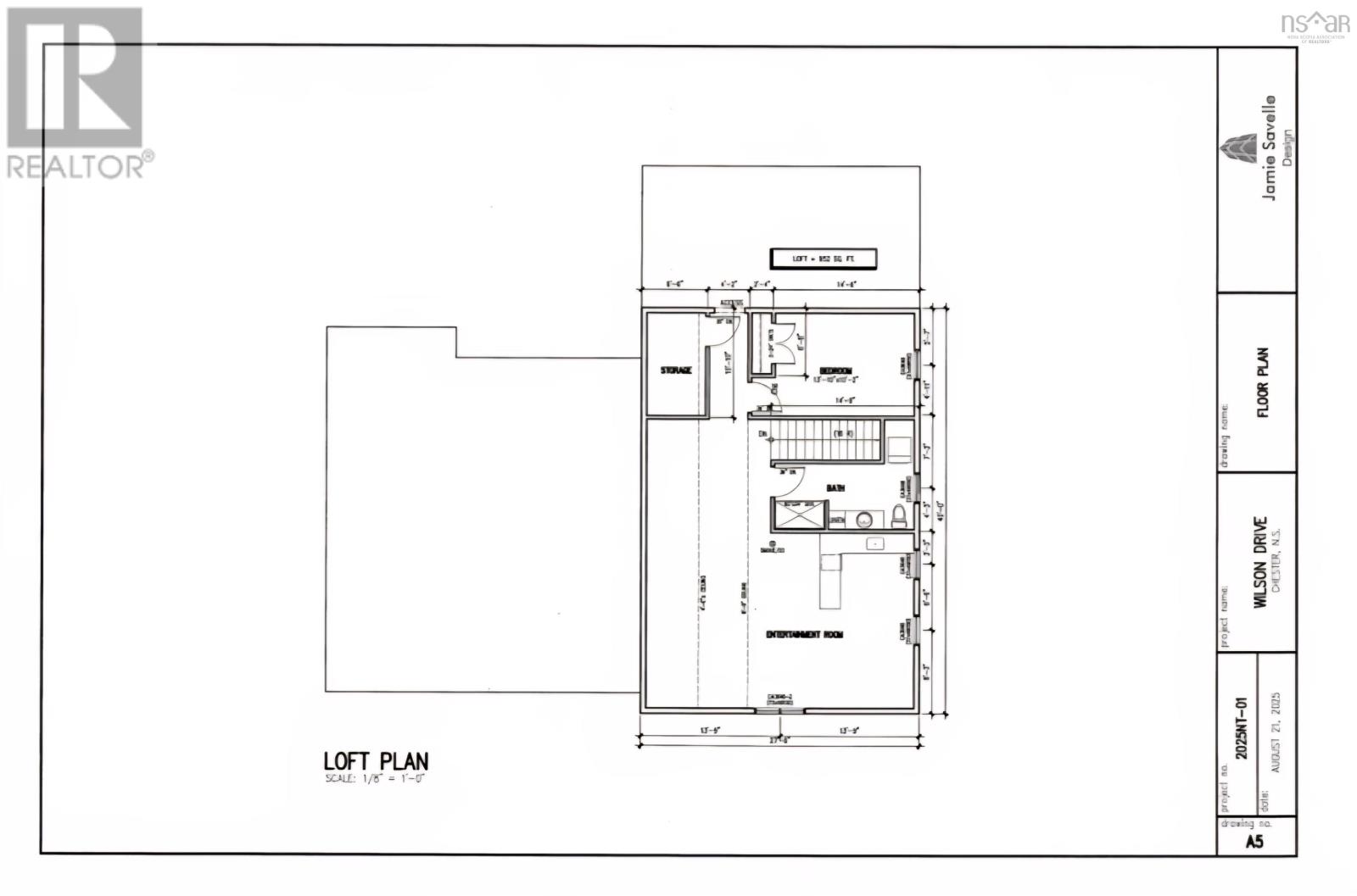
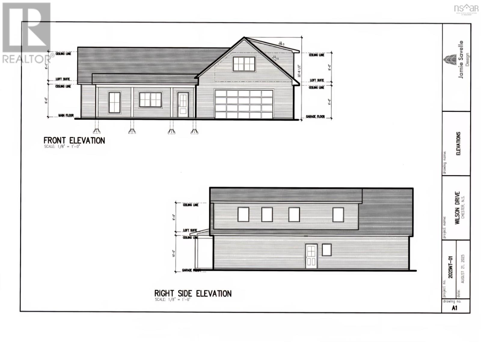
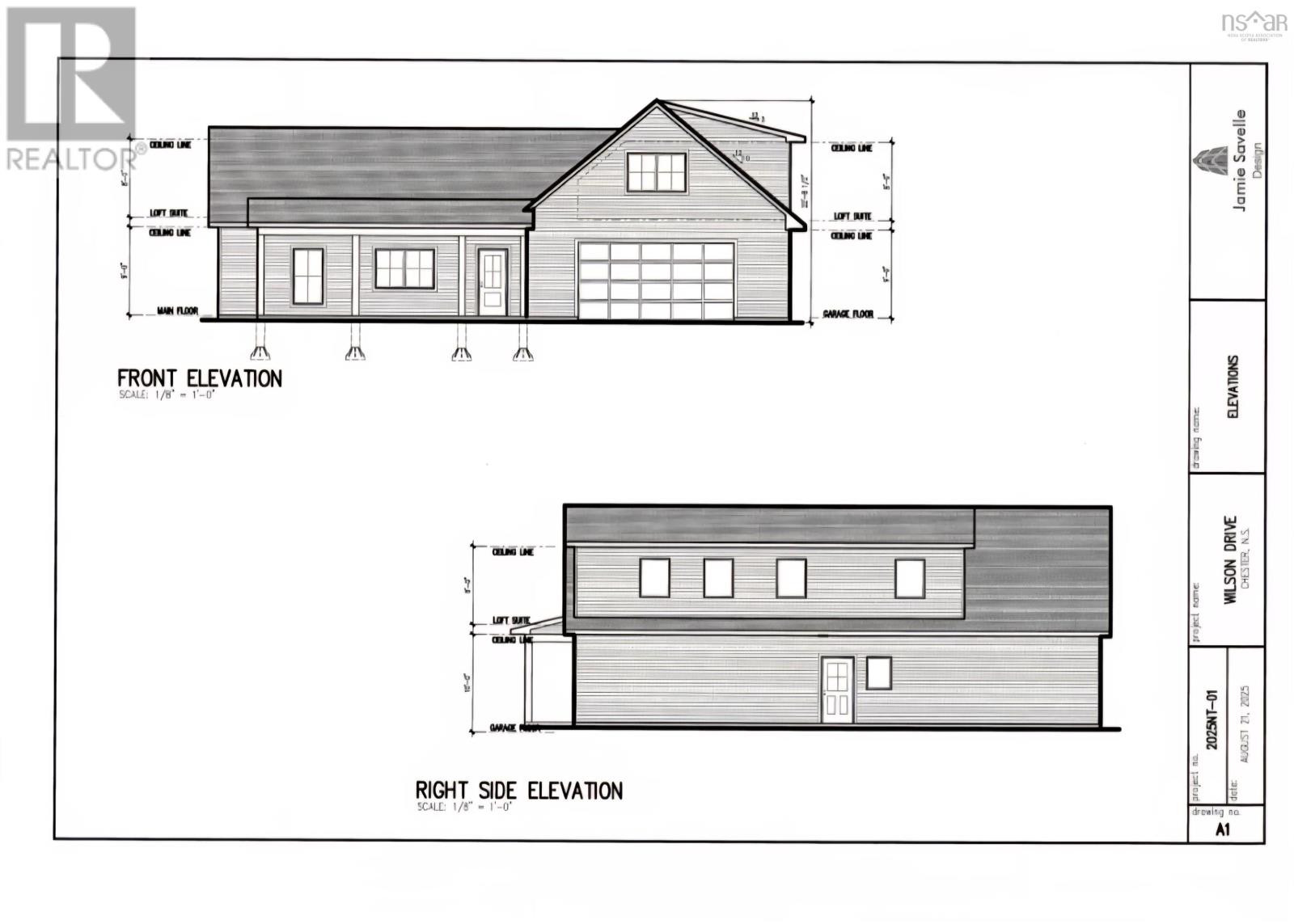
Looking for a brand new home in Chester with added flexibility and income potential? This property offers two fully self-contained living spaces under one roof. The main level features a thoughtfully designed layout with a spacious kitchen and large island, a bright great room with cozy fireplace, and a primary bedroom complete with walk-in closet and ensuite bath. Two additional bedrooms, a full bath, dedicated office, mudroom, and laundry complete this level, ideal for families or those needing extra space to work from home. Above the garage,with separate entrance youll find a fully self-contained one-bedroom apartment, complete with its own kitchen, living area, full bathroom, and private bedroomperfect for extended family, guests, or rental income. Additional features include in-floor radiant heating and a double garage. Located on Wilson Drive, this home offers the best of Chester livingjust minutes to the golf course and a short walk to local amenities. (id:47421)
Interested in obtaining the full price history for this property? Contact us!Contact us! Our real estate professionals would be happy to provide a complete listing history with historical sold prices and dates.
Detailed Information
Bedrooms
4
Bathrooms
3
Equipment
Propane Tank
Listing Contract Date
2025-12-23
Location Description
Heading West to Chester on Hwy 103 to Hwy 3, left onto Duke St., left onto Pig Loop Rd., right onto Chandler Rd., right onto Wilson Dr.
Municipal ID
60092467
Ownership Type
Freehold
Property Type
Single Family
Rental Equipment
Propane Tank
Transaction Type
For sale
Building
Architectural Style
Bungalow
Basement Type
None
Construction Style (Attachment)
Detached
Exterior Finish
Wood siding
Flooring Type
Vinyl Plank
Foundation Type
Poured Concrete
Stories Total
1
Total Finished Area
2697 sqft
Type
House
Utility Water
Drilled Well
Rooms
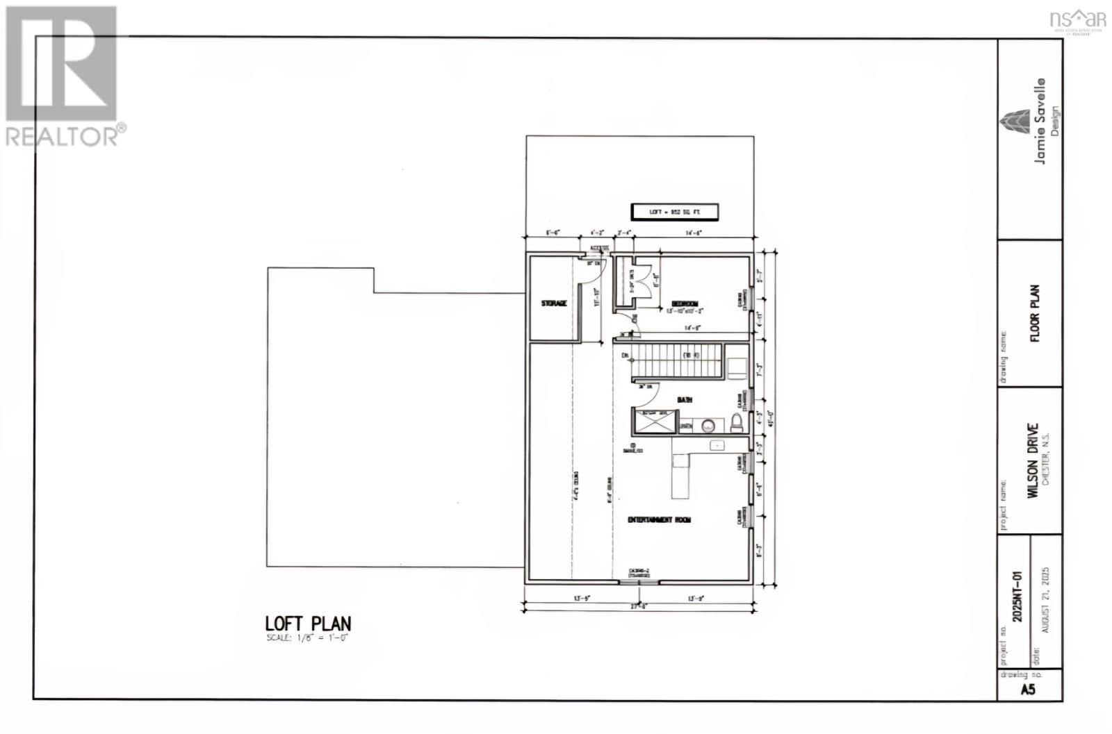
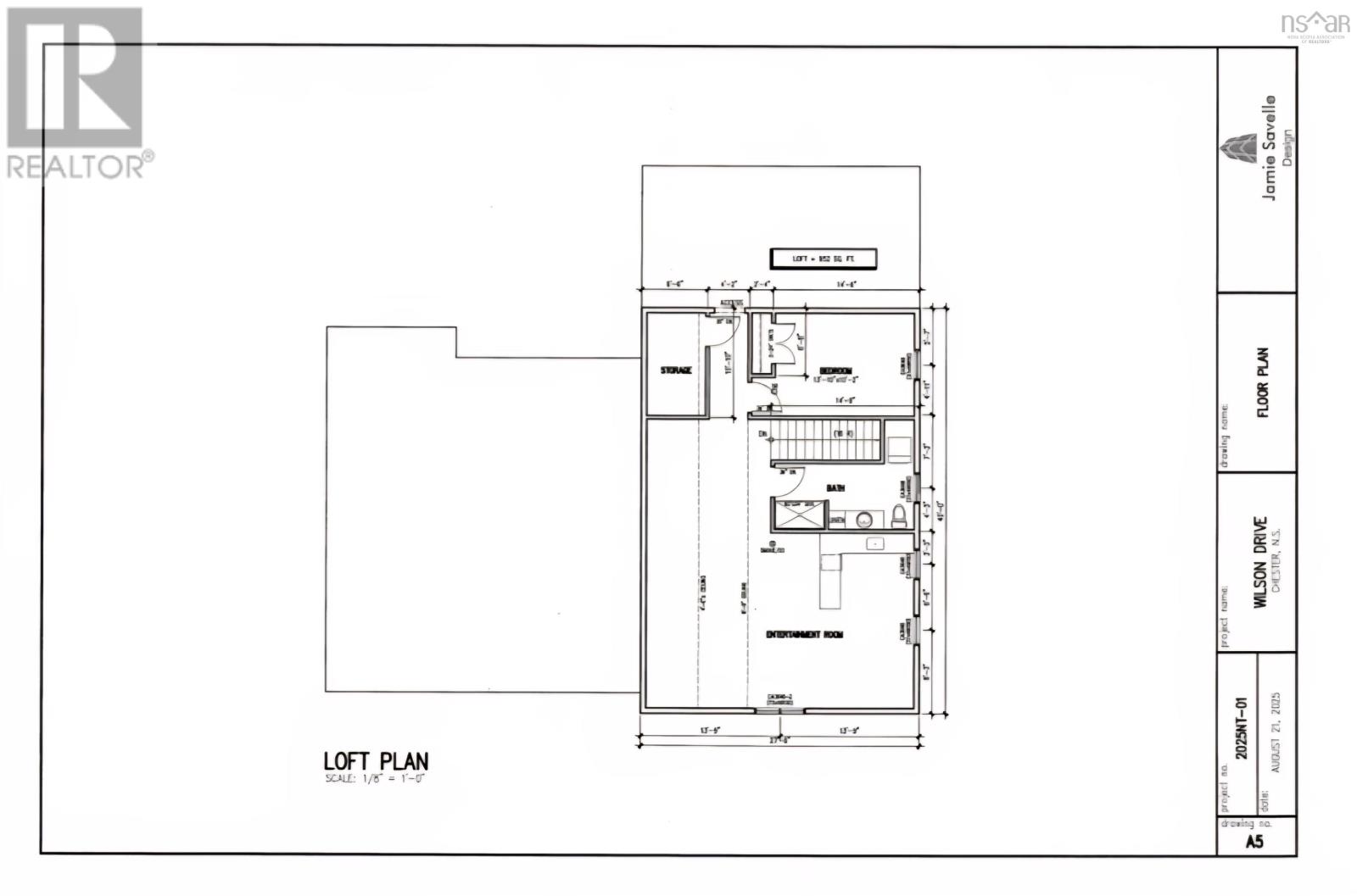
Room
Level
Dimensions
Notes
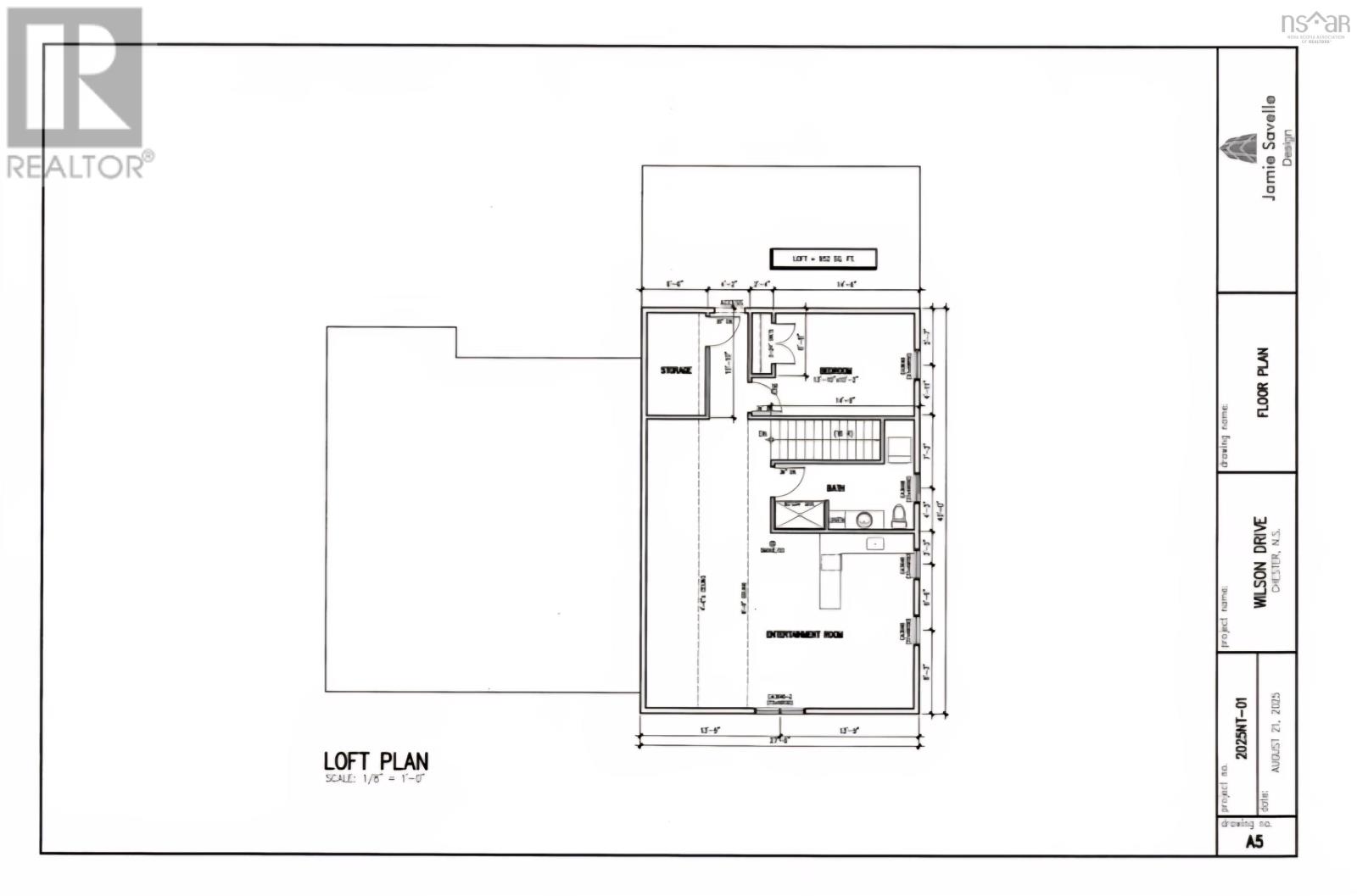
Great room
Second level
18. 2 x 15
Bedroom
Second level
15. x 10. 6
Bath (# pieces 1-6)
Second level
14. x 11. 6 less jog
Storage
Second level
10. 10 x 6. 6
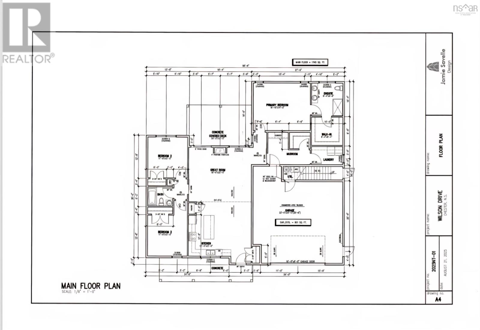
Kitchen
Main level
18. 11 x 15
Great room
Main level
18. 11 x 15
Primary Bedroom
Main level
17. 6 x 11. 4
Bedroom
Main level
15. x x12. 4
Bedroom
Main level
15. x 12. 4
Ensuite (# pieces 2-6)
Main level
10. x 10. 4
Bath (# pieces 1-6)
Main level
6. x 8
Parking Spaces
Name
Spaces
Garage
Paved Yard
Land
Total Size
0.7732 acres
Landscape Features
Landscaped
Sewer
Septic System
Size of Irregular Land
0.7732
Terms of Use
Please review and agree to the following terms of use to access the listing content:
REALTOR®, REALTORS®, and the REALTOR® logo are certification marks that are owned by REALTOR® Canada Inc. and licensed exclusively to The Canadian Real Estate Association (CREA). These certification marks identify real estate professionals who are members of CREA and who must abide by CREA's By-Laws, Rules, and the REALTOR® Code. The MLS® trademark and the MLS® logo are owned by CREA and identify the quality of services provided by real estate professionals who are members of CREA;
The information contained on this site is based in whole or in part on information that is provided by members of CREA, who are responsible for its accuracy. CREA reproduces and distributes this information as a service for its members and assumes no responsibility for its accuracy;
This website is operated by a brokerage or salesperson who is a member of CREA;
The listing content on this website is protected by copyright and other laws, and is intended solely for the private, non-commercial use by individuals. Any other reproduction, distribution or use of the content, in whole or in part, is specifically forbidden. The prohibited uses include commercial use, "screen scraping", "database scraping", and any other activity intended to collect, store, reorganize or manipulate data on the pages produced by or displayed on this website.
The information contained on this site is based in whole or in part on information that is provided under copyright by the Toronto Regional Real Estate Board (TRREB) or by members of The Canadian Real Estate Association (CREA), who are responsible for its accuracy. TRREB and CREA reproduce and distribute this information as a service for their members and assume no responsibility for its accuracy. All information displayed is believed to be accurate but is not guaranteed and should be independently verified. No warranties or representations of any kind are made with respect to the accuracy of such information. The information provided herein must only be used by consumers that have a bona fide interest in the purchase, sale, or lease of real estate and may not be used for any commercial purpose or any other purpose.