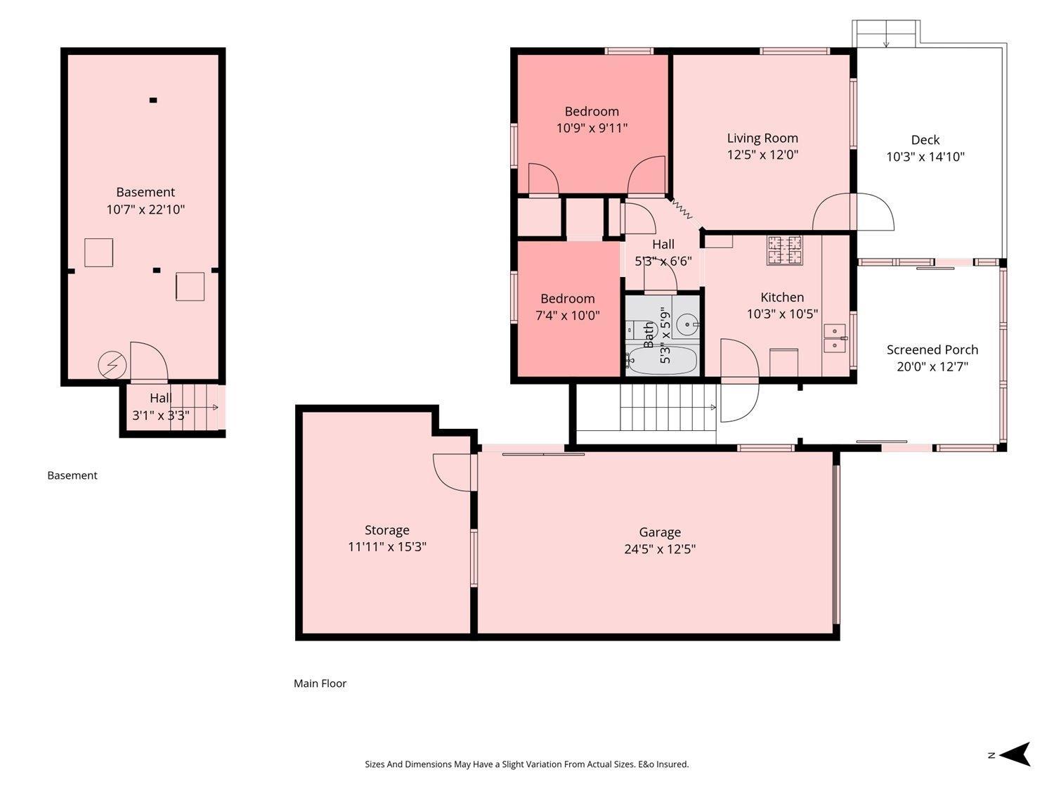
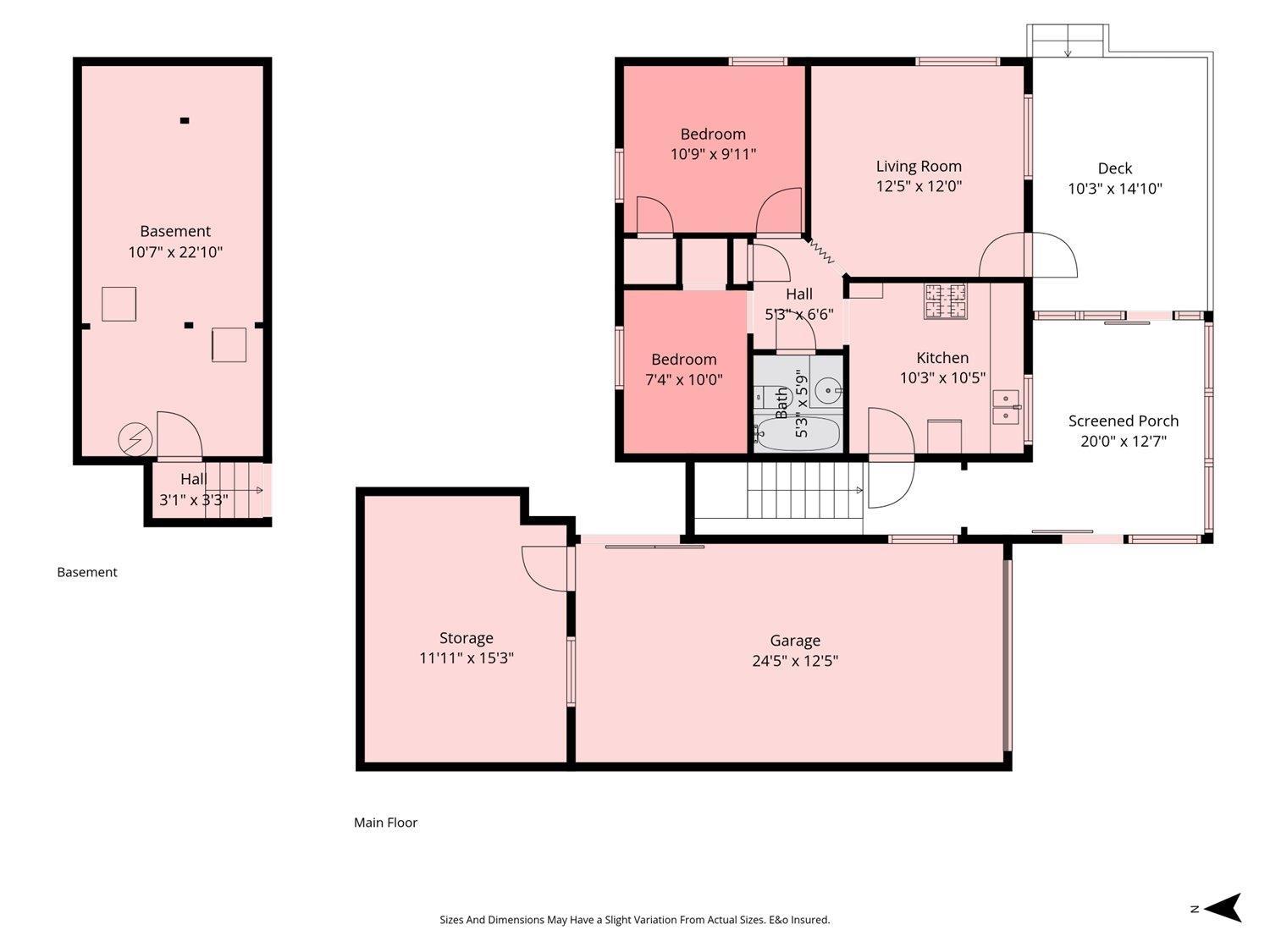
Opportunity to own a Prime large lot with lane access in the heart of Chilliwack. Excellent opportunity for investors, builders, or those looking for future redevelopment potential, blocks from District 1881. This 2-bedroom, 1-bath rancher sits on a 9,271 sq ft corner lot with convenient laneway access and 72 ft frontage. Features include two spacious shops, Storage area and ample parking, making it ideal for holding, renting, or planning your next project in an evolving area. (id:47421)
Interested in obtaining the full price history for this property? Contact us!Contact us! Our real estate professionals would be happy to provide a complete listing history with historical sold prices and dates.
Detailed Information
Bedrooms
2
Bathrooms
1
Lot
72.08 x 122 ft
Listing Contract Date
2026-01-12
Ownership Type
Freehold
Property Type
Single Family
Transaction Type
For sale
Views
Mountain view
Building
Appliances
Dryer, Washer, Range, Refrigerator
Architectural Style
Ranch
Basement Development
Unfinished
Basement Type
Unknown (Unfinished)
Constructed Date
1943
Construction Style (Attachment)
Detached
Heating Type
Forced air
Stories Total
2
Type
House
Rooms
Room
Level
Dimensions
Notes
Laundry room
Basement
10 ft 7 in x 22 ft 10 in
Bedroom 2
Main level
10 ft 9 in x 9 ft 11 in
Bedroom 3
Main level
7 ft 4 in x 10 ft
Living room
Main level
12 ft 5 in x 12 ft
Kitchen
Main level
10 ft 3 in x 10 ft 5 in
Parking Spaces
Name
Spaces
Detached Garage
Garage
1
Land
Total Size
9271 square feet
Size of Irregular Land
9271
Terms of Use
Please review and agree to the following terms of use to access the listing content:
REALTOR®, REALTORS®, and the REALTOR® logo are certification marks that are owned by REALTOR® Canada Inc. and licensed exclusively to The Canadian Real Estate Association (CREA). These certification marks identify real estate professionals who are members of CREA and who must abide by CREA's By-Laws, Rules, and the REALTOR® Code. The MLS® trademark and the MLS® logo are owned by CREA and identify the quality of services provided by real estate professionals who are members of CREA;
The information contained on this site is based in whole or in part on information that is provided by members of CREA, who are responsible for its accuracy. CREA reproduces and distributes this information as a service for its members and assumes no responsibility for its accuracy;
This website is operated by a brokerage or salesperson who is a member of CREA;
The listing content on this website is protected by copyright and other laws, and is intended solely for the private, non-commercial use by individuals. Any other reproduction, distribution or use of the content, in whole or in part, is specifically forbidden. The prohibited uses include commercial use, "screen scraping", "database scraping", and any other activity intended to collect, store, reorganize or manipulate data on the pages produced by or displayed on this website.
The information contained on this site is based in whole or in part on information that is provided under copyright by the Toronto Regional Real Estate Board (TRREB) or by members of The Canadian Real Estate Association (CREA), who are responsible for its accuracy. TRREB and CREA reproduce and distribute this information as a service for their members and assume no responsibility for its accuracy. All information displayed is believed to be accurate but is not guaranteed and should be independently verified. No warranties or representations of any kind are made with respect to the accuracy of such information. The information provided herein must only be used by consumers that have a bona fide interest in the purchase, sale, or lease of real estate and may not be used for any commercial purpose or any other purpose.