Recently updated home featuring panoramic mountain and valley views, plus over 200 sq ft of outdoor space to enjoy them. The kitchen offers stainless steel glass cooktop, OTR microwave, fridge, dishwasher, double sink, and a convenient pantry. Cozy up by the natural gas fireplace with custom mantle. Laminate flooring throughout with carpeted stairs and tile in bathrooms. The primary bedroom includes a private balcony and a fully renovated ensuite with soaker tub and walk-in shower. Added perks include central vacuum, a furnace replaced approx. 3 years ago, and an incredible ~167 sq ft of under-stair storage. * PREC - Personal Real Estate Corporation (id:47421)
Interested in obtaining the full price history for this property? Contact us!Contact us! Our real estate professionals would be happy to provide a complete listing history with historical sold prices and dates.
Detailed Information
Bedrooms
2
Bathrooms
2
Listing Contract Date
2026-01-23
Ownership Type
Strata
Property Type
Single Family
Transaction Type
For sale
Views
Mountain view, Valley view, View (panoramic)
Building
Amenities
Laundry - In Suite
Appliances
Washer, Dryer, Refrigerator, Stove, Dishwasher
Basement Development
Finished
Basement Type
Full (Finished)
Constructed Date
1996
Construction Style (Attachment)
Attached
Fireplace Present
Yes
# of Fireplaces
1
Fixture
Drapes/Window coverings
Heating Fuel
Natural gas
Heating Type
Forced air
Stories Total
3
Type
Row / Townhouse
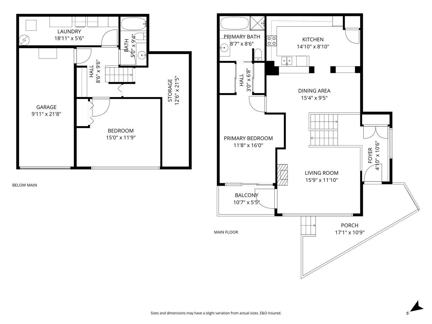
Rooms
Room
Level
Dimensions
Notes
Bedroom 2
Lower level
15 ft x 11 ft 9 in
Laundry room
Lower level
18 ft 11 in x 5 ft 6 in
Living room
Main level
15 ft 9 in x 11 ft 10 in
Dining room
Main level
15 ft 4 in x 9 ft 5 in
Kitchen
Main level
14 ft 10 in x 8 ft 10 in
Primary Bedroom
Main level
11 ft 8 in x 16 ft
Other
Main level
3 ft x 6 ft 8 in
Foyer
Main level
4 ft 10 in x 10 ft 6 in
Parking Spaces
Name
Spaces
Carport
Open
Terms of Use
Please review and agree to the following terms of use to access the listing content:
REALTOR®, REALTORS®, and the REALTOR® logo are certification marks that are owned by REALTOR® Canada Inc. and licensed exclusively to The Canadian Real Estate Association (CREA). These certification marks identify real estate professionals who are members of CREA and who must abide by CREA's By-Laws, Rules, and the REALTOR® Code. The MLS® trademark and the MLS® logo are owned by CREA and identify the quality of services provided by real estate professionals who are members of CREA;
The information contained on this site is based in whole or in part on information that is provided by members of CREA, who are responsible for its accuracy. CREA reproduces and distributes this information as a service for its members and assumes no responsibility for its accuracy;
This website is operated by a brokerage or salesperson who is a member of CREA;
The listing content on this website is protected by copyright and other laws, and is intended solely for the private, non-commercial use by individuals. Any other reproduction, distribution or use of the content, in whole or in part, is specifically forbidden. The prohibited uses include commercial use, "screen scraping", "database scraping", and any other activity intended to collect, store, reorganize or manipulate data on the pages produced by or displayed on this website.
The information contained on this site is based in whole or in part on information that is provided under copyright by the Toronto Regional Real Estate Board (TRREB) or by members of The Canadian Real Estate Association (CREA), who are responsible for its accuracy. TRREB and CREA reproduce and distribute this information as a service for their members and assume no responsibility for its accuracy. All information displayed is believed to be accurate but is not guaranteed and should be independently verified. No warranties or representations of any kind are made with respect to the accuracy of such information. The information provided herein must only be used by consumers that have a bona fide interest in the purchase, sale, or lease of real estate and may not be used for any commercial purpose or any other purpose.