Welcoming 3-Bedroom Hi-Ranch on a Half-Acre Lot. Just a few minutes from Rockland and the 174, this charming property is the ideal place to call home. Set on a spacious half-acre lot, it offers the perfect mix of comfort and practicality for family living. Step inside and you're greeted by a warm and inviting main level with a bright living room, a dining area perfect for family meals, and a kitchen with plenty of cabinets to keep everything organized. The primary bedroom connects to a full 5-piece bathroom, and two additional bedrooms provide space for kids, guests, or even a cozy home office. Downstairs, the large family room is perfect for movie nights or game days, while the second kitchen and additional full bathroom make hosting family or friends a breeze. Part of the garage has been transformed into a comfortable office/study - a perfect spot for work, reading, or creative projects. The remaining 16x26 area still provides plenty of room for parking or storage and could be converted back to a full garage with ease. The outdoor space is made for family fun. Summers can be enjoyed in the above-ground pool, on the large back porch for barbecues, or exploring the yard. At the back of the property, the impressive two-story workshop offers endless possibilities - whether for hobbies, projects, or storing toys both big and small. It features two spacious main-level rooms measuring approximately 20x14 and 26x14, plus a full second story with 220-volt electrical service to power all your tools and equipment. This home is all about making memories cozy inside, fun outside, and conveniently close to everything your family needs. (id:47421)
Interested in obtaining the full price history for this property? Contact us!Contact us! Our real estate professionals would be happy to provide a complete listing history with historical sold prices and dates.
Detailed Information
Bedrooms
3
Bathrooms
3
Listing Contract Date
2025-11-11
Location Description
Hwy 174 to Canaan Road, property is on the corner of Canaan Rd and Baseline Rd
Ownership Type
Freehold
# of Parking Spaces
5
Pool
Above ground pool
Property Type
Single Family
Transaction Type
For sale
Building
Appliances
Dishwasher, Dryer, Stove, Washer, Refrigerator
Architectural Style
Bungalow
Basement Development
Finished
Basement Type
Full (Finished)
Construction Style (Attachment)
Detached
Cooling Type
Wall unit
Exterior Finish
Brick
Foundation Type
Concrete
# of Half Bathrooms
1
Heating Fuel
Electric
Heating Type
Baseboard heaters
Stories Total
1
Type
House
Utility Water
Drilled Well
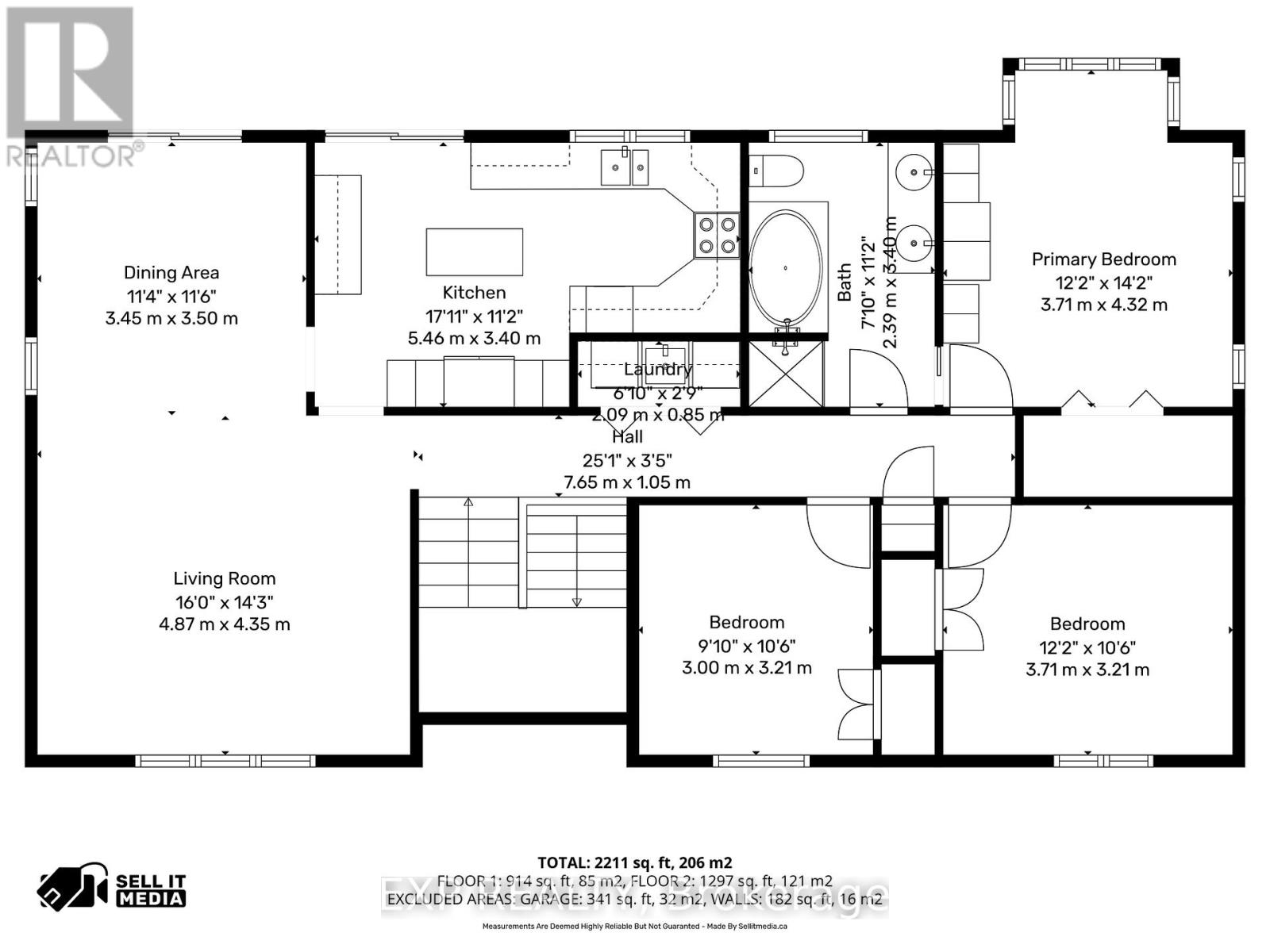
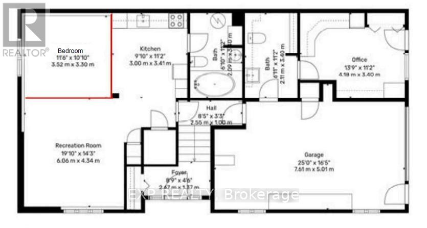
Rooms
Room
Level
Dimensions
Notes
Kitchen
Basement
3 m x 3.41 m
Office
Basement
4.18 m x 3.4 m
Recreational, Games room
Basement
6.06 m x 4.34 m
Dining room
Basement
3.52 m x 3.3 m
Living room
Main level
4.87 m x 4.35 m
Dining room
Main level
3.45 m x 3.5 m
Kitchen
Main level
5.46 m x 3.4 m
Laundry room
Main level
2.09 m x 0.85 m
Primary Bedroom
Main level
3.71 m x 4.32 m
Bedroom 2
Main level
3.71 m x 3.21 m
Bedroom 3
Main level
3 m x 3.21 m
Foyer
In between
2.67 m x 1.37 m
Parking Spaces
Name
Spaces
Garage
Inside Entry
Land
Total Size
153 x 150 Acre | 1/2 - 1.99 acres
Sewer
Septic System
Size of Irregular Land
153 x 150 Acre
Terms of Use
Please review and agree to the following terms of use to access the listing content:
REALTOR®, REALTORS®, and the REALTOR® logo are certification marks that are owned by REALTOR® Canada Inc. and licensed exclusively to The Canadian Real Estate Association (CREA). These certification marks identify real estate professionals who are members of CREA and who must abide by CREA's By-Laws, Rules, and the REALTOR® Code. The MLS® trademark and the MLS® logo are owned by CREA and identify the quality of services provided by real estate professionals who are members of CREA;
The information contained on this site is based in whole or in part on information that is provided by members of CREA, who are responsible for its accuracy. CREA reproduces and distributes this information as a service for its members and assumes no responsibility for its accuracy;
This website is operated by a brokerage or salesperson who is a member of CREA;
The listing content on this website is protected by copyright and other laws, and is intended solely for the private, non-commercial use by individuals. Any other reproduction, distribution or use of the content, in whole or in part, is specifically forbidden. The prohibited uses include commercial use, "screen scraping", "database scraping", and any other activity intended to collect, store, reorganize or manipulate data on the pages produced by or displayed on this website.
The information contained on this site is based in whole or in part on information that is provided under copyright by the Toronto Regional Real Estate Board (TRREB) or by members of The Canadian Real Estate Association (CREA), who are responsible for its accuracy. TRREB and CREA reproduce and distribute this information as a service for their members and assume no responsibility for its accuracy. All information displayed is believed to be accurate but is not guaranteed and should be independently verified. No warranties or representations of any kind are made with respect to the accuracy of such information. The information provided herein must only be used by consumers that have a bona fide interest in the purchase, sale, or lease of real estate and may not be used for any commercial purpose or any other purpose.