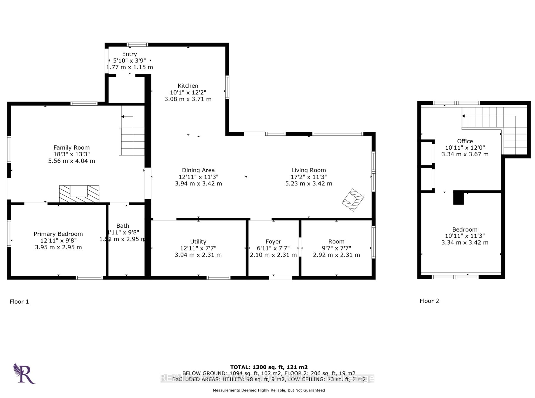
Detached 1 1/2 Storey
Bedrooms: 3Bathrooms: 1Lot: 1,112.44 x 966.55 ft2025 Taxes: $1,358.8
1424 Klondike Park Rd
Clearview, ON
L0M 1S0 | Rural Clearview | Simcoe
| Listed By | RE/MAX HALLMARK CHAY REALTY |
|---|---|
| Data Provided By | Toronto Regional Real Estate Board |
| MLS® Listing Number | S12839872 |
| Last Updated | Mar 03, 2026 |
| Property Type |
Detached
More like this: |
|---|---|
| Legal Description | PT LT 9 CON 12 SUNNIDALE AS IN RO1412201; CLEARVIEW |
| Possession Date | Flexible |
| Taxes (2025) | $1,358.8 |
| Directions/Cross Streets | Klondike Park Rd & Highway 26 |
| Neighbourhood | Rural Clearview |
| Area | Simcoe |
Interested in obtaining the full price history for this property?
Contact us!Contact us! Our real estate professionals would be happy to provide a complete listing history with historical sold prices and dates.
| Fronting On | West |
|---|---|
| Special Designations | Unknown |
| Bedrooms | 3 |
| Bathrooms | 1 |
| Lot | 1,112.44 x 966.55 ft |
| Exterior | Log |
| Air Conditioning | None |
| Family Room | Y |
| Fireplace/Stove | Y |
| Basement | Crawl Space |
| Garage Type | None |
| Parking Spaces | 4 |
| Heat Source | Wood |
| Heat Type | Other |
| Sewers | Septic |
| Water | Dug Well |
The information contained on this site is based in whole or in part on information that is provided under copyright by the Toronto Regional Real Estate Board (TRREB) or by members of The Canadian Real Estate Association (CREA), who are responsible for its accuracy. TRREB and CREA reproduce and distribute this information as a service for their members and assume no responsibility for its accuracy. All information displayed is believed to be accurate but is not guaranteed and should be independently verified. No warranties or representations of any kind are made with respect to the accuracy of such information.
The information provided herein must only be used by consumers that have a bona fide interest in the purchase, sale, or lease of real estate and may not be used for any commercial purpose or any other purpose.
FREE ESTIMATES ARE COMING
Reserve Your Spot To Be Notified
Coming soon to select cities
in North America
(We'll never share your details)










































