Tranquil Riverfront Retreat on the Noisy River Near Creemore, Ontario Escape to the peaceful sounds of flowing water and nature on this enchanting riverfront property nestled along the picturesque Noisy River, just minutes from the charming village of Creemore. This cozy and well-maintained 2-bedroom, 1-bathroom home is perfectly positioned on a gently sloping lot that offers stunning views of the river below and lush, mature landscaping throughout. Whether you're sipping your morning coffee on the deck or enjoying a quiet evening around the firepit, the natural beauty of this property surrounds you. Inside, the home offers a warm and inviting atmosphere with an open living space, functional kitchen, and comfortable bedrooms all designed to make the most of this unique setting. A separate bunkie provides extra space for guests or a quiet retreat, while an additional storage building adds practicality for tools, gear, or hobby supplies. Whether you are looking for a weekend getaway, a full-time residence, or a peaceful artists retreat, this idyllic riverfront property offers unmatched tranquility with easy access to Creemore's boutique shops, cafés, markets, and year-round community events. Your peaceful riverside lifestyle awaits! (id:47421)
Interested in obtaining the full price history for this property? Contact us!Contact us! Our real estate professionals would be happy to provide a complete listing history with historical sold prices and dates.
Cross Streets: County 9 Road and Sideroad 9, Creemore. ** Directions: Take County Rd 9 - West of Creemore to sign.
Ownership Type
Freehold
# of Parking Spaces
6
Property Type
Single Family
Structures
Deck, Outbuilding, Workshop
Transaction Type
For sale
Views
River view, View of water, Direct Water View
Waterfront Type
Waterfront
Waterfront Name
Noisy River
Zoning Description
NE
Building
Age
51 to 99 years
Amenities
Fireplace(s)
Appliances
Water Heater, Dryer, Stove, Washer, Refrigerator
Basement Type
Crawl space
Construction Style (Attachment)
Detached
Cooling Type
None
Exterior Finish
Wood
Fireplace Present
Yes
# of Fireplaces
1
Heating Fuel
Electric
Heating Type
Baseboard heaters
Type
House
Utility Water
Dug Well
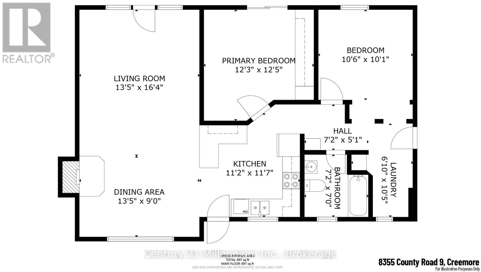
Rooms
Room
Level
Dimensions
Notes
Primary Bedroom
Main level
3.73 m x 3.78 m
Bedroom 2
Main level
3.2 m x 3.07 m
Kitchen
Main level
3.4 m x 3.53 m
Living room
Main level
4.09 m x 4.98 m
Dining room
Main level
4.09 m x 2.74 m
Bathroom
Main level
2.18 m x 2.13 m
Foyer
Main level
2.18 m x 1.55 m
Laundry room
Main level
2.08 m x 3.18 m
Parking Spaces
Name
Spaces
No Garage
Utilities
Type
Description
Cable
Available
Wireless
Available
Electricity Connected
Connected
Land
Total Size
198 x 96.9 FT ; Rectangular | under 1/2 acre
Access Type
Public Road
Amenities
Ski area
Sewer
Septic System
Size of Irregular Land
198 x 96.9 FT ; Rectangular
Surface Water
River/Stream
Terms of Use
Please review and agree to the following terms of use to access the listing content:
REALTOR®, REALTORS®, and the REALTOR® logo are certification marks that are owned by REALTOR® Canada Inc. and licensed exclusively to The Canadian Real Estate Association (CREA). These certification marks identify real estate professionals who are members of CREA and who must abide by CREA's By-Laws, Rules, and the REALTOR® Code. The MLS® trademark and the MLS® logo are owned by CREA and identify the quality of services provided by real estate professionals who are members of CREA;
The information contained on this site is based in whole or in part on information that is provided by members of CREA, who are responsible for its accuracy. CREA reproduces and distributes this information as a service for its members and assumes no responsibility for its accuracy;
This website is operated by a brokerage or salesperson who is a member of CREA;
The listing content on this website is protected by copyright and other laws, and is intended solely for the private, non-commercial use by individuals. Any other reproduction, distribution or use of the content, in whole or in part, is specifically forbidden. The prohibited uses include commercial use, "screen scraping", "database scraping", and any other activity intended to collect, store, reorganize or manipulate data on the pages produced by or displayed on this website.
The information contained on this site is based in whole or in part on information that is provided under copyright by the Toronto Regional Real Estate Board (TRREB) or by members of The Canadian Real Estate Association (CREA), who are responsible for its accuracy. TRREB and CREA reproduce and distribute this information as a service for their members and assume no responsibility for its accuracy. All information displayed is believed to be accurate but is not guaranteed and should be independently verified. No warranties or representations of any kind are made with respect to the accuracy of such information. The information provided herein must only be used by consumers that have a bona fide interest in the purchase, sale, or lease of real estate and may not be used for any commercial purpose or any other purpose.