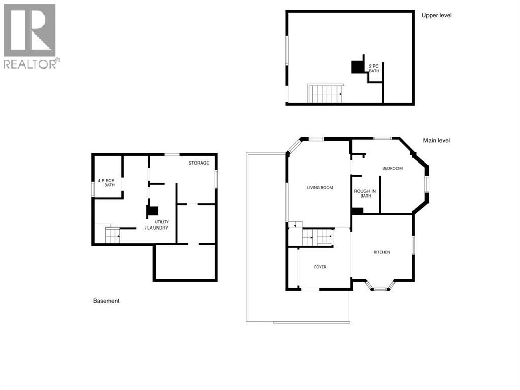
Discover the charm and potential of this two-story home on a spacious 62.5 x 115 lot, complete with a detached one-car garage featuring a concrete floor and alley access. The fully fenced backyard offers privacy and room for outdoor activities or future landscaping projects. Inside, the main floor features a large kitchen with a bay window and a potential bedroom with a roughed-in half bath—just add a sink to complete it. Upstairs, a generous open space with a half bath and balcony access could easily be transformed into a large bedroom or multi-purpose area. The basement provides ample storage and includes a four-piece bathroom. Enjoy your mornings on the front deck, perfect for coffee or taking in the neighbourhood views. With a little TLC, this home offers incredible potential to create your dream space in a walkable and inviting community. A fantastic opportunity for investors or anyone looking to put their personal touch on a home with character and potential. (id:47421)
Interested in obtaining the full price history for this property? Contact us!Contact us! Our real estate professionals would be happy to provide a complete listing history with historical sold prices and dates.
Detailed Information
Bedrooms
2
Bathrooms
2
Lot
19.05 x 35.05 m
Amenities Nearby
Airport, Schools, Shopping
Community Features
Fishing
Features
See remarks, Back lane
Listing Contract Date
2025-11-16
Municipal ID
0015180334
Ownership Type
Freehold
# of Parking Spaces
3
Plan
1589HW
Property Type
Single Family
Structures
Deck, See Remarks
Transaction Type
For sale
Zoning Description
Residential
Building
Appliances
Washer, Refrigerator, Dishwasher, Stove, Dryer
Basement Development
Finished
Basement Type
Partial (Finished)
Constructed Date
1956
Construction Material
Wood frame
Construction Style (Attachment)
Detached
Cooling Type
None
Exterior Finish
Shingles, Vinyl siding, Wood siding
Flooring Type
Carpeted, Laminate, Other, Tile
Foundation Type
Poured Concrete
# of Half Bathrooms
1
Heating Type
Forced air
Stories Total
2
Total Finished Area
1119 sqft
Type
House
Rooms
Room
Level
Dimensions
Notes
2pc Bathroom
Second level
.00 Ft x .00 Ft
Bedroom
Second level
23.75 Ft x 17.33 Ft
4pc Bathroom
Basement
.00 Ft x .00 Ft
Laundry room
Basement
.00 Ft x .00 Ft
Storage
Basement
.00 Ft x .00 Ft
Other
Main level
14.08 Ft x 11.67 Ft
Foyer
Main level
11.33 Ft x 7.17 Ft
Living room
Main level
16.42 Ft x 11.33 Ft
Roughed-In Bathroom
Main level
.00 Ft x .00 Ft
Bedroom
Main level
14.00 Ft x 9.17 Ft
Parking Spaces
Name
Spaces
Detached Garage
1
Land
Total Size
7187.5 square feet
Amenities
Airport, Schools, Shopping
Fence Type
Fence
Size of Irregular Land
7187.50
Terms of Use
Please review and agree to the following terms of use to access the listing content:
REALTOR®, REALTORS®, and the REALTOR® logo are certification marks that are owned by REALTOR® Canada Inc. and licensed exclusively to The Canadian Real Estate Association (CREA). These certification marks identify real estate professionals who are members of CREA and who must abide by CREA's By-Laws, Rules, and the REALTOR® Code. The MLS® trademark and the MLS® logo are owned by CREA and identify the quality of services provided by real estate professionals who are members of CREA;
The information contained on this site is based in whole or in part on information that is provided by members of CREA, who are responsible for its accuracy. CREA reproduces and distributes this information as a service for its members and assumes no responsibility for its accuracy;
This website is operated by a brokerage or salesperson who is a member of CREA;
The listing content on this website is protected by copyright and other laws, and is intended solely for the private, non-commercial use by individuals. Any other reproduction, distribution or use of the content, in whole or in part, is specifically forbidden. The prohibited uses include commercial use, "screen scraping", "database scraping", and any other activity intended to collect, store, reorganize or manipulate data on the pages produced by or displayed on this website.
The information contained on this site is based in whole or in part on information that is provided under copyright by the Toronto Regional Real Estate Board (TRREB) or by members of The Canadian Real Estate Association (CREA), who are responsible for its accuracy. TRREB and CREA reproduce and distribute this information as a service for their members and assume no responsibility for its accuracy. All information displayed is believed to be accurate but is not guaranteed and should be independently verified. No warranties or representations of any kind are made with respect to the accuracy of such information. The information provided herein must only be used by consumers that have a bona fide interest in the purchase, sale, or lease of real estate and may not be used for any commercial purpose or any other purpose.