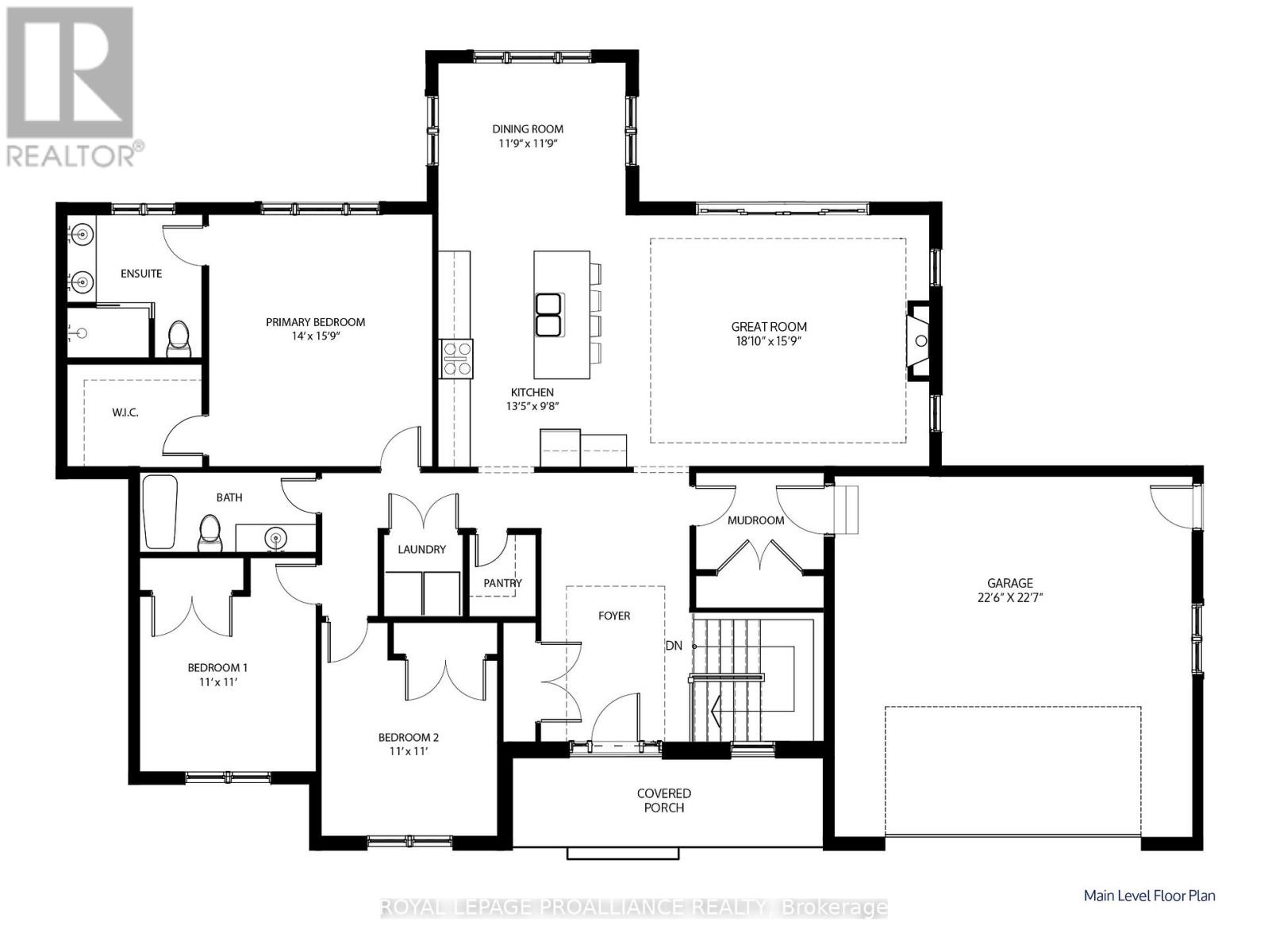
Introducing the MERLIN model, an exceptional 1,936 sq ft bungalow, beautifully crafted by trusted local builder, Fidelity Homes. This home offers an ideal blend of comfort, style, and flexibility. Featuring 3 spacious bedrooms and 2 bathrooms, with an airy open-concept kitchen, dining, and great room complete with a cozy fireplace perfect for everyday living or hosting guests. High-quality finishes throughout, including luxury vinyl plank flooring, designer light fixtures, quartz countertops, and custom cabinetry throughout the kitchen and bathrooms. Thoughtfully designed for functionality and ease, this home includes main floor laundry, a spacious covered front porch, and a generous back deck for outdoor living. Covered by a 7-year Tarion warranty and built with integrity by Fidelity Homes, this property is a true standout. LISTING PRICE REFLECTS EXPANDED HST NEW RESIDENTIAL REBATE FOR ELIGIBLE PURCHASERS. (id:47421)
Interested in obtaining the full price history for this property? Contact us!Contact us! Our real estate professionals would be happy to provide a complete listing history with historical sold prices and dates.
Detailed Information
Bedrooms
3
Bathrooms
2
Lot
212 x 506 ft
Amenities Nearby
Beach, Place of Worship, Schools
Community Features
School Bus
Equipment
Propane Tank
Listing Contract Date
2025-08-22
Location Description
Cross Streets: Little Lake Rd & Trent Valley Rd. ** Directions: County Rd 2 East of Colborne to Ventress Road, Follow toLittle Lake Road.
Ownership Type
Freehold
# of Parking Spaces
4
Property Type
Single Family
Rental Equipment
Propane Tank
Structures
Deck
Transaction Type
For sale
Building
Age
New building
Amenities
Fireplace(s)
Appliances
Garage door opener remote(s), Water Heater, Garage door opener
Architectural Style
Bungalow
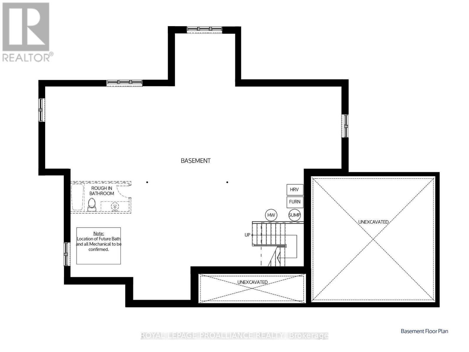
Basement Development
Unfinished
Basement Type
Full (Unfinished)
Construction Style (Attachment)
Detached
Cooling Type
Central air conditioning
Exterior Finish
Vinyl siding, Stone
Fire Protection
Smoke Detectors
Fireplace Present
Yes
# of Fireplaces
1
Flooring Type
Vinyl
Foundation Type
Poured Concrete
Heating Fuel
Propane
Heating Type
Forced air
Stories Total
1
Type
House
Rooms
Room
Level
Dimensions
Notes
Dining room
Main level
3.58 m x 3.58 m
Kitchen
Main level
4.09 m x 2.95 m
Great room
Main level
5.74 m x 4.8 m
Primary Bedroom
Main level
4.27 m x 4.8 m
Bedroom 2
Main level
3.35 m x 3.35 m
Bedroom 3
Main level
3.35 m x 3.35 m
Parking Spaces
Name
Spaces
Attached Garage
Garage
Utilities
Type
Description
Electricity
Installed
Land
Total Size
212 x 506 FT | 2 - 4.99 acres
Acreage
Yes
Amenities
Beach, Place of Worship, Schools
Sewer
Septic System
Size of Irregular Land
212 x 506 FT
Terms of Use
Please review and agree to the following terms of use to access the listing content:
REALTOR®, REALTORS®, and the REALTOR® logo are certification marks that are owned by REALTOR® Canada Inc. and licensed exclusively to The Canadian Real Estate Association (CREA). These certification marks identify real estate professionals who are members of CREA and who must abide by CREA's By-Laws, Rules, and the REALTOR® Code. The MLS® trademark and the MLS® logo are owned by CREA and identify the quality of services provided by real estate professionals who are members of CREA;
The information contained on this site is based in whole or in part on information that is provided by members of CREA, who are responsible for its accuracy. CREA reproduces and distributes this information as a service for its members and assumes no responsibility for its accuracy;
This website is operated by a brokerage or salesperson who is a member of CREA;
The listing content on this website is protected by copyright and other laws, and is intended solely for the private, non-commercial use by individuals. Any other reproduction, distribution or use of the content, in whole or in part, is specifically forbidden. The prohibited uses include commercial use, "screen scraping", "database scraping", and any other activity intended to collect, store, reorganize or manipulate data on the pages produced by or displayed on this website.
The information contained on this site is based in whole or in part on information that is provided under copyright by the Toronto Regional Real Estate Board (TRREB) or by members of The Canadian Real Estate Association (CREA), who are responsible for its accuracy. TRREB and CREA reproduce and distribute this information as a service for their members and assume no responsibility for its accuracy. All information displayed is believed to be accurate but is not guaranteed and should be independently verified. No warranties or representations of any kind are made with respect to the accuracy of such information. The information provided herein must only be used by consumers that have a bona fide interest in the purchase, sale, or lease of real estate and may not be used for any commercial purpose or any other purpose.