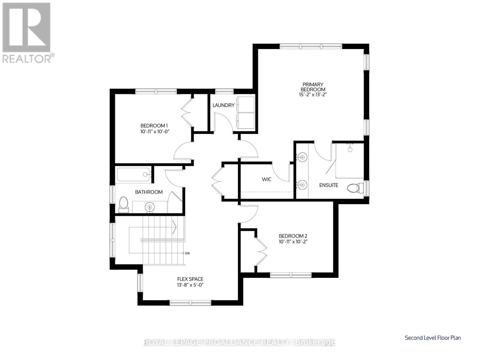
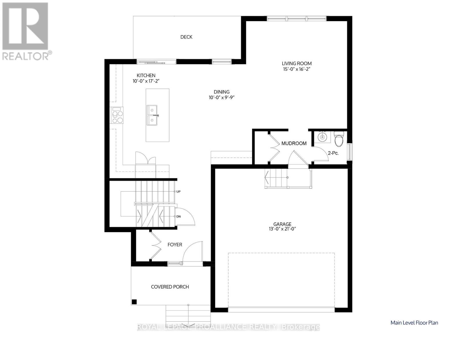
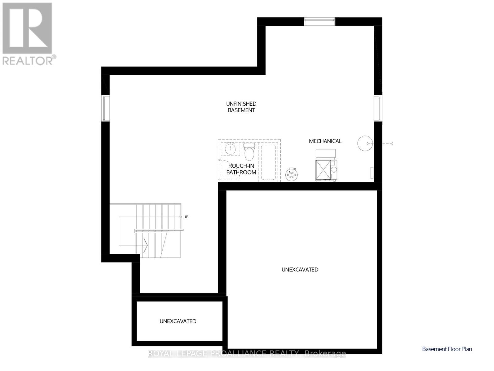
Welcome to the Jensen model, a detached 2-storey home offering 2,085 sq ft of thoughtfully planned living space. Featuring 3 bedrooms, 2.5 bathrooms, and a bright, open-concept main floor ideal for everyday living and entertaining. On the main floor you'll find a welcoming foyer, a 2-pc bathroom and an expansive great room, dining area, and designer kitchen complete with premium cabinetry and stylish finishes. Upstairs, the private primary suite features a spacious walk-in closet and a beautifully appointed 4 pc ensuite bathroom. Two additional bedrooms share a full bath, a flex space, and a convenient upper-level laundry room. Nestled in the serene and welcoming community of Colborne and built by prestigious local builder Fidelity Homes. This home comes packed with quality finishes including: Maintenance-free, Energy Star-rated Northstar vinyl windows with Low-E-Argon glass; 9-foot smooth ceilings on the main floor; Designer Logan interior doors with sleek black Weiser hardware; Craftsman-style trim package with 5 1/2 baseboards and elegant casings around windows and doors; Premium cabinetry; Quality vinyl plank flooring; Moen matte blackwater-efficient faucets in all bathrooms; Stylish, designer light fixtures throughout. Offering 7 Year TARION New Home Warranty. LISTING PRICE REFLECTS EXPANDED HST NEW RESIDENTIAL REBATE FOR ELIGIBLE PURCHASERS. (id:47421)
Interested in obtaining the full price history for this property? Contact us!Contact us! Our real estate professionals would be happy to provide a complete listing history with historical sold prices and dates.
Detailed Information
Bedrooms
3
Bathrooms
3
Lot
12.2 x 29.7 m
Amenities Nearby
Golf Nearby, Park, Schools
Community Features
Community Centre, School Bus
Property Easement
Sub Division Covenants, Other
Features
Flat site, Sump Pump
Listing Contract Date
2025-07-21
Location Description
Cross Streets: Durham St n & Scott Street. ** Directions: County Rd 2 to Durham St North.
Ownership Type
Freehold
# of Parking Spaces
4
Property Type
Single Family
Structures
Deck, Porch
Transaction Type
For sale
Building
Age
New building
Appliances
Garage door opener remote(s), Water Heater
Basement Development
Unfinished
Basement Type
Full (Unfinished)
Construction Style (Attachment)
Detached
Cooling Type
Central air conditioning
Exterior Finish
Vinyl siding
Fire Protection
Smoke Detectors
Flooring Type
Vinyl
Foundation Type
Poured Concrete
# of Half Bathrooms
1
Heating Fuel
Natural gas
Heating Type
Forced air
Stories Total
2
Type
House
Utility Water
Municipal water
Rooms
Room
Level
Dimensions
Notes
Primary Bedroom
Second level
4.62 m x 4.01 m
Bedroom 2
Second level
3.33 m x 3.05 m
Bedroom 3
Second level
3.33 m x 3.1 m
Great room
Main level
4.57 m x 4.93 m
Kitchen
Main level
3.05 m x 5.23 m
Dining room
Main level
3.05 m x 2.97 m
Parking Spaces
Name
Spaces
Attached Garage
Garage
Utilities
Type
Description
Cable
Available
Electricity
Installed
Sewer
Installed
Land
Total Size
12.2 x 29.7 M | under 1/2 acre
Access Type
Public Road, Year-round access
Amenities
Golf Nearby, Park, Schools
Sewer
Sanitary sewer
Size of Irregular Land
12.2 x 29.7 M
Open Houses
Date & Time
Comments
30/05/2026 11:00 AM - 2:00 PM
Terms of Use
Please review and agree to the following terms of use to access the listing content:
REALTOR®, REALTORS®, and the REALTOR® logo are certification marks that are owned by REALTOR® Canada Inc. and licensed exclusively to The Canadian Real Estate Association (CREA). These certification marks identify real estate professionals who are members of CREA and who must abide by CREA's By-Laws, Rules, and the REALTOR® Code. The MLS® trademark and the MLS® logo are owned by CREA and identify the quality of services provided by real estate professionals who are members of CREA;
The information contained on this site is based in whole or in part on information that is provided by members of CREA, who are responsible for its accuracy. CREA reproduces and distributes this information as a service for its members and assumes no responsibility for its accuracy;
This website is operated by a brokerage or salesperson who is a member of CREA;
The listing content on this website is protected by copyright and other laws, and is intended solely for the private, non-commercial use by individuals. Any other reproduction, distribution or use of the content, in whole or in part, is specifically forbidden. The prohibited uses include commercial use, "screen scraping", "database scraping", and any other activity intended to collect, store, reorganize or manipulate data on the pages produced by or displayed on this website.
The information contained on this site is based in whole or in part on information that is provided under copyright by the Toronto Regional Real Estate Board (TRREB) or by members of The Canadian Real Estate Association (CREA), who are responsible for its accuracy. TRREB and CREA reproduce and distribute this information as a service for their members and assume no responsibility for its accuracy. All information displayed is believed to be accurate but is not guaranteed and should be independently verified. No warranties or representations of any kind are made with respect to the accuracy of such information. The information provided herein must only be used by consumers that have a bona fide interest in the purchase, sale, or lease of real estate and may not be used for any commercial purpose or any other purpose.