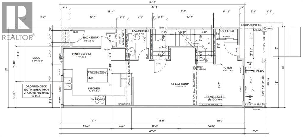
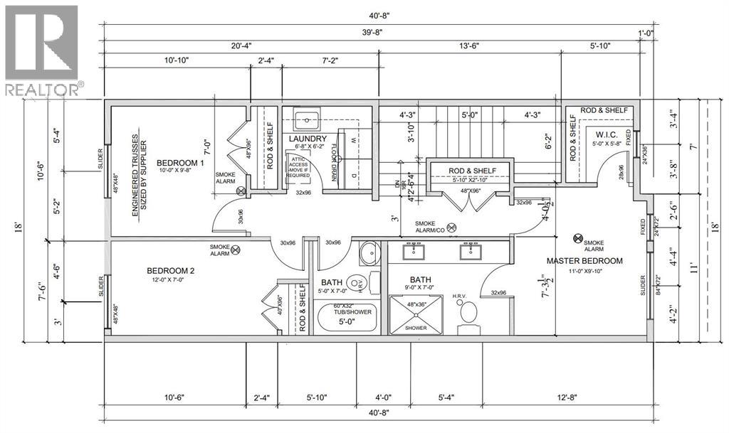
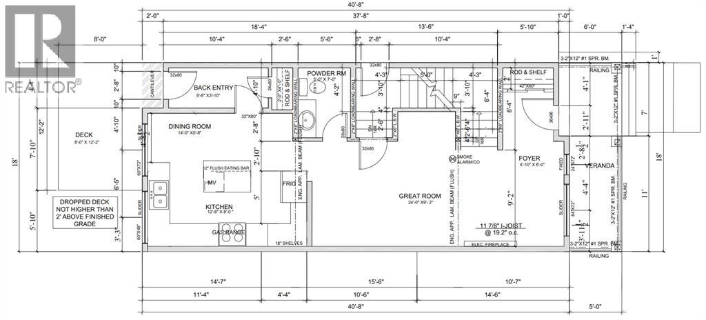
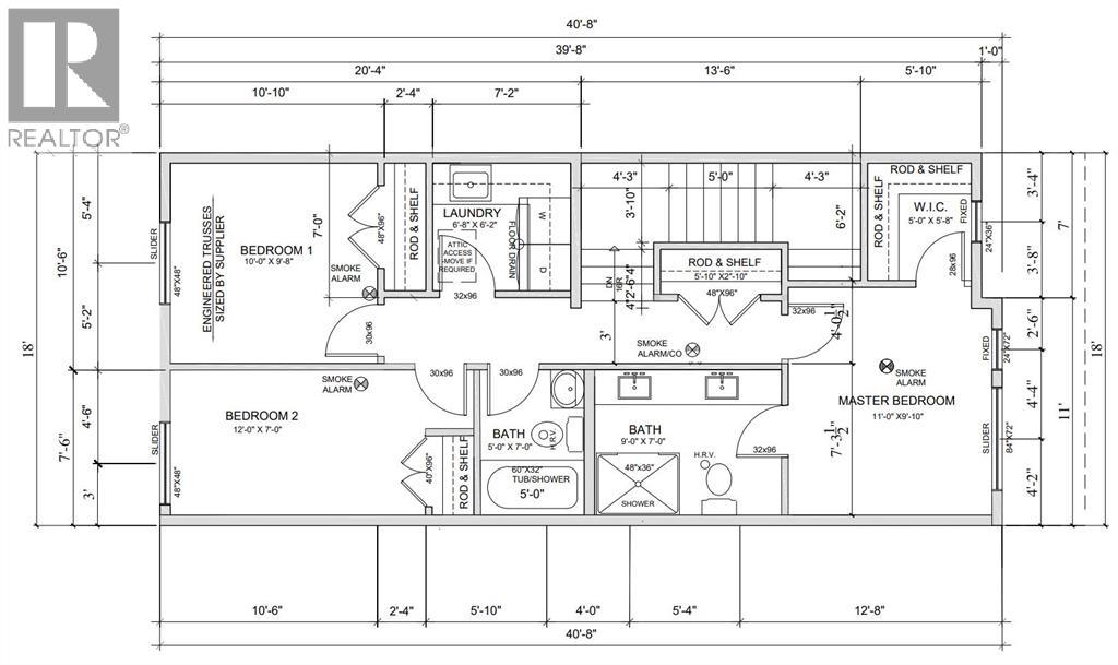
Experience the beauty of this custom-crafted home set in the peaceful surroundings of Crossfield. This pre-construction laned home offers 1,443 square feet of well-designed space across two stories, with 9FT ceilings on every level to enhance the open feel. The home includes a front porch and a backyard deck, ideal for spending time outdoors or hosting family gatherings.Inside, the main floor’s open concept design blends style with functionality. The kitchen features a breakfast bar, quartz countertops, stainless steel appliances, and textured cabinets. Natural light fills the great room, which includes a linear electric fireplace for added comfort. Durable vinyl plank (LVP) flooring, maple accents, and black exterior dual-pane windows provide a modern finish throughout the home. A conveniently located 2-piece powder room completes the main floor.Upstairs, the primary suite includes a 4-piece ensuite and a walk-in closet. Two additional bedrooms provide space for family or guests. A full bathroom and a laundry room with a sink add everyday convenience.Additional features include a double detached garage, fully landscaped backyard, and a roughed-in basement with a separate side entrance, offering potential for future development. Custom finishing options are also available.Located in Crossfield’s Iron Landing community, this home is near parks, playgrounds, shops, dining, and top-rated schools like Crossfield Elementary and W.G. Murdoch School. It’s under 10 minutes to Airdrie, 25 minutes to Calgary, and close to Highway 2 for commuting.Photos are from a previous build; Don’t wait—reach out to make this incredible property yours today! (id:47421)
Interested in obtaining the full price history for this property? Contact us!Contact us! Our real estate professionals would be happy to provide a complete listing history with historical sold prices and dates.
Detailed Information
Bedrooms
3
Bathrooms
3
Lot
7.62 x 35.05 m
Amenities Nearby
Park, Playground, Recreation Nearby, Schools, Shopping
Features
Back lane, No Animal Home, No Smoking Home, Gas BBQ Hookup
Listing Contract Date
2025-05-14
Municipal ID
T731041273
Ownership Type
Freehold
# of Parking Spaces
2
Plan
2410344
Property Type
Single Family
Structures
Deck
Transaction Type
For sale
Zoning Description
R-3
Building
Appliances
Washer, Refrigerator, Range - Gas, Dishwasher, Dryer, Hood Fan
Basement Development
Unfinished
Basement Features
Separate entrance
Basement Type
Full (Unfinished)
Constructed Date
2025
Construction Material
Poured concrete, Wood frame
Construction Style (Attachment)
Detached
Cooling Type
None
Exterior Finish
Concrete, Stone, Vinyl siding
Fire Protection
Smoke Detectors
Fireplace Present
Yes
# of Fireplaces
1
Flooring Type
Carpeted, Concrete, Tile, Vinyl Plank
Foundation Type
Poured Concrete
# of Half Bathrooms
1
Heating Fuel
Natural gas
Heating Type
Other, Forced air
Stories Total
2
Total Finished Area
1443 sqft
Type
House
Rooms
Room
Level
Dimensions
Notes
Bedroom
Second level
10.00 Ft x 9.67 Ft
Bedroom
Second level
12.00 Ft x 7.00 Ft
4pc Bathroom
Second level
5.00 Ft x 7.00 Ft
Laundry room
Second level
6.67 Ft x 6.17 Ft
4pc Bathroom
Second level
9.00 Ft x 7.00 Ft
Primary Bedroom
Second level
11.00 Ft x 9.83 Ft
Other
Second level
5.00 Ft x 5.67 Ft
2pc Bathroom
Main level
5.00 Ft x 7.00 Ft
Other
Main level
9.67 Ft x 3.83 Ft
Kitchen
Main level
12.67 Ft x 8.00 Ft
Great room
Main level
24.00 Ft x 9.17 Ft
Foyer
Main level
4.83 Ft x 6.00 Ft
Dining room
Main level
14.00 Ft x 5.67 Ft
Parking Spaces
Name
Spaces
Detached Garage
2
Parking Pad
Land
Total Size
3432.52 square feet
Amenities
Park, Playground, Recreation Nearby, Schools, Shopping
Fence Type
Partially fenced
Landscape Features
Landscaped
Size of Irregular Land
3432.52
Terms of Use
Please review and agree to the following terms of use to access the listing content:
REALTOR®, REALTORS®, and the REALTOR® logo are certification marks that are owned by REALTOR® Canada Inc. and licensed exclusively to The Canadian Real Estate Association (CREA). These certification marks identify real estate professionals who are members of CREA and who must abide by CREA's By-Laws, Rules, and the REALTOR® Code. The MLS® trademark and the MLS® logo are owned by CREA and identify the quality of services provided by real estate professionals who are members of CREA;
The information contained on this site is based in whole or in part on information that is provided by members of CREA, who are responsible for its accuracy. CREA reproduces and distributes this information as a service for its members and assumes no responsibility for its accuracy;
This website is operated by a brokerage or salesperson who is a member of CREA;
The listing content on this website is protected by copyright and other laws, and is intended solely for the private, non-commercial use by individuals. Any other reproduction, distribution or use of the content, in whole or in part, is specifically forbidden. The prohibited uses include commercial use, "screen scraping", "database scraping", and any other activity intended to collect, store, reorganize or manipulate data on the pages produced by or displayed on this website.
The information contained on this site is based in whole or in part on information that is provided under copyright by the Toronto Regional Real Estate Board (TRREB) or by members of The Canadian Real Estate Association (CREA), who are responsible for its accuracy. TRREB and CREA reproduce and distribute this information as a service for their members and assume no responsibility for its accuracy. All information displayed is believed to be accurate but is not guaranteed and should be independently verified. No warranties or representations of any kind are made with respect to the accuracy of such information. The information provided herein must only be used by consumers that have a bona fide interest in the purchase, sale, or lease of real estate and may not be used for any commercial purpose or any other purpose.