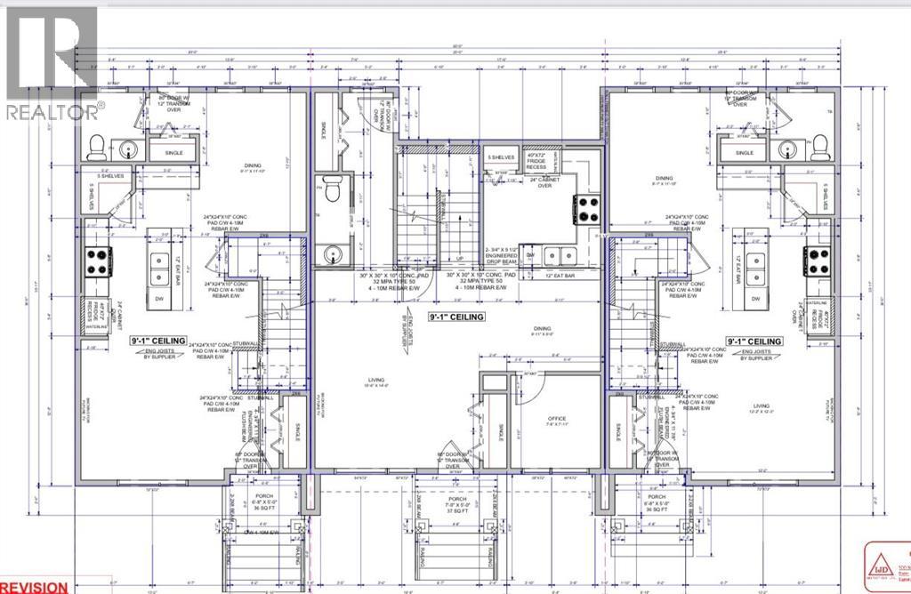
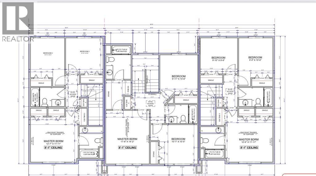
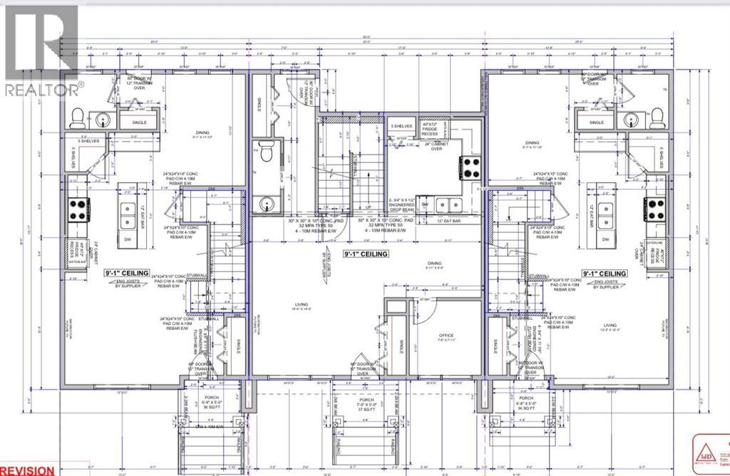
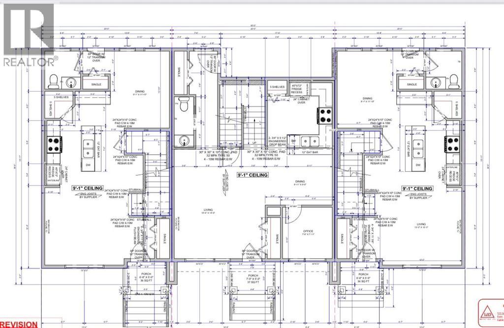
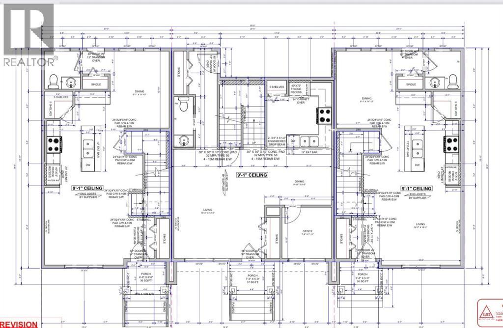
This new construction triplex Home in the Town of Crossfield AB that is under construction and scheduled for completion in the end of 2025. This purpose-built home has spacious 3 bedrooms and 2.5 bathrooms, modern kitchen and island, front porch, back yards and sun deck. Well designed living space with modern appliances and finishes. Rear lane access and 2 car parking pad. Crossfield is a quiet and rapidly growing town which has well rated one elementary and one high school, day care, golf course, parks, playgrounds, and other amenities. Strategically located near Airdrie that's 10 minutes drive to Superstore, Balzac, 30 minutes to Calgary Airport and close to Highway 2 for commuting. (id:47421)
Interested in obtaining the full price history for this property? Contact us!Contact us! Our real estate professionals would be happy to provide a complete listing history with historical sold prices and dates.
Detailed Information
Bedrooms
3
Bathrooms
3
Lot
7.62 x 34.75 m
Amenities Nearby
Golf Course, Park, Playground, Schools, Shopping
Community Features
Golf Course Development
Features
Back lane
Listing Contract Date
2025-09-09
Municipal ID
T757448909
Ownership Type
Freehold
# of Parking Spaces
2
Plan
2410344
Property Type
Single Family
Structures
Deck
Transaction Type
For sale
Zoning Description
R3
Building
Appliances
Refrigerator, Range - Electric, Dishwasher, Microwave, Washer & Dryer
Basement Development
Unfinished
Basement Type
Full (Unfinished)
Constructed Date
2025
Construction Material
Poured concrete, Wood frame
Construction Style (Attachment)
Attached
Cooling Type
None
Exterior Finish
Concrete, Vinyl siding
Flooring Type
Carpeted, Vinyl, Vinyl Plank
Foundation Type
Poured Concrete
# of Half Bathrooms
1
Heating Type
Central heating
Stories Total
2
Total Finished Area
1277 sqft
Type
Row / Townhouse
Rooms
Room
Level
Dimensions
Notes
Primary Bedroom
Second level
12.00 Ft x 11.00 Ft
Bedroom
Second level
10.00 Ft x 9.00 Ft
3pc Bathroom
Second level
Measurements not available
Bedroom
Second level
10.00 Ft x 9.00 Ft
1pc Bathroom
Main level
Measurements not available
3pc Bathroom
Unknown
Measurements not available
Parking Spaces
Name
Spaces
Parking Pad
Land
Total Size
2850 square feet
Amenities
Golf Course, Park, Playground, Schools, Shopping
Fence Type
Partially fenced
Size of Irregular Land
2850.00
Terms of Use
Please review and agree to the following terms of use to access the listing content:
REALTOR®, REALTORS®, and the REALTOR® logo are certification marks that are owned by REALTOR® Canada Inc. and licensed exclusively to The Canadian Real Estate Association (CREA). These certification marks identify real estate professionals who are members of CREA and who must abide by CREA's By-Laws, Rules, and the REALTOR® Code. The MLS® trademark and the MLS® logo are owned by CREA and identify the quality of services provided by real estate professionals who are members of CREA;
The information contained on this site is based in whole or in part on information that is provided by members of CREA, who are responsible for its accuracy. CREA reproduces and distributes this information as a service for its members and assumes no responsibility for its accuracy;
This website is operated by a brokerage or salesperson who is a member of CREA;
The listing content on this website is protected by copyright and other laws, and is intended solely for the private, non-commercial use by individuals. Any other reproduction, distribution or use of the content, in whole or in part, is specifically forbidden. The prohibited uses include commercial use, "screen scraping", "database scraping", and any other activity intended to collect, store, reorganize or manipulate data on the pages produced by or displayed on this website.
The information contained on this site is based in whole or in part on information that is provided under copyright by the Toronto Regional Real Estate Board (TRREB) or by members of The Canadian Real Estate Association (CREA), who are responsible for its accuracy. TRREB and CREA reproduce and distribute this information as a service for their members and assume no responsibility for its accuracy. All information displayed is believed to be accurate but is not guaranteed and should be independently verified. No warranties or representations of any kind are made with respect to the accuracy of such information. The information provided herein must only be used by consumers that have a bona fide interest in the purchase, sale, or lease of real estate and may not be used for any commercial purpose or any other purpose.