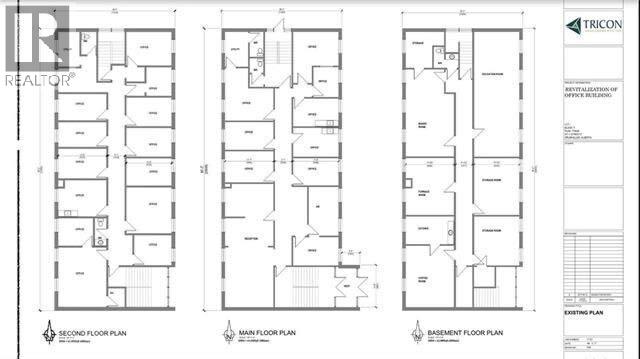
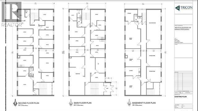
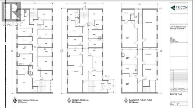
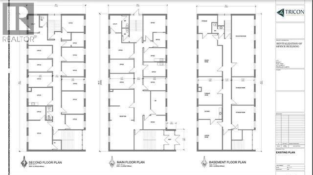
Back on the market!! This is a fantastic opportunity to acquire a rare, well maintained commercial property with roughly 9,000 square feet of space over three floors in a one-of-a-kind Drumheller location. What makes it rare? Occupying a corner lot in one of the town’s most popular riverside residential areas, the property is two blocks from primary traffic routes, a short distance from the downtown district, and immediately across the street from Drumheller’s two large senior’s lodges. Most commercial locations in Drumheller are highway or downtown retail, limiting both their desirability and their accessibility, making this opportunity very uncommon!This location creates unparalleled direct access to the surrounding residential community and the adjacent seniors population - ideal for medical, daycare or service related businesses. This community appeal is evidenced by the long-term main floor tenant, an Alberta Government family and community services centre.The tenanted floor of the building has been fully renovated, however the seller delayed renovating the other two floors to allow buyers to explore the other usage opportunities that the large 18,600 sq.ft (0.43 acre) lot provides - either for building expansion, renovations specific to future tenants, or for possible conversion of the building to residential apartments or condos. This is because Drumheller’s acute residential shortage makes this location also ideal for rental apartments or condominium conversion - providing a myriad of options for a savvy investor beyond the existing commercial and expansion possibilities.Preliminary discussions with the town planning department has shown that there is ample underground capacity for both expansion or conversion, and the planning department has expressed support for both options. Ample municipal services are immediately adjacent to the property to accommodate any expanded requirements for residential use or for building expansion.Access is simple with entrances and wide staircases at either end of the building plus a chair-lift at the main entrance allowing those with mobility limitations access between floors. The roof is relatively new, and the building structure is solid, using dimensional lumber interior framing. High ceilings also allow for easy servicing and cable/plumbing runs - if or as desired. These in combination make it a low-maintenance, extremely affordable, and easy to manage asset. With windows replaced roughly 10 years ago, efficient forced air heating systems and cooling systems, upgraded 400amp electrical, ample parking, key location, plus enviable flexibility for a wide range of current and future usage options - this is a remarkable investment you don’t want to miss! (id:47421)
Interested in obtaining the full price history for this property? Contact us!Contact us! Our real estate professionals would be happy to provide a complete listing history with historical sold prices and dates.
Detailed Information
Lot
38.1 x 0 m
Features
See remarks, Back lane
Listing Contract Date
2025-08-10
Municipal ID
0036820421
# of Parking Spaces
32
Plan
1734JK
Property Type
Other
Road
Paved road
Transaction Type
For sale
Total Buildings
1
Zoning Description
ND
Building
Constructed Date
1962
Construction Material
Poured concrete, Wood frame
Cooling Type
Central air conditioning
Exterior Finish
Brick, Concrete
Fire Protection
Alarm system
Foundation Type
Poured Concrete
Heating Fuel
Natural gas
Heating Type
Forced air
Size (Exterior)
9000 square feet
Total Finished Area
9000 sqft
Type
Commercial Mix
Land
Total Size
18857 square feet
Size of Irregular Land
18857.00
Terms of Use
Please review and agree to the following terms of use to access the listing content:
REALTOR®, REALTORS®, and the REALTOR® logo are certification marks that are owned by REALTOR® Canada Inc. and licensed exclusively to The Canadian Real Estate Association (CREA). These certification marks identify real estate professionals who are members of CREA and who must abide by CREA's By-Laws, Rules, and the REALTOR® Code. The MLS® trademark and the MLS® logo are owned by CREA and identify the quality of services provided by real estate professionals who are members of CREA;
The information contained on this site is based in whole or in part on information that is provided by members of CREA, who are responsible for its accuracy. CREA reproduces and distributes this information as a service for its members and assumes no responsibility for its accuracy;
This website is operated by a brokerage or salesperson who is a member of CREA;
The listing content on this website is protected by copyright and other laws, and is intended solely for the private, non-commercial use by individuals. Any other reproduction, distribution or use of the content, in whole or in part, is specifically forbidden. The prohibited uses include commercial use, "screen scraping", "database scraping", and any other activity intended to collect, store, reorganize or manipulate data on the pages produced by or displayed on this website.
The information contained on this site is based in whole or in part on information that is provided under copyright by the Toronto Regional Real Estate Board (TRREB) or by members of The Canadian Real Estate Association (CREA), who are responsible for its accuracy. TRREB and CREA reproduce and distribute this information as a service for their members and assume no responsibility for its accuracy. All information displayed is believed to be accurate but is not guaranteed and should be independently verified. No warranties or representations of any kind are made with respect to the accuracy of such information. The information provided herein must only be used by consumers that have a bona fide interest in the purchase, sale, or lease of real estate and may not be used for any commercial purpose or any other purpose.