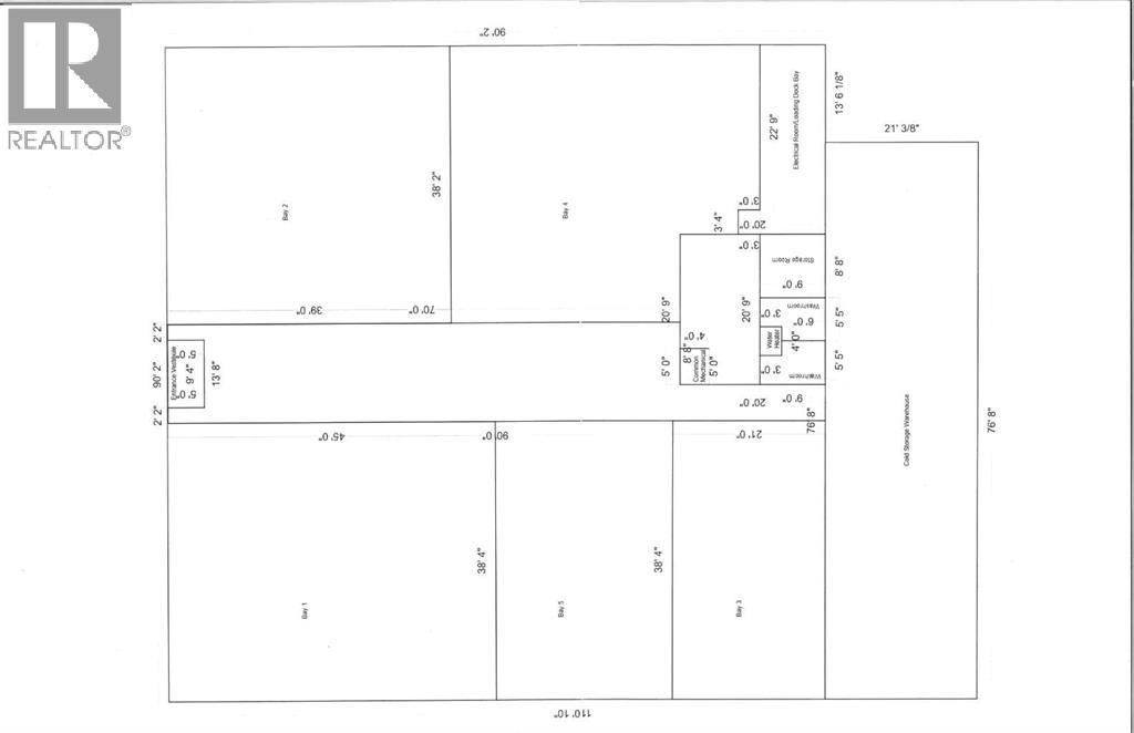
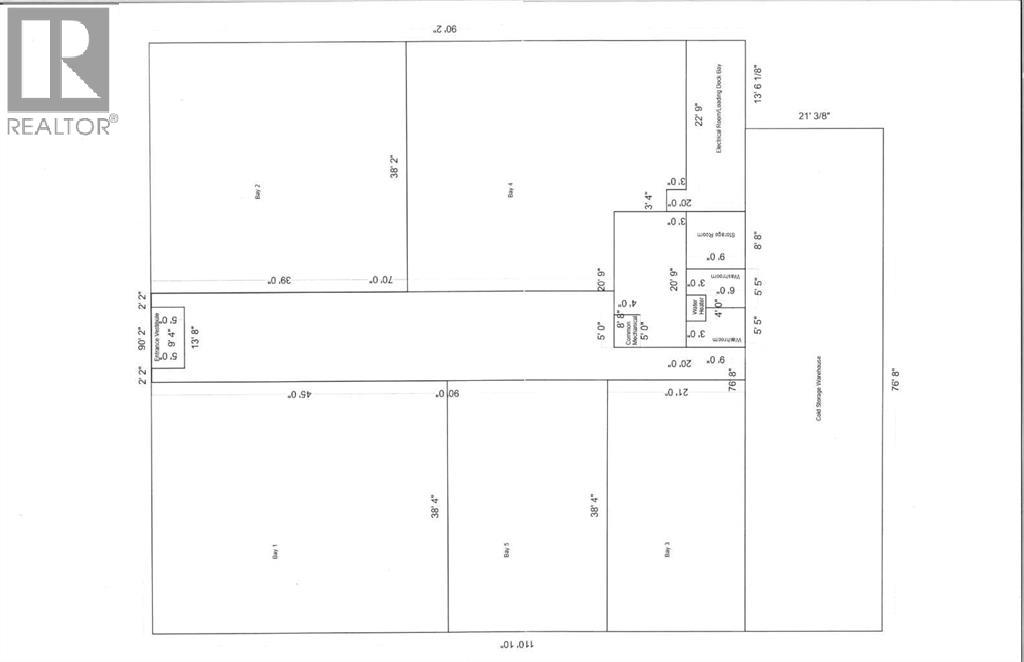
Well-located strip mall in the community of Eckville offering 9,682 sq. ft. divided into five individual bays. Situated on a 90 ft x 130 ft lot, this property benefits from strong exposure and convenient access within town. The building has been recently renovated, providing updated finishes and systems that appeal to both tenants and owner-occupiers.Eckville is located approximately 24 km west of Sylvan Lake, making it a convenient service and retail hub for surrounding communities. The multi-bay layout allows for diversified tenancy and flexible use, making this an attractive option for investors or business owners seeking a well-maintained commercial property in a growing regional market. (id:47421)
Interested in obtaining the full price history for this property? Contact us!Contact us! Our real estate professionals would be happy to provide a complete listing history with historical sold prices and dates.
Detailed Information
Lot
27.43 x 39.62 m
Listing Contract Date
2025-12-28
Municipal ID
0016259087
Ownership Type
Freehold
Plan
6117AQ
Property Type
Other
Transaction Type
For sale
Zoning Description
C!
Building
Constructed Date
1977
Size (Exterior)
9682 square feet
Total Finished Area
9682 sqft
Type
Commercial Mix
Land
Total Size
90x130 | Unknown
Size of Irregular Land
90x130
Terms of Use
Please review and agree to the following terms of use to access the listing content:
REALTOR®, REALTORS®, and the REALTOR® logo are certification marks that are owned by REALTOR® Canada Inc. and licensed exclusively to The Canadian Real Estate Association (CREA). These certification marks identify real estate professionals who are members of CREA and who must abide by CREA's By-Laws, Rules, and the REALTOR® Code. The MLS® trademark and the MLS® logo are owned by CREA and identify the quality of services provided by real estate professionals who are members of CREA;
The information contained on this site is based in whole or in part on information that is provided by members of CREA, who are responsible for its accuracy. CREA reproduces and distributes this information as a service for its members and assumes no responsibility for its accuracy;
This website is operated by a brokerage or salesperson who is a member of CREA;
The listing content on this website is protected by copyright and other laws, and is intended solely for the private, non-commercial use by individuals. Any other reproduction, distribution or use of the content, in whole or in part, is specifically forbidden. The prohibited uses include commercial use, "screen scraping", "database scraping", and any other activity intended to collect, store, reorganize or manipulate data on the pages produced by or displayed on this website.
The information contained on this site is based in whole or in part on information that is provided under copyright by the Toronto Regional Real Estate Board (TRREB) or by members of The Canadian Real Estate Association (CREA), who are responsible for its accuracy. TRREB and CREA reproduce and distribute this information as a service for their members and assume no responsibility for its accuracy. All information displayed is believed to be accurate but is not guaranteed and should be independently verified. No warranties or representations of any kind are made with respect to the accuracy of such information. The information provided herein must only be used by consumers that have a bona fide interest in the purchase, sale, or lease of real estate and may not be used for any commercial purpose or any other purpose.