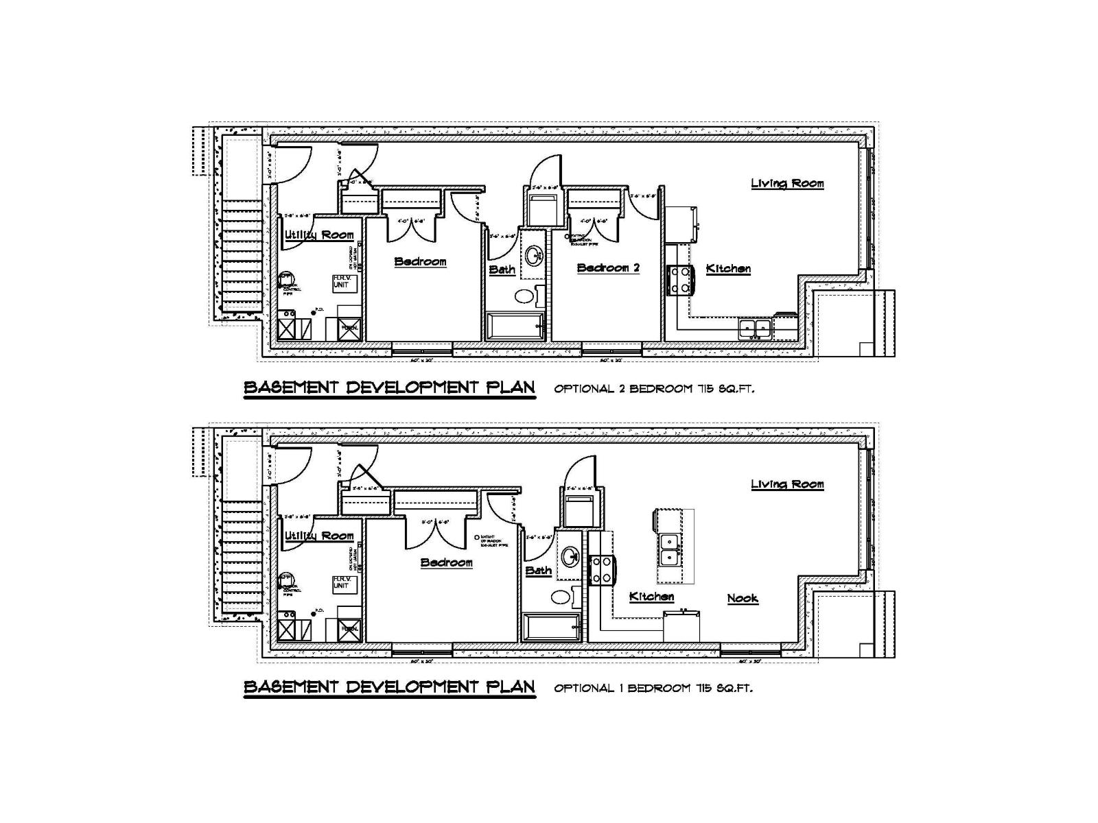
CUSTOM BUILD and work with the builder's to design your new 2400+sq.ft 3 storey home with ROOF TOP patio, unobstructed PARK & DOWNTOWN VIEWS, 3 bedrooms, 3.5 bathrooms, and a LEGAL BASEMENT SUITE! Linhan Developments builds phenomenal homes where their quality & attention to detail is second to none! This executive home has acrylic stucco and wood features, a high-end modern kitchen and finishings throughout, and is fully landscaped & fenced with a 21x21 double garage. The house is fully customizable before building starts: Do you need a main floor bedroom and full bath? 3rd floor wet bar, full bath, lounge area, and room for hot tub? YOUR DREAMS CAN COME TRUE if you act fast! The basement can be finished with an 800 sq.ft. 1 or 2 bedroom, full bathroom legal basement suite where you have completely separate & private outside suite access, or design your own media room, sanctuary, wine room, or mancave. Plus that premium view and proximity to the new LRT line, shopping, and amenities cannot be beat! (id:47421)
Interested in obtaining the full price history for this property? Contact us!Contact us! Our real estate professionals would be happy to provide a complete listing history with historical sold prices and dates.
Detailed Information
Bedrooms
5
Bathrooms
5
Amenities Nearby
Playground, Public Transit, Schools, Shopping
Community Features
Public Swimming Pool
Listing Contract Date
2026-01-06
Municipal ID
ZZ999999999
Ownership Type
Freehold
Property Type
Single Family
Transaction Type
For sale
Building
Appliances
See remarks
Basement Development
Finished
Basement Features
Suite
Basement Type
Full (Finished)
Constructed Date
2026
Construction Style (Attachment)
Detached
Cooling Type
Central air conditioning
Fire Protection
Smoke Detectors
Fireplace Fuel
Gas
Fireplace Present
Yes
Fireplace Type
Unknown
# of Half Bathrooms
1
Heating Type
Forced air
Stories Total
2
Type
House
Rooms
Room
Level
Dimensions
Notes
Bedroom 4
Lower level
Measurements not available
Bedroom 5
Lower level
Measurements not available
Second Kitchen
Lower level
Measurements not available
Living room
Main level
Measurements not available
Dining room
Main level
Measurements not available
Kitchen
Main level
Measurements not available
Den
Main level
Measurements not available
Primary Bedroom
Upper Level
Measurements not available
Bedroom 2
Upper Level
Measurements not available
Bedroom 3
Upper Level
Measurements not available
Bonus Room
Upper Level
Measurements not available
Parking Spaces
Name
Spaces
Detached Garage
Land
Total Size
27x110ft
Amenities
Playground, Public Transit, Schools, Shopping
Size of Irregular Land
27x110ft
Terms of Use
Please review and agree to the following terms of use to access the listing content:
REALTOR®, REALTORS®, and the REALTOR® logo are certification marks that are owned by REALTOR® Canada Inc. and licensed exclusively to The Canadian Real Estate Association (CREA). These certification marks identify real estate professionals who are members of CREA and who must abide by CREA's By-Laws, Rules, and the REALTOR® Code. The MLS® trademark and the MLS® logo are owned by CREA and identify the quality of services provided by real estate professionals who are members of CREA;
The information contained on this site is based in whole or in part on information that is provided by members of CREA, who are responsible for its accuracy. CREA reproduces and distributes this information as a service for its members and assumes no responsibility for its accuracy;
This website is operated by a brokerage or salesperson who is a member of CREA;
The listing content on this website is protected by copyright and other laws, and is intended solely for the private, non-commercial use by individuals. Any other reproduction, distribution or use of the content, in whole or in part, is specifically forbidden. The prohibited uses include commercial use, "screen scraping", "database scraping", and any other activity intended to collect, store, reorganize or manipulate data on the pages produced by or displayed on this website.
The information contained on this site is based in whole or in part on information that is provided under copyright by the Toronto Regional Real Estate Board (TRREB) or by members of The Canadian Real Estate Association (CREA), who are responsible for its accuracy. TRREB and CREA reproduce and distribute this information as a service for their members and assume no responsibility for its accuracy. All information displayed is believed to be accurate but is not guaranteed and should be independently verified. No warranties or representations of any kind are made with respect to the accuracy of such information. The information provided herein must only be used by consumers that have a bona fide interest in the purchase, sale, or lease of real estate and may not be used for any commercial purpose or any other purpose.