Mountain modern ski-in living at the base of Fernie Alpine Resort. Crafted with precision and designed for the mountain lifestyle, this 2-bedroom, 2-bathroom single-level condo offers over 800 sq ft of efficient, well-planned living space. The bright and functional layout maximizes every square foot. The spacious primary suite features a full ensuite, generous closet space, and room for a king-sized bed—an ideal retreat after a day on the slopes. The second bedroom and full bathroom provide excellent flexibility for guests, rental potential, or a small family. Outside, enjoy a private patio with space for a hot tub, outdoor dining set, and a secure storage locker large enough for all of your gear and mountain toys. Ski-in access at the end of your day adds unbeatable convenience, and the home is located just a 7-minute drive from Downtown Fernie—offering the perfect balance of resort living and town proximity. A rare opportunity to own a modern, low-maintenance mountain basecamp in one of the most desirable locations at Fernie Alpine Resort. (id:47421)
Interested in obtaining the full price history for this property? Contact us!Contact us! Our real estate professionals would be happy to provide a complete listing history with historical sold prices and dates.
Detailed Information
Bedrooms
2
Bathrooms
2
Community Features
Pets Allowed
Listing Contract Date
2025-12-01
Maintenance Fee Payment Frequency
Monthly
Maintenance Fee Type
Reserve Fund Contributions, Insurance, Ground Maintenance, Other, See Remarks
Municipal ID
032-462-743
Ownership Type
Strata
# of Parking Spaces
2
Property Type
Single Family
Storage
Storage, Locker
Transaction Type
For sale
Building
Appliances
Hood Fan
Architectural Style
Contemporary
Basement Type
Full
Constructed Date
2025
Construction Style (Attachment)
Attached
Cooling Type
Central air conditioning
Fireplace Fuel
Electric
Fireplace Present
Yes
# of Fireplaces
1
Fireplace Type
Unknown
Flooring Type
Carpeted, Ceramic Tile, Vinyl
Heating Type
Heat Pump
Roof Material
Asphalt shingle
Roof Style
Unknown
Stories Total
1
Type
Row / Townhouse
Utility Water
Municipal water
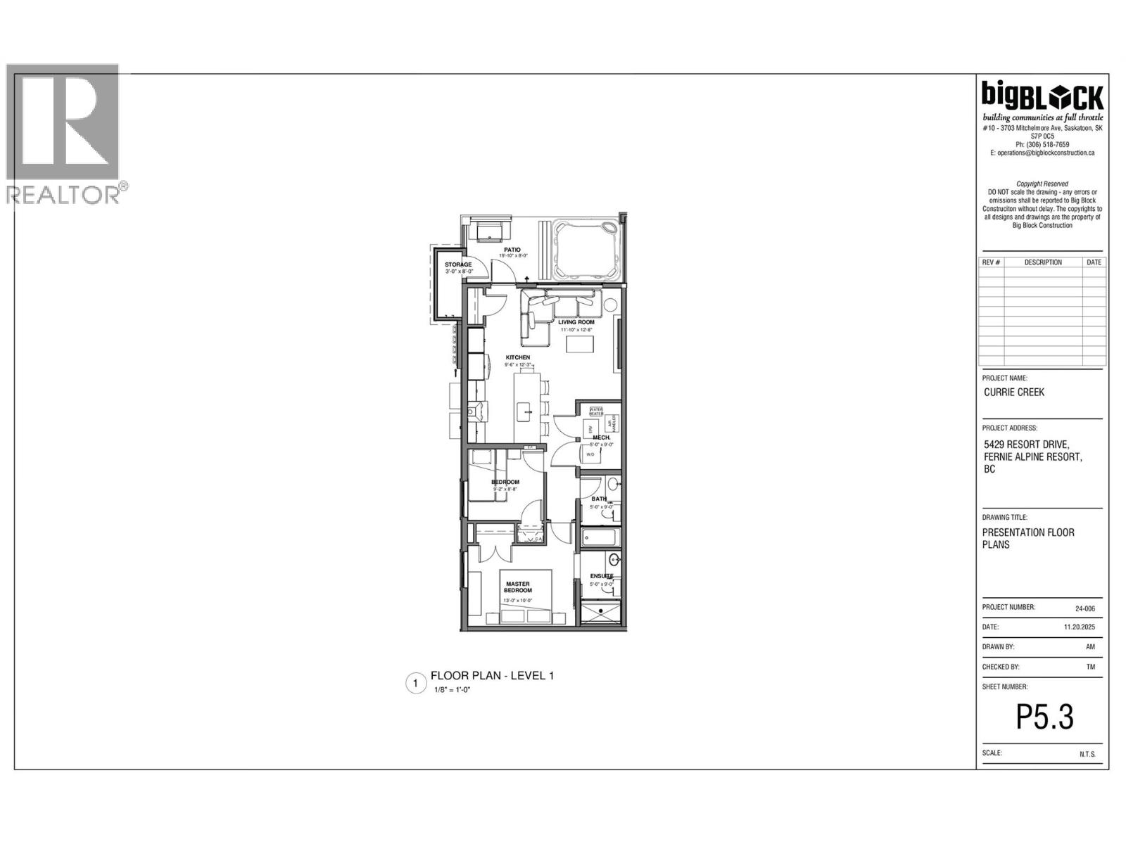
Rooms
Room
Level
Dimensions
Notes
Storage
Main level
3'0'' x 8'0''
Other
Main level
5'0'' x 9'0''
4pc Bathroom
Main level
5'0'' x 9'0''
4pc Ensuite bath
Main level
5'0'' x 9'0''
Primary Bedroom
Main level
13'0'' x 10'0''
Bedroom
Main level
9'2'' x 8'8''
Living room
Main level
11'10'' x 12'8''
Kitchen
Main level
9'6'' x 12'3''
Parking Spaces
Name
Spaces
Stall
Land
Total Size
under 1 acre
Sewer
Municipal sewage system
Terms of Use
Please review and agree to the following terms of use to access the listing content:
REALTOR®, REALTORS®, and the REALTOR® logo are certification marks that are owned by REALTOR® Canada Inc. and licensed exclusively to The Canadian Real Estate Association (CREA). These certification marks identify real estate professionals who are members of CREA and who must abide by CREA's By-Laws, Rules, and the REALTOR® Code. The MLS® trademark and the MLS® logo are owned by CREA and identify the quality of services provided by real estate professionals who are members of CREA;
The information contained on this site is based in whole or in part on information that is provided by members of CREA, who are responsible for its accuracy. CREA reproduces and distributes this information as a service for its members and assumes no responsibility for its accuracy;
This website is operated by a brokerage or salesperson who is a member of CREA;
The listing content on this website is protected by copyright and other laws, and is intended solely for the private, non-commercial use by individuals. Any other reproduction, distribution or use of the content, in whole or in part, is specifically forbidden. The prohibited uses include commercial use, "screen scraping", "database scraping", and any other activity intended to collect, store, reorganize or manipulate data on the pages produced by or displayed on this website.
The information contained on this site is based in whole or in part on information that is provided under copyright by the Toronto Regional Real Estate Board (TRREB) or by members of The Canadian Real Estate Association (CREA), who are responsible for its accuracy. TRREB and CREA reproduce and distribute this information as a service for their members and assume no responsibility for its accuracy. All information displayed is believed to be accurate but is not guaranteed and should be independently verified. No warranties or representations of any kind are made with respect to the accuracy of such information. The information provided herein must only be used by consumers that have a bona fide interest in the purchase, sale, or lease of real estate and may not be used for any commercial purpose or any other purpose.