This well-maintained and character-filled home offers 4+1 potential bedrooms and 2.5 bathrooms, with inviting spaces designed for both everyday living and entertaining. Step into the vaulted living room, where large windows facing north flood the space with ample natural light, while exposed wood, striking wooden beams, and a crackling wood-burning fireplace create a warm and cozy atmosphere—perfect for Alberta winters. The living room flows seamlessly into the dining area, conveniently located just off the kitchen. The spacious kitchen features ample cabinetry, exposed wood beams, and a cut-out window to the living room—making serving and hosting effortless. From here, enjoy views of the fully enclosed 3-season sunroom, a versatile space ideal for relaxing, housing a hot tub, or staying sheltered while bringing groceries in from the garage. A gas fireplace keeps this space comfortable and toasty during cooler months. The main floor offers three generously sized bedrooms, including a primary bedroom with its own 2-piece ensuite, along with a 4-piece bathroom featuring a soaker tub. Downstairs, the large recreation room is perfect for gatherings and includes a pool table and custom pool table light, both staying with the property. The basement also features a 3-piece bathroom, laundry room, furnace room, and a cold cellar—ideal for storing canned goods or preserves. Outside, enjoy a good-sized, fully fenced backyard, perfect for entertaining and keeping pets safe. An attached single-car garage provides direct access into the sunroom for added convenience year-round. Quick possession available, making this a fantastic opportunity to move in and enjoy everything this warm and welcoming Forestburg home has to offer. (id:47421)
Interested in obtaining the full price history for this property? Contact us!Contact us! Our real estate professionals would be happy to provide a complete listing history with historical sold prices and dates.
Detailed Information
Bedrooms
3+1
Bathrooms
3
Lot
15.98 x 0 m
Amenities Nearby
Golf Course, Park, Playground, Recreation Nearby, Schools, Shopping
Community Features
Golf Course Development
Features
Cul-de-sac, Back lane
Listing Contract Date
2025-12-26
Municipal ID
0013679113
Ownership Type
Freehold
# of Parking Spaces
3
Plan
7821752
Property Type
Single Family
Structures
None
Transaction Type
For sale
Zoning Description
R1
Building
Appliances
Washer, Refrigerator, Water softener, Dishwasher, Stove, Dryer
Architectural Style
Bungalow
Basement Development
Finished
Basement Type
Full (Finished)
Constructed Date
1979
Construction Style (Attachment)
Detached
Cooling Type
None
Exterior Finish
Brick, Stucco, Vinyl siding, Wood siding
Fireplace Present
Yes
# of Fireplaces
2
Flooring Type
Carpeted, Other, Tile, Vinyl, Wood
Foundation Type
See Remarks, Poured Concrete
# of Half Bathrooms
1
Heating Type
Forced air
Stories Total
1
Total Finished Area
1300 sqft
Type
House
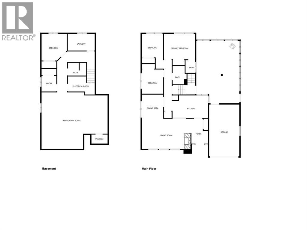
Rooms
Room
Level
Dimensions
Notes
Cold room
Basement
5.75 Ft x 3.17 Ft
Recreational, Games room
Basement
25.83 Ft x 22.42 Ft
Office
Basement
5.58 Ft x 9.17 Ft
Furnace
Basement
Measurements not available
3pc Bathroom
Basement
Measurements not available
Bedroom
Basement
11.00 Ft x 10.08 Ft
Laundry room
Basement
10.33 Ft x 6.33 Ft
Foyer
Main level
6.83 Ft x 10.00 Ft
Living room
Main level
17.75 Ft x 11.92 Ft
Dining room
Main level
9.92 Ft x 8.92 Ft
Kitchen
Main level
14.42 Ft x 9.42 Ft
4pc Bathroom
Main level
Measurements not available
Bedroom
Main level
8.92 Ft x 9.92 Ft
Bedroom
Main level
10.92 Ft x 9.00 Ft
Primary Bedroom
Main level
12.83 Ft x 10.92 Ft
2pc Bathroom
Main level
Measurements not available
Sunroom
Main level
21.17 Ft x 16.42 Ft
Parking Spaces
Name
Spaces
Attached Garage
1
Land
Total Size
7442 square feet
Amenities
Golf Course, Park, Playground, Recreation Nearby, Schools, Shopping
Fence Type
Fence
Size of Irregular Land
7442.00
Terms of Use
Please review and agree to the following terms of use to access the listing content:
REALTOR®, REALTORS®, and the REALTOR® logo are certification marks that are owned by REALTOR® Canada Inc. and licensed exclusively to The Canadian Real Estate Association (CREA). These certification marks identify real estate professionals who are members of CREA and who must abide by CREA's By-Laws, Rules, and the REALTOR® Code. The MLS® trademark and the MLS® logo are owned by CREA and identify the quality of services provided by real estate professionals who are members of CREA;
The information contained on this site is based in whole or in part on information that is provided by members of CREA, who are responsible for its accuracy. CREA reproduces and distributes this information as a service for its members and assumes no responsibility for its accuracy;
This website is operated by a brokerage or salesperson who is a member of CREA;
The listing content on this website is protected by copyright and other laws, and is intended solely for the private, non-commercial use by individuals. Any other reproduction, distribution or use of the content, in whole or in part, is specifically forbidden. The prohibited uses include commercial use, "screen scraping", "database scraping", and any other activity intended to collect, store, reorganize or manipulate data on the pages produced by or displayed on this website.
The information contained on this site is based in whole or in part on information that is provided under copyright by the Toronto Regional Real Estate Board (TRREB) or by members of The Canadian Real Estate Association (CREA), who are responsible for its accuracy. TRREB and CREA reproduce and distribute this information as a service for their members and assume no responsibility for its accuracy. All information displayed is believed to be accurate but is not guaranteed and should be independently verified. No warranties or representations of any kind are made with respect to the accuracy of such information. The information provided herein must only be used by consumers that have a bona fide interest in the purchase, sale, or lease of real estate and may not be used for any commercial purpose or any other purpose.