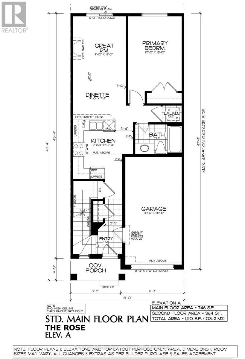
New value-priced townhomes located in Phase 4 of The Peace Bridge Village Subdivision. This thoughtfully designed endunit 3-bedroom, 2-bath home features an open-concept main level with a bright kitchen, dining area, and spacious great room with patio doors overlooking the rear yard. The main-floor primary bedroom, 4-piece bath, and convenient laundry complete the main level.Upstairs, the loft area offers a versatile sitting or office space, along with two additional bedrooms and another 4-piece bath. The full basement provides an open canvas, perfect for future living space or customization.Ideally located steps from all amenities and just minutes from major highways, the Peace Bridge, and Lake Erie-this home offers comfort, convenience, and excellent value. (id:47421)
Interested in obtaining the full price history for this property? Contact us!Contact us! Our real estate professionals would be happy to provide a complete listing history with historical sold prices and dates.
Detailed Information
Bedrooms
3
Bathrooms
2
Equipment
Water Heater
Features
Sump Pump
Listing Contract Date
2026-01-16
Location Description
Cross Streets: Louisa Street. ** Directions: From Albany turn onto Louisa Street then South on Burwell Street.
Ownership Type
Freehold
# of Parking Spaces
2
Property Type
Single Family
Rental Equipment
Water Heater
Transaction Type
For sale
Zoning Description
EC RM1-760
Building
Age
New building
Appliances
Water Heater
Basement Development
Unfinished
Basement Type
Full (Unfinished)
Construction Style (Attachment)
Attached
Cooling Type
None
Exterior Finish
Brick, Vinyl siding
Foundation Type
Poured Concrete
Heating Fuel
Natural gas
Heating Type
Forced air
Stories Total
1.5
Type
Row / Townhouse
Utility Water
Municipal water
Rooms
Room
Level
Dimensions
Notes
Bedroom 2
Second level
2.44 m x 2.38 m
Bedroom 3
Second level
2.44 m x 3.05 m
Kitchen
Main level
2.96 m x 3.35 m
Dining room
Main level
3.14 m x 2.19 m
Great room
Main level
3.14 m x 3.66 m
Primary Bedroom
Main level
3.05 m x 3.99 m
Parking Spaces
Name
Spaces
Attached Garage
Garage
Land
Sewer
Sanitary sewer
Terms of Use
Please review and agree to the following terms of use to access the listing content:
REALTOR®, REALTORS®, and the REALTOR® logo are certification marks that are owned by REALTOR® Canada Inc. and licensed exclusively to The Canadian Real Estate Association (CREA). These certification marks identify real estate professionals who are members of CREA and who must abide by CREA's By-Laws, Rules, and the REALTOR® Code. The MLS® trademark and the MLS® logo are owned by CREA and identify the quality of services provided by real estate professionals who are members of CREA;
The information contained on this site is based in whole or in part on information that is provided by members of CREA, who are responsible for its accuracy. CREA reproduces and distributes this information as a service for its members and assumes no responsibility for its accuracy;
This website is operated by a brokerage or salesperson who is a member of CREA;
The listing content on this website is protected by copyright and other laws, and is intended solely for the private, non-commercial use by individuals. Any other reproduction, distribution or use of the content, in whole or in part, is specifically forbidden. The prohibited uses include commercial use, "screen scraping", "database scraping", and any other activity intended to collect, store, reorganize or manipulate data on the pages produced by or displayed on this website.
The information contained on this site is based in whole or in part on information that is provided under copyright by the Toronto Regional Real Estate Board (TRREB) or by members of The Canadian Real Estate Association (CREA), who are responsible for its accuracy. TRREB and CREA reproduce and distribute this information as a service for their members and assume no responsibility for its accuracy. All information displayed is believed to be accurate but is not guaranteed and should be independently verified. No warranties or representations of any kind are made with respect to the accuracy of such information. The information provided herein must only be used by consumers that have a bona fide interest in the purchase, sale, or lease of real estate and may not be used for any commercial purpose or any other purpose.