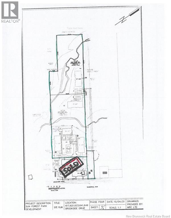
Development opportunity: 5 Multi-Unit Buildings Approved!! Approved for 4-37 unit buildings and 1-24 unit building, with the potential for the 4-37 unit buildings to be 45 unit buildings. There is enough space on the property to potentially get approval for additional units. 13.08 acres of prime development land on Brookside Drive in Fredericton! Located in the popular Brookside neighborhood, which is designated as a key ""Mixed Use Area"" in both the Growth Strategy and Municipal Plan documents, City of Fredericton Planning Department. Zoning - MR2. This area is a fast growing area of the City offering family neighborhoods, new schools, access to businesses, golf club, restaurants, grocery stores, health clinics and quick access to North and South side amenities. The MR-2 zoning permits multi-residential buildings -- including Apartment Building, Assisted Living, Child Care Centre, Small Stacked Townhouse, Townhouse. 2 properties are included, with one allowing access off Brookside Drive and allowing access to the second property and providing access to the larger development area. (id:47421)
Interested in obtaining the full price history for this property? Contact us!Contact us! Our real estate professionals would be happy to provide a complete listing history with historical sold prices and dates.
Detailed Information
Location Description
Brookside Drive, sign is up.
Municipal ID
75556407
Ownership Type
Freehold
Property Type
Vacant Land
Transaction Type
For sale
Zoning Description
MR-2
Building
Land
Total Size
13.08 acres
Acreage
Yes
Size of Irregular Land
13.08
Terms of Use
Please review and agree to the following terms of use to access the listing content:
REALTOR®, REALTORS®, and the REALTOR® logo are certification marks that are owned by REALTOR® Canada Inc. and licensed exclusively to The Canadian Real Estate Association (CREA). These certification marks identify real estate professionals who are members of CREA and who must abide by CREA's By-Laws, Rules, and the REALTOR® Code. The MLS® trademark and the MLS® logo are owned by CREA and identify the quality of services provided by real estate professionals who are members of CREA;
The information contained on this site is based in whole or in part on information that is provided by members of CREA, who are responsible for its accuracy. CREA reproduces and distributes this information as a service for its members and assumes no responsibility for its accuracy;
This website is operated by a brokerage or salesperson who is a member of CREA;
The listing content on this website is protected by copyright and other laws, and is intended solely for the private, non-commercial use by individuals. Any other reproduction, distribution or use of the content, in whole or in part, is specifically forbidden. The prohibited uses include commercial use, "screen scraping", "database scraping", and any other activity intended to collect, store, reorganize or manipulate data on the pages produced by or displayed on this website.
The information contained on this site is based in whole or in part on information that is provided under copyright by the Toronto Regional Real Estate Board (TRREB) or by members of The Canadian Real Estate Association (CREA), who are responsible for its accuracy. TRREB and CREA reproduce and distribute this information as a service for their members and assume no responsibility for its accuracy. All information displayed is believed to be accurate but is not guaranteed and should be independently verified. No warranties or representations of any kind are made with respect to the accuracy of such information. The information provided herein must only be used by consumers that have a bona fide interest in the purchase, sale, or lease of real estate and may not be used for any commercial purpose or any other purpose.